Добавить в корзинуПозвонить
Найти в Дзене
Филдс

Грамотный интерьер мини-дома 40 м² в Подмосковье: проект, который дизайнеры сделали сами для себя

Дизайнер Наталья Круц вместе со своим супругом Сергеем построили и оформили дом 40 м² для себя. Жильё находится рядом со стройплощадкой, где пара реализует строительство других домов на продажу. В будущем и этот дом планируют продать. Планировка и экстерьер Гостиная Отделка комнаты получилась контрастной — светлым сделали потолок и стену за диваном, а остальные стены покрыли тёмной декоративной штукатуркой, как и межкомнатные двери. Кухня Кухню удалили от входа и упаковали в нишу. От проходной зоны её отделяет барная стойка. Спальня Спальню оформили в тёмных тонах. Системы хранения выстроили вдоль стены справа от входа. Дополнительно под потолком запланировали антресоли, где можно хранить чемоданы для путешествий. Рядом с окном обустроили рабочее место. Письменный стол на тонких белых опорах смотрится практически невесомым, а кожаное кресло добавляет интерьеру фактурности. Прихожая Разнообразить тёмную отделку прихожей помогает алая дверь со стеклянной вставкой. Случайным посе
Оглавление

Дизайнер Наталья Круц вместе со своим супругом Сергеем построили и оформили дом 40 м² для себя. Жильё находится рядом со стройплощадкой, где пара реализует строительство других домов на продажу. В будущем и этот дом планируют продать.

  • Общая площадь: 40 м²
  • Место: Подмосковье
  • Тип дома: частный дом
  • Количество комнат: евродвушка
  • Высота потолка: 4,2 м
  • Кто здесь живет: дизайнер с супругом
  • Дизайнер: Наталья Круц (студия «Круц-дом»)
  • Фотограф: Дмитрий Карпов

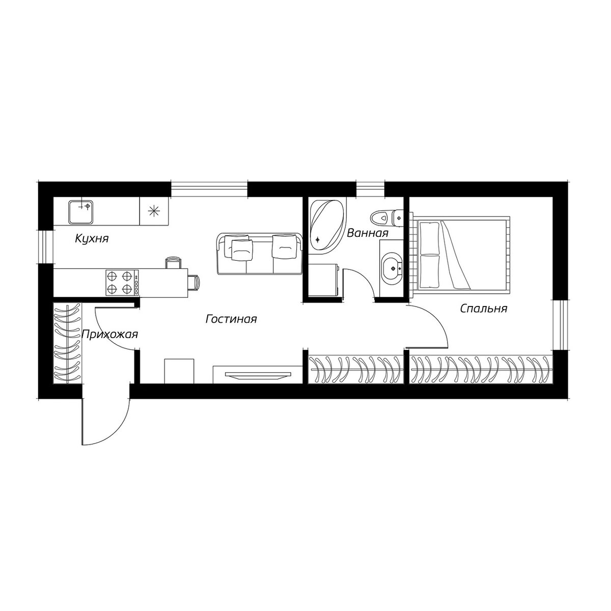
Планировка и экстерьер

Гостиная

Отделка комнаты получилась контрастной — светлым сделали потолок и стену за диваном, а остальные стены покрыли тёмной декоративной штукатуркой, как и межкомнатные двери.

Кухня

Кухню удалили от входа и упаковали в нишу. От проходной зоны её отделяет барная стойка.

Спальня

Спальню оформили в тёмных тонах. Системы хранения выстроили вдоль стены справа от входа. Дополнительно под потолком запланировали антресоли, где можно хранить чемоданы для путешествий. Рядом с окном обустроили рабочее место. Письменный стол на тонких белых опорах смотрится практически невесомым, а кожаное кресло добавляет интерьеру фактурности.

Прихожая

Разнообразить тёмную отделку прихожей помогает алая дверь со стеклянной вставкой. Случайным посетителям внутреннее убранство дома не видно — гостиную скрыли за ещё одной дверью. Свободную нишу использовали для встройки вместительного шкафа-купе.

Санузел

В санузле поставили душевую кабину, поэтому плитку для отделки решили не использовать. Стены обшили деревянными панелями и гипсокартоном, который покрыли декоративной штукатуркой. Унитаз сместили на угол, чтобы увеличить свободную площадь.

-6

Интересные мнения в комментариях приветствуются. Если материал понравился — ставь лайк!

🖤 Филдс — это не только блог на Дзене, но и магазин дизайнерских предметов интерьера. Заходите на сайт, чтобы увидеть мебель, которую дизайнеры выбирают для своих проектов.