Найти в Дзене

ТАГАНРОГ 135 м2 - проект одноэтажного дома 13х13 из газобетона, с 4 спальнями, без террасы

ТАГАНРОГ 135 м2 - проект одноэтажного дома на 4 спальни. Это "апгрейд" более старого проекта одноэтажного дома БАТАЙСК. Размер базового дома 13х13 и планировка сохранены, а вот материал стен изменен - новый домик из газобетона и оштукатурен (оригинал - кирпичный). Удобство дома в разделении спален на две автономные группы по две комнаты с ванной. Любая из них может выполнять роль хозяйских апартаментов. Планировку каждой группы можно изменить, так как все внутренние перегородки - не несущие. Середину дома занимают входная группа (прихожая, холл и котельная) и гостиная со столовой и выходом в сад. Столовая смежная с кухней (которую можно выделить в изолированное помещение). Этот дом совершенно квадратный в плане, размер 13х13 - минимально удобный для того, чтобы вместить 4 спальни, общественные и хозяйственные помещения. 👇👇 Ещё одноэтажники с 4 спальнями Под крышей есть холодный чердак, удобный для трассировки коммуникаций. 👇 Похожий дом с хозяйственной пристройкой Фундамент - моно
Оглавление

ТАГАНРОГ 135 м2 - проект одноэтажного дома на 4 спальни. Это "апгрейд" более старого проекта одноэтажного дома БАТАЙСК.

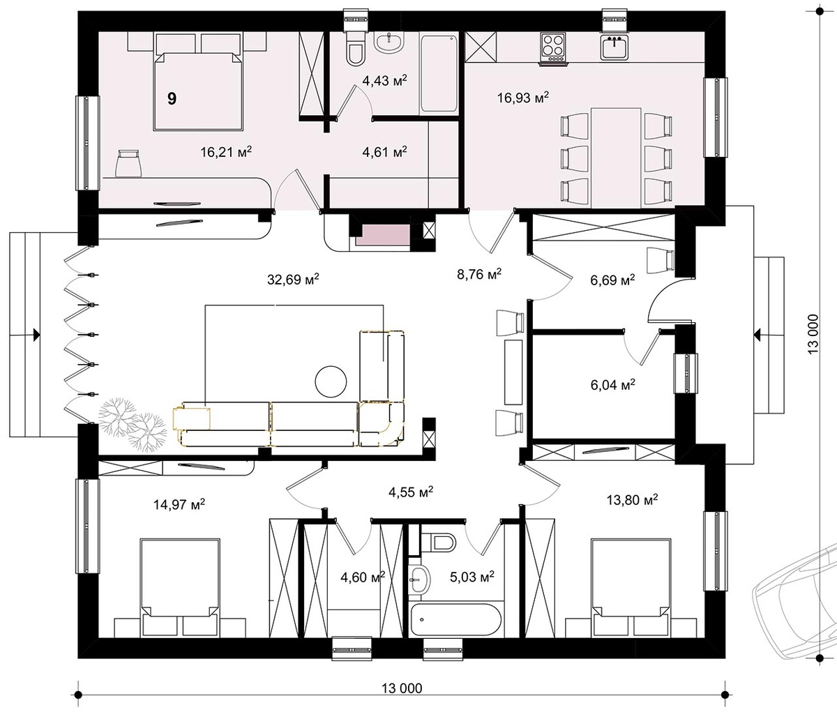
БАТАЙСК 136 м2 - проект одноэтажного дома 13х13 на 4 спальни.
Инваполис - проекты рациональных домов 20 июля 2021

Размер базового дома 13х13 и планировка сохранены, а вот материал стен изменен - новый домик из газобетона и оштукатурен (оригинал - кирпичный).

ПЛАНИРОВКА

Удобство дома в разделении спален на две автономные группы по две комнаты с ванной. Любая из них может выполнять роль хозяйских апартаментов. Планировку каждой группы можно изменить, так как все внутренние перегородки - не несущие.

Середину дома занимают входная группа (прихожая, холл и котельная) и гостиная со столовой и выходом в сад. Столовая смежная с кухней (которую можно выделить в изолированное помещение).

Этот дом совершенно квадратный в плане, размер 13х13 - минимально удобный для того, чтобы вместить 4 спальни, общественные и хозяйственные помещения.

👇👇 Ещё одноэтажники с 4 спальнями

Четыре проекта одноэтажных домов на 4 спальни - продолжение.
Инваполис - проекты рациональных домов 4 февраля 2023
Шесть проектов ОДНОЭТАЖНЫХ ДОМОВ с 4 спальнями
Инваполис - проекты рациональных домов 26 сентября 2021

Под крышей есть холодный чердак, удобный для трассировки коммуникаций.

👇 Похожий дом с хозяйственной пристройкой

ИНТЕРЬЕР

КОНСТРУКТИВНЫЕ РЕШЕНИЯ

Фундамент - монолитная лента до глубины промерзания (возможно изменение конструкции «по месту»)
Стены – газобетон D400, толщиной 400 мм, штукатурка.
Перекрытие - сборное из ж/б плит, чердачное перекрытие - деревянное утепленное
Крыша – четырехскатная холодная, «конвертом»

В этом проекте армопояс кровли и перемычки проемов объединены в непрерывную конструкцию, поэтому при необходимости окна можно устроить в других местах или изменить их размер. Корректировать проект для этого не обязательно, достаточно проконсультироваться с автором.

  • Информацию для заказа чертежей (состав проекта, контакты и тд) Вы можете найти на странице дома на нашем основном сайте.
  • Другие проекты одноэтажных домов ИНВАПОЛИС здесь...
  • Если Вам интересны наши проекты, подписывайтесь на канал ИНВАПОЛИС-ДЗЕН, смотрите обзоры и подборки домов, задавайте вопросы авторам в комментариях.
  • Также следить за новостями и смотреть обзоры проектов можно в ТЕЛЕГРАММ-КАНАЛЕ ИНВАПОЛИС – подписывайтесь, контент местами отличается 😊