Добавить в корзинуПозвонить
Найти в Дзене
СК Время Жить

Одноэтажный каркасный дом 12х8,5

О проекте :⠀⠀⠀⠀⠀⠀
Кухня-гостиная - 25,7 м2⠀⠀⠀⠀⠀⠀⠀⠀⠀
Спальня - 10,8м2⠀⠀⠀⠀
Спальня - 10,8 м2⠀⠀⠀⠀⠀⠀⠀⠀⠀⠀⠀⠀
С/У - 4,17 м2⠀⠀⠀⠀
Тамбур - 4,17 м2⠀
Коридор - 3,68 м2⠀⠀
Терраса - 21,4 м2⠀⠀
Крыльцо 2,3 м2⠀⠀⠀⠀ Габариты 12040 х 8470⠀⠀⠀⠀
Площадь застройки 91,6 м2⠀⠀⠀⠀
Полезная площадь 83 м2⠀⠀⠀⠀
Подшив потолка по стропильной системе.⠀ !Жми сюда, чтобы узнать стоимость реализации проекта! Этот проект был реализован нами во Владимирской области и вживую выглядит так: Предлагаем всем желающим посмотреть и оценить своим взглядом наши объекты! Мы можем устроить встречу, в удобное для Вас время. Комплектации, детали, цены:⠀⠀
Телефон/WhatsApp : +7(985)123-41-35 #строительство #строительствоподключ #строительствоиремонт #строители #строительнаякомпания #каркасник #каркасныедома

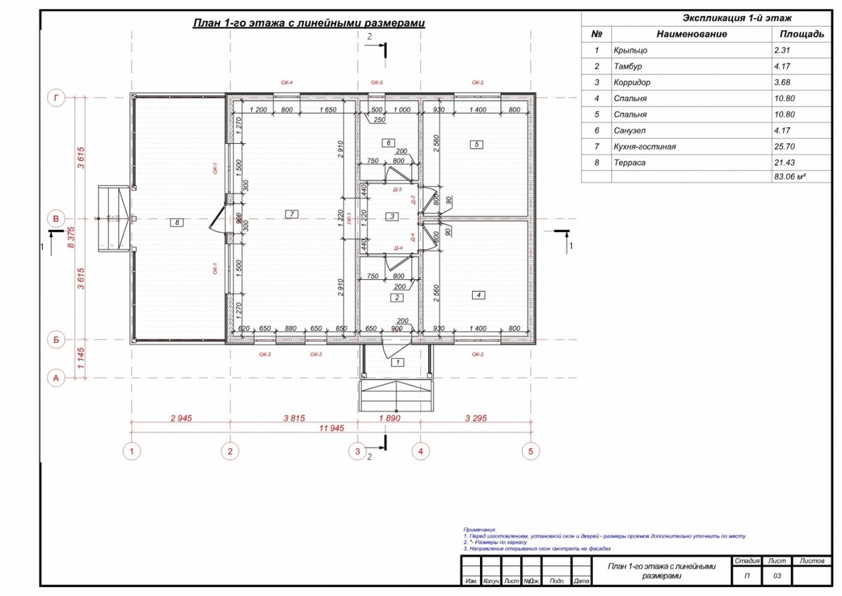
О проекте :⠀⠀⠀⠀⠀⠀
Кухня-гостиная - 25,7 м2⠀⠀⠀⠀⠀⠀⠀⠀⠀
Спальня - 10,8м2⠀⠀⠀⠀
Спальня - 10,8 м2⠀⠀⠀⠀⠀⠀⠀⠀⠀⠀⠀⠀
С/У - 4,17 м2⠀⠀⠀⠀
Тамбур - 4,17 м2⠀
Коридор - 3,68 м2⠀⠀
Терраса - 21,4 м2⠀⠀
Крыльцо 2,3 м2⠀⠀⠀⠀

Габариты 12040 х 8470⠀⠀⠀⠀
Площадь застройки 91,6 м2⠀⠀⠀⠀
Полезная площадь 83 м2⠀⠀⠀⠀
Подшив потолка по стропильной системе.⠀

!Жми сюда, чтобы узнать стоимость реализации проекта!

Этот проект был реализован нами во Владимирской области и вживую выглядит так:

Предлагаем всем желающим посмотреть и оценить своим взглядом наши объекты! Мы можем устроить встречу, в удобное для Вас время.

Комплектации, детали, цены:⠀⠀
Телефон/WhatsApp : +7(985)123-41-35

#строительство #строительствоподключ #строительствоиремонт #строители #строительнаякомпания #каркасник #каркасныедома