Добавить в корзинуПозвонить
Найти в Дзене

Надёжные теплотрассы будущего за СОДК

Ежегодно по всей России происходят десятки чрезвычайных происшествий и несчастных случаев, связанных с прорывом на трубопроводе теплосети. В результате таких аварий тысячи людей, сотни жилых домов, садиков, школ и других учреждений остаются без отопления и горячей воды на длительное время. Особенно остро это ощущается в зимний период. Частой причиной аварий становится локальный износ участка трубопровода из-за образования коррозии. На трубопроводе, пролегающем под землей, трудно вовремя заметить повреждение, определить точное его место и своевременно среагировать на дефект до возникновения аварии. Этих ситуаций можно избежать, если установить на трубопроводе систему контроля СОДК. Согласно ГОСТ 30732-2020 система контроля является обязательным элементом трубопроводов. СОДК расшифровывается как система оперативного дистанционного контроля. Это комплекс оборудования, которое отслеживает уровень электрического сопротивления в пенополиуретановом слое трубопровода. Система ОДК позволяет дис
Оглавление

Ежегодно по всей России происходят десятки чрезвычайных происшествий и несчастных случаев, связанных с прорывом на трубопроводе теплосети. В результате таких аварий тысячи людей, сотни жилых домов, садиков, школ и других учреждений остаются без отопления и горячей воды на длительное время. Особенно остро это ощущается в зимний период.

Частой причиной аварий становится локальный износ участка трубопровода из-за образования коррозии. На трубопроводе, пролегающем под землей, трудно вовремя заметить повреждение, определить точное его место и своевременно среагировать на дефект до возникновения аварии.

Фото: unsplash
Фото: unsplash

Этих ситуаций можно избежать, если установить на трубопроводе систему контроля СОДК.

Согласно ГОСТ 30732-2020 система контроля является обязательным элементом трубопроводов.

СОДК расшифровывается как система оперативного дистанционного контроля. Это комплекс оборудования, которое отслеживает уровень электрического сопротивления в пенополиуретановом слое трубопровода.

Система ОДК позволяет дистанционно определить точное место отклонения показателей от нормы на конкретном участке магистральной сети.

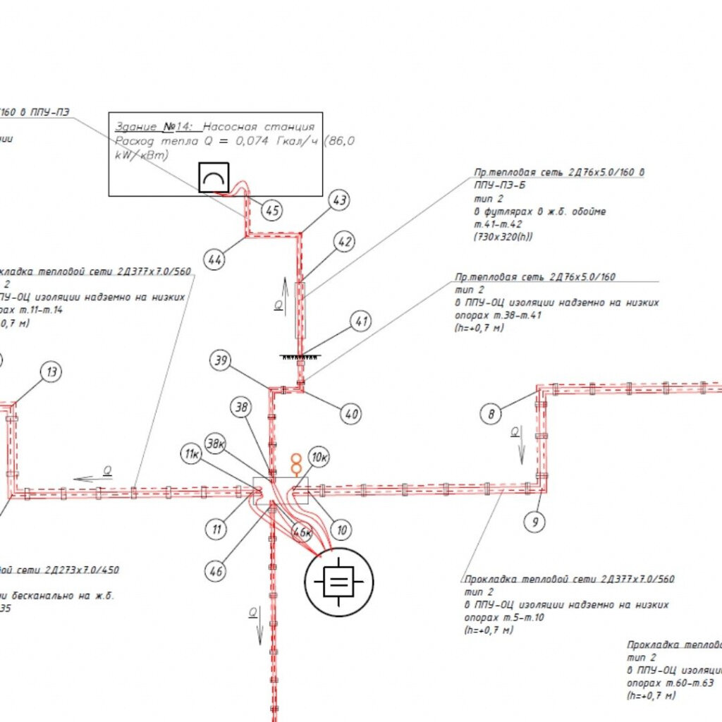
Фрагмент схемы системы ОДК из проекта наших заказчиков
Фрагмент схемы системы ОДК из проекта наших заказчиков

Принцип работы СОДК

Работа системы оперативно-дистанционного контроля тесно связана со свойствами пенополиуретана. Дело в том, что ППУ — низко гигроскопичный материал. Гигроскопичность говорит о способности поглощать влагу из воздуха. Так, в сухом состоянии пенополиуретан хорошо проводит электричество, однако при его увлажнении электрическое сопротивление падает. Об этом и сигнализируют проводники системы.

Если в изоляционном слое повысился уровень влажности, это может говорить о том, что на участке трубы возникли повреждения наружной оболочки трубопровода или внутренней стальной трубы, из-за чего на изоляционный слой начала поступать влага. Приборы фиксируют предаварийную или аварийную ситуацию в режиме реального времени и передают сигнал на диспетчерский пункт.

СОДК мониторит как состояние трубопровода, так и работоспособность самого оборудования, например, замыкание сигнальных проводников на металлическую трубу.

Проверка показателей в готовой ППУ трубе с помощью элементов СОДК
Проверка показателей в готовой ППУ трубе с помощью элементов СОДК

Преимущества СОДК

Если авария уже произошла или труба находится в предаварийном состоянии, СОДК поможет оперативно найти точное место. Таким образом экономится время на поиск проблемной точки, не требуется раскапывать большой участок подземного канала трубопровода в поисках повреждения. Так как система контроля помогает сократить время поиска аварийного места, избежать лишних действий и предотвратить мелкие и крупные аварии, то в итоге использование этой системы приводит к значительной экономии времени, сил и денег на ремонт.

Проверка качества сварного шва трубопровода перед монтажом СОДК
Проверка качества сварного шва трубопровода перед монтажом СОДК

Система дистанционного контроля позволяет собирать и сохранять полученную информацию. Таким образом можно вести не только контроль, но и анализ повторных аварий для того, чтобы проработать слабые места и избежать в будущем похожих ошибок при ремонте и укладке нового трубопровода.

Мониторинг состояния сети происходит в течение всего срока эксплуатации магистрали. Можно проводить как непрерывный, так и периодический мониторинг, в том числе удаленно или по месту с использованием стационарного или переносного оборудования.

Из чего состоит СОДК и где устанавливается

В комплекс приборов и вспомогательного оборудования входят:

  1. Трубы и части трубопровода с двумя или более медными проводниками. Медный кабель располагается по всей длине трубы в тепловой изоляции. Он реагирует на уровень увлажненности и передает сигнал.
  2. Монтажно-соединительные комплекты.
  3. Терминалы, измерительные приборы и приборы контроля.
  4. Наземные и настенные металлические коверы, в которые устанавливается оборудование сигнальной группы.
Медный кабель в ППУ изоляции
Медный кабель в ППУ изоляции

При дистанционном мониторинге состояния ППУ-трубопровода информация с удаленных объектов передается на единый диспетчерский пульт и позволяет управлять оборудованием с одной точки. Контроль по месту происходит с помощью портативных детекторов повреждений.

Еще интересную информацию про СОДК можно почитать в нашей статье здесь.

Система контроля особенно важна для тепловых сетей, проложенных подземным способом — канальным и бесканальным методом укладки, при котором используются трубы с полиэтиленовой оболочкой. Именно на таких трубопроводах ППУ СОДК устанавливают чаще. Это связано с тем, что при надземной прокладке магистрали место аварии найти значительно проще, чем в случае с подземной прокладкой, где требуется отыскать и раскопать аварийный участок.

СОДК устанавливаются как на жесткие стальные предизолированные трубопроводы, так и на гибкие стальные предварительно изолированные трубопроводы.

Монтаж

Монтаж системы СОДК довольно прост. Если коротко: сначала необходимо соединить трубные части и подготовить поверхность к изоляции стыка трубопровода. Далее сигнальные проводники соединяются, проводятся контрольные измерения. В конце стык герметизируется с использованием КЗС (комплекта заделки стыка).

Инструкцию по монтажу СОДК с удобной и понятной схемой можно почитать тут.

Подведем итоги

Установка СОДК регламентируется ГОСТ Р 56380-2015 и имеет ряд преимуществ:

  • Возможность мониторинга состояния трубопроводов ППУ в режиме реального времени.
  • Немедленное оповещение об аварийной ситуации на трубопроводе.
  • Отсеивание ложных сообщений об аварии.
  • Легкость восприятия полученной информации, ее обработки и хранения.
  • Снижение затрат.
  • Низкая стоимость оборудования, не более 5% от общей стоимости магистральной тепловой сети.
  • Простота монтажа и надежность оборудования.

Применение СОДК = безопасная эксплуатация трубопроводных систем.

Безаварийных вам трубопроводов!

Фото нашего объекта в г. Якутск
Фото нашего объекта в г. Якутск