Добавить в корзинуПозвонить
Найти в Дзене

Проект в Норвегии. Часть 5 - в которой мы наконец делаем проект

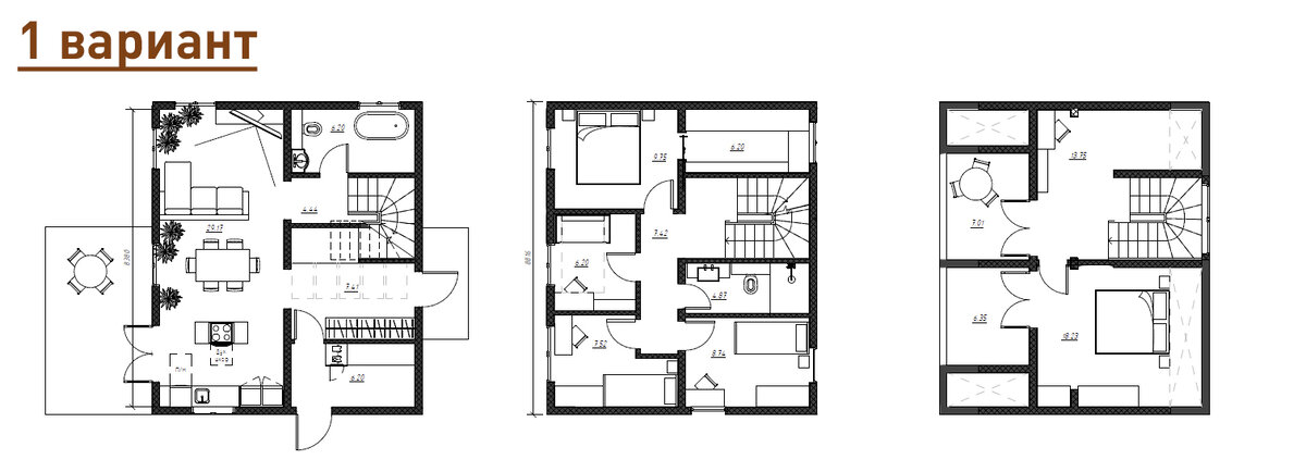
Конечно, есть сотни вариантов планов небольших домов, нет никакой проблемы найти, например, дом 6х9 метров и передвинуть пару перегородок. Но к архитектору обращаются не потому, что проблема в этом. Заказчики хотят получить дом, который бы идеально сидел на их образе жизни, как сшитое на заказ платье учитывает все изгибы фигуры и движения. В первую очередь было важно понять наши возможности: мы построили основные объемы здания по всем ограничениям Супруг А. по её словам вначале сомневался, что архитектор как-то поможет, а не даст больше вопросов и проблем, однако работой даже на самых первых этапах остался доволен. В каждом проекте я радуюсь оттого, что мужья, часто скептически настроенные сначала, при работе сразу видят ценность того, что мы делаем и влияние внимательного анализа их пожеланий на то, насколько будет подходящим дом потом. В итоговом варианте входную зону развернули с переднего фасада - так психологически комфортнее заказчикам, - а зона кухни и гостиной максимально ориен

Конечно, есть сотни вариантов планов небольших домов, нет никакой проблемы найти, например, дом 6х9 метров и передвинуть пару перегородок.

Но к архитектору обращаются не потому, что проблема в этом. Заказчики хотят получить дом, который бы идеально сидел на их образе жизни, как сшитое на заказ платье учитывает все изгибы фигуры и движения.

В первую очередь было важно понять наши возможности: мы построили основные объемы здания по всем ограничениям

Супруг А. по её словам вначале сомневался, что архитектор как-то поможет, а не даст больше вопросов и проблем, однако работой даже на самых первых этапах остался доволен. В каждом проекте я радуюсь оттого, что мужья, часто скептически настроенные сначала, при работе сразу видят ценность того, что мы делаем и влияние внимательного анализа их пожеланий на то, насколько будет подходящим дом потом.

В итоговом варианте входную зону развернули с переднего фасада - так психологически комфортнее заказчикам, - а зона кухни и гостиной максимально ориентирована на запад. Находясь дома по большей части вечерами, А. не хочет пропускать самое красивое время дня и семейные ужины, в особенности летние вечера, будут проводится с видом на закатное небо.

Итоговый вариант планировки
Итоговый вариант планировки

После того, как семья А. увидела, как можно уместить их пожелания в доме, они решили несколько изменить техзадание: было решено выделить на детские больше площади, перенеся спальную хозяев на мансардный этаж. Все спальные стали просторнее и планировки - менее вынужденными, что дало больше шансов для маневра. На мансардном этаже организовали санузел - все же спускаться вниз чтобы умыться не удобно и хотя бы унитаз с раковиной разместить мы сможем. Вопрос размещения там душа пока обсуждается, но возможно, что и его в какой-то вариации получится предусмотреть (со шторкой и без порожка, например).

Лестница для этого проекта конечно для России кажется экстремальной: высота ступени 20 см при ширине 26 см. Обычно я такие называю неудобными, но по словам А., у них такие повсюду и уже привыкли и комфортно. Вопрос лестницы я всегда отдельно обсуждаю с заказчиками потому что “удобно” и даже “эргономично” зависят от вас лично, особенно ваши рост и привычки: многие заказчики отмечали, что эталонные размеры ступеней 300х150 для них слишком низкие и об них спотыкаются.

Проект дома в Норвегии, архитектурная студия Laakso
Проект дома в Норвегии, архитектурная студия Laakso

Мы подготовили первоначальные визуализации и сейчас ждем угадайте, чего? Ждем того, чтобы коммуна дала разрешение на размещение въезда на участок и навеса для парковки машины там, где нам надо. Даже вот такие вещи контролируются жителями поселка.

В следующей статье я хочу обсудить эту тему - когда поселки имеют дизайн-код, а жителей формально ограничивают в выборе отделочных материалов, высоты, размеров и посадки дома, виде заборов и т.д.

Подписывайтесь на канал, чтобы не пропустить окончание истории!

#laakso_студия #дом за рубежом #проектирование домов #архитектор москва #дом в Норвегии