Добавить в корзинуПозвонить
Найти в Дзене

Как сделать удобную планировку в неудобной планировке от застройщика?

Планировка квартиры это самый первый шаг в ремонте. Необходимо чётко понимать сколько и каких комнат необходимо и как уже в готовой коробке это сделать. Приведу пример на своём проекте квартиры 80м2 для семьи из 3-х человек. Задача была с минимальными затратами сделать удобно и красиво! Всё как всегда!) Заказчикам хотелось большую гардеробную и кабинет. Смотрите что получилось. В центре квартиры вместо непонятного коридора я сделала вместительную гардеробную, это комната№10. В прихожей поставила в нишу большой шкаф и в проходной зоне №9 тоже установила хозяйственный шкаф. Образовалась приватная зона для хозяев квартиры - в неё можно войти из прихожей, далее из коридора №9 идут все комнаты хозяев . Это гардеробная, кабинет, спальня и душевая комната. Вот так получилось вместить всё что хотели в казалось бы неудачной планировке от застройщика. А теперь смотрите фото интерьера того что в итоге построили! Вот такой интерьер получился! Как вам такие решения? Жду ваших комментариев!

Планировка квартиры это самый первый шаг в ремонте. Необходимо чётко понимать сколько и каких комнат необходимо и как уже в готовой коробке это сделать. Приведу пример на своём проекте квартиры 80м2 для семьи из 3-х человек. Задача была с минимальными затратами сделать удобно и красиво! Всё как всегда!)

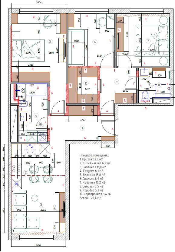
Было вот так!
Было вот так!

Заказчикам хотелось большую гардеробную и кабинет. Смотрите что получилось.

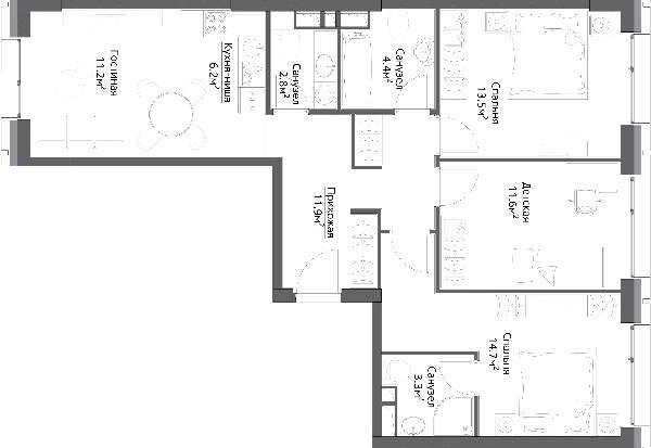
Стало вот так!
Стало вот так!

В центре квартиры вместо непонятного коридора я сделала вместительную гардеробную, это комната№10. В прихожей поставила в нишу большой шкаф и в проходной зоне №9 тоже установила хозяйственный шкаф. Образовалась приватная зона для хозяев квартиры - в неё можно войти из прихожей, далее из коридора №9 идут все комнаты хозяев . Это гардеробная, кабинет, спальня и душевая комната. Вот так получилось вместить всё что хотели в казалось бы неудачной планировке от застройщика. А теперь смотрите фото интерьера того что в итоге построили!

Прихожая с огромным зеркалом на стене и шкаф с зеркальными дверями расширяет пространство.
Прихожая с огромным зеркалом на стене и шкаф с зеркальными дверями расширяет пространство.
В гостиной - кухне очень уютно!
В гостиной - кухне очень уютно!
Кухня. Освещение над столом зонирует пространство.
Кухня. Освещение над столом зонирует пространство.
Мой подарок заказчикам, картина, которую я написала сама.
Мой подарок заказчикам, картина, которую я написала сама.
Вся мебель в квартире спроектирована мной.
Вся мебель в квартире спроектирована мной.
В ваннуую комнату вход из прихожей. Здесь же расположен шкаф со стиральной и сушильной машиной.
В ваннуую комнату вход из прихожей. Здесь же расположен шкаф со стиральной и сушильной машиной.
Весь санузел решён в сине-чёрных тонах. Смотрится особенно вживую очень интересно.
Весь санузел решён в сине-чёрных тонах. Смотрится особенно вживую очень интересно.
А это комната сына. Здесь разместилось всё! И кровать и рабочее место. Шкаф и пианино.
А это комната сына. Здесь разместилось всё! И кровать и рабочее место. Шкаф и пианино.
Шкафчики для книг разместила по сторонам от стола.
Шкафчики для книг разместила по сторонам от стола.
Кстати, сторона солнечная и стол примыкает к стене, шторы сюда не подходят, поэтому отличное решение жалюзи и римская штора.
Кстати, сторона солнечная и стол примыкает к стене, шторы сюда не подходят, поэтому отличное решение жалюзи и римская штора.
Кабинет хозяйки
Кабинет хозяйки
Проходной коридорчик, откуда выходят кабинет, большая спальня, гардеробная и санузел хозяев квартиры. Получается вся эта зона отделена от постороннего взгляда.
Проходной коридорчик, откуда выходят кабинет, большая спальня, гардеробная и санузел хозяев квартиры. Получается вся эта зона отделена от постороннего взгляда.
-15
Спокойный интерьер во всей квартире без излишеств.
Спокойный интерьер во всей квартире без излишеств.
В спальне стоит комод для белья и на стене зеркало во всю высоту, оно расширяет пространство в небольшой комнате.
В спальне стоит комод для белья и на стене зеркало во всю высоту, оно расширяет пространство в небольшой комнате.
Душевая комната в приватной зоне хозяев квартиры.
Душевая комната в приватной зоне хозяев квартиры.
-19
Душевая
Душевая

Вот такой интерьер получился! Как вам такие решения? Жду ваших комментариев!