Найти в Дзене
Architect Guide

Актуальный скандинавский интерьер трехкомнатной квартиры, площадью 64 м кв

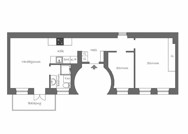
Эта стильная квартира была найдена на сайте одного из агентств в недвижимости в Стокгольме, после чего интерьерные блогеры разнесли фотографии по сети. И действительно, в этом интерьере есть на что посмотреть — базовый скандинавский интерьер в сочетании с трендовыми акцентами вполне заслуживает стать вдохновением для обновления надоевшего скандинавского интерьера. В нашей статье, разбираемся, как повторить этот эффектный интерьер. Квартира расположена в историческом здании, что объясняет нестандартную планировку. Прихожая разделяет квартиру на две зоны — пространство кухни-гостиной и пространство, которое занимают 2 спальни. Основа интерьера — классический скандинавский стиль в песочных оттенках. Если вы в поисках стильных вариантов бежевого оттенка стен — то этот холодный оттенок мокрого песка в сочетании с белыми плинтусами станет хорошей альтернативой классическим теплым оттенкам. В квартире отреставрированы элементы декора — подоконники, откосы, двери. все это создает особенную атм

Эта стильная квартира была найдена на сайте одного из агентств в недвижимости в Стокгольме, после чего интерьерные блогеры разнесли фотографии по сети. И действительно, в этом интерьере есть на что посмотреть — базовый скандинавский интерьер в сочетании с трендовыми акцентами вполне заслуживает стать вдохновением для обновления надоевшего скандинавского интерьера. В нашей статье, разбираемся, как повторить этот эффектный интерьер.

Фото: hemnet.se
Фото: hemnet.se

Квартира расположена в историческом здании, что объясняет нестандартную планировку. Прихожая разделяет квартиру на две зоны — пространство кухни-гостиной и пространство, которое занимают 2 спальни.

Фото: hemnet.se
Фото: hemnet.se

Основа интерьера — классический скандинавский стиль в песочных оттенках. Если вы в поисках стильных вариантов бежевого оттенка стен — то этот холодный оттенок мокрого песка в сочетании с белыми плинтусами станет хорошей альтернативой классическим теплым оттенкам.

Фото: hemnet.se
Фото: hemnet.se

В квартире отреставрированы элементы декора — подоконники, откосы, двери. все это создает особенную атмосферу этого скандинавского интерьера.

Фото: hemnet.se
Фото: hemnet.se

Еще одно особенное украшение интерьера — уютный вид из окна. Благоустроенный балкон с мебелью и растениями всегда делает вид из окна эстетичнее.

Фото: hemnet.se
Фото: hemnet.se

Но главную голь с интерьере этой гостиной конечно же играет мебель. Диван изгибистой формы дополнен белыми столиками в стиле 80-х и скульптурами на минималистичном черном металлическом стеллаже. На стене объемное панно с абстрактным сюжетом, идеально дополняющее палитру песочных оттенков. Обеденную зону образует элегантный круглый стол со стульями в стиле модернизма середины 20 века.

Фото: hemnet.se
Фото: hemnet.se

Из-за особенностей планировки для кухни было выделено место в коридоре между прихожей и гостиной.

Фото: hemnet.se
Фото: hemnet.se

Для того, чтобы разместить все необходимое, рабочие зоны обустроенные по обе стороны коридора. Кухонные фасады повторяют цвет стен и не загромождают пространство, а небольшие черные детали украшают эту аккуратную кухню, добавляя ей контраста.

Фото: hemnet.se
Фото: hemnet.se

Зона прихожей украшена большим зеркалом, которое визуально расширяет узкое пространство коридора и настенный декор. Шкафы спрятаны за фасадами, выкрашенными ы тон стен, что позволяет сохранить лаконичность скандинавского стиля.

Фото: hemnet.se
Фото: hemnet.se

Интерьер санузла в этой квартире по-скандинавски прост, но окно и естественный свет сделают сколь угодно простое пространство санузла эстетичным.

Фото: hemnet.se
Фото: hemnet.se

Для большой спальни были выбраны обои с растительным принтом, которые стали акцентом в теплой бежевой палитре текстиля и деревянных текстур.

Фото: hemnet.se
Фото: hemnet.se

Мебель в скандинавском стиле очень проста, но подобрана идеально по оттенкам. Даже чуть более персиковая кожаная спинка стула дополняет общую палитру, а не выделяется на ее фоне.

Фото: hemnet.se
Фото: hemnet.se

Как и в гостиной в спальне зеркало занимает свое место напротив окна, отражая солнечные лучи и делая пространство светлее.

Фото: hemnet.se
Фото: hemnet.se

В маленькой, вероятно, детской спальне интерьер еще более простой.

Фото: hemnet.se
Фото: hemnet.se

Но даже такой простой интерьер можно сделать интереснее добавив графичные контрастные линии. В этом интерьере роль таких акцентов выполняют постеры на стене и консоль.

Фото: hemnet.se
Фото: hemnet.se

Понравилась статья? Ставьте лайк и подписывайтесь на нас, чтобы видеть наши обновления!

Смотрите больше похожих материалов на architectguide.ru

Современный интерьер в классическом скандинавском стиле - ARCHITECT GUIDE
Элегантность модернизма и скандинавский стиль в интерьере
Интерьер, которым можно любоваться, как современным искусством
Интерьер вне времени: скандинавский стиль и монохром - ARCHITECT GUIDE