Найти в Дзене
SALON-interior

Квартира-офис дизайнера: яркая отделка, мини-кухня и темная прихожая

Эта квартира в клубном четырехэтажном особняке в одном из престижных районов Москвы выполняет роль представительского офиса, шоу-рума, где потенциальные заказчики могут воочию увидеть реализованный интерьер, оценить потенциал пространства и познакомиться с разнообразными отделками и материалами. О проекте Квартира находится в старинном особняке в Хамовниках, в середине так называемой Золотой Мили, где сосредоточена самая элитная и престижная недвижимость столицы. В 17 веке здесь располагалась слобода стрелецкого полка, а двумя столетиями позже — доходные дома и особняки московской знати. Квартира используется в качестве офиса для встреч с заказчиками и показа готовых интерьерных решений: от функционального зонирования до актуальных современных отделочных материалов, применяемых сегодня. Планировка Офис спланирован в духе жилого пространства — два раздельных санузла, гардеробная, кухня, укомплектованная всей необходимой техникой, две изолированные комнаты, одна из которых служит перегов
Оглавление

Эта квартира в клубном четырехэтажном особняке в одном из престижных районов Москвы выполняет роль представительского офиса, шоу-рума, где потенциальные заказчики могут воочию увидеть реализованный интерьер, оценить потенциал пространства и познакомиться с разнообразными отделками и материалами.

О проекте

Квартира находится в старинном особняке в Хамовниках, в середине так называемой Золотой Мили, где сосредоточена самая элитная и престижная недвижимость столицы. В 17 веке здесь располагалась слобода стрелецкого полка, а двумя столетиями позже — доходные дома и особняки московской знати.

Квартира используется в качестве офиса для встреч с заказчиками и показа готовых интерьерных решений: от функционального зонирования до актуальных современных отделочных материалов, применяемых сегодня.

Планировка

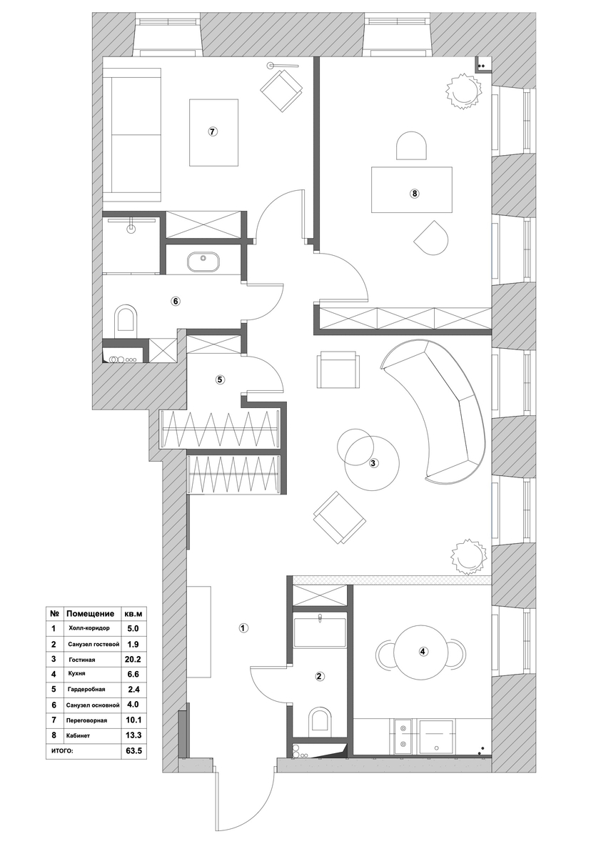
Офис спланирован в духе жилого пространства — два раздельных санузла, гардеробная, кухня, укомплектованная всей необходимой техникой, две изолированные комнаты, одна из которых служит переговорной, а во второй обустроен кабинет-библиотека с образцами материалов: от напольных покрытий до текстиля.

Планировка квартиры
Планировка квартиры

Концепция

Классический стиль выбран не только из-за контекста, но отчасти и потому, что традиционный интерьер — один из самых уютных и востребованных у заказчиков стилевых направлений. «Моей задачей было создать классический интерьер, но в современном его прочтении, — комментирует идею автор проекта Лидия Ли. — За основу я взяла не типично светлые тона, а более темные оттенки и графичные формы, которые смотрятся эффектно, выигрышно и зрелищно, ведь главное предназначение интерьера — произвести впечатление на потенциального заказчика. Важно было показать потенциал пространства, как и какими средствами дизайна можно создать незабываемый, самобытный образ».

«Зачастую дизайнеры сталкиваюсь с тем, что заказчики бояться тех или иных решений, в частности тёмного цвета, смешения нескольких орнаментов, стилей в рамках одного объекта, — продолжает рассказ Лидия. — И этот интерьер — яркое подтверждение тому, что не надо ничего бояться. Нужно доверить дело профессионалу, который знает, как смешать, что смешать и в каких пропорциях, чтобы получить сбалансированный, гармоничный интерьер, даже если на первый взгляд все, кажется, живет само по себе. Именно такая цель стояла перед нами — показать клиенту весь арсенал художественных средство и еще раз доказать, что дизайн — это нескончаемая площадка возможностей, а выбор — личное дело каждого».

Отделка

Дизайнер смело смешивает материалы, цвета, фактуры — демонстрационный формат интерьера подразумевает экспериментальный подход, когда в ход идут любые средства и приёмы, о существовании которых знает лишь профессионал. Так, пол при входе выложен керамогранитом из трех разных коллекций, создающих вместе эффект объема. В одном из санузлов использована графика терраццо, визуально расширяющая скромную площадь комнаты. На стенах в гостиной — три вида отделки: декоративная штукатурка и обои с двумя видами рисунка, в коридоре — панели непривычного чёрного цвета, при этом библиотека полностью выдержана в белом. Нестандартная отделка в каждой комнате — одно из главных условий оформления этой квартиры-офиса.

Границы кухни очерчивает тонкая чёрная рама, подчеркивающая графику интерьера. Кухонный фартук и боковые стены кухонной зоны отделаны камнем для дополнительной защиты от влаги.

Проекты архитекторов и дизайнеров, интерьеры знаменитостей, обзоры новинок мировых брендов — на нашем канале! Подписывайтесь: https://zen.yandex.ru/salon.ru

Как сделать интерьер инвестиционно привлекательным: 5 мнений профессионалов

Стиль, умные технологии, планировка, месторасположение, материалы — все, что может повысить стоимость объекта недвижимости при продаже. Архитекторы и дизайнеры размышляют на актуальный запрос времени, делятся своими наблюдениями и дают практичные советы.

Дизайн-решения, которыми гордятся дизайнеры: 5 историй

Штора из гипса, «бумажная» стена, барельеф с «Авито» и другие решения, которые преобразили или спасли интерьеры заказчиков.

Какие впечатления вызывает у вас этот интерьер? Расскажите в комментариях!