Найти в Дзене

Автокад или ...

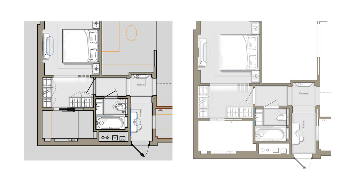
Данный пост публикуется по причине частых вопросов, касательно самой программы в которой делаются чертежи, представленные в группе.
Программа эта называется Автокад и на картинке наглядное сравнение чертежа из рабочего пространства (тот который с серым фоном), и то как он выглядит в печати (джпг/пдф).
Речь вовсе не о пропаганде работы именно в этом редакторе (автокад), т.к. много студентов, интересуются именно этим вопросом, в погоне за качеством/скоростью/простотой, а по факту, ситуация равнозначная для любого редактора (автокад, архикад, ревит и др.). Чаще всего человек работает в той программе, которая ему первая попалась под руку либо он устроился куда-то и там был приоритет конкретному программному обеспечению. В командной работе, Вам придётся подстроится именно под требования коллектива, а в частной практике, по большому счету, конечному потребителю не так суть важная программа.
Конечно, в проектной деятельности, нам редко удаётся работать в соло режиме, всегда есть смежники (

Данный пост публикуется по причине частых вопросов, касательно самой программы в которой делаются чертежи, представленные в группе.

Программа эта называется Автокад и на картинке наглядное сравнение чертежа из рабочего пространства (тот который с серым фоном), и то как он выглядит в печати (джпг/пдф).

Речь вовсе не о пропаганде работы именно в этом редакторе (автокад), т.к. много студентов, интересуются именно этим вопросом, в погоне за качеством/скоростью/простотой, а по факту, ситуация равнозначная для любого редактора (автокад, архикад, ревит и др.). Чаще всего человек работает в той программе, которая ему первая попалась под руку либо он устроился куда-то и там был приоритет конкретному программному обеспечению. В командной работе, Вам придётся подстроится именно под требования коллектива, а в частной практике, по большому счету, конечному потребителю не так суть важная программа.

Конечно, в проектной деятельности, нам редко удаётся работать в соло режиме, всегда есть смежники (Вода, канализация, отопление, вентиляция, электрика и др.), которым допустим нужным будут Ваши исходники, но и пдф форматы, тоже могут устроить.
Так же и мы можем не только чертить, но и моделировать, а тут у нас как минимум появится +1 дополнительная программа для 3д, что существенно будет влиять на комбинацию в выборе той или ной программы. Хотя по большому счету, сейчас все отлично друг в друга импортируется и можется использоваться как «болванки» и основа для дальнейшей работы.

И хотелось бы подытожить, что размеры в любой программе Вам придется ставить вручную, оформлять и дорабатывать тоже. Да, можно настроить шаблоны, и да это будет ускорять процесс, и это все можно сделать в любой программе, но всё что будет выходить за рамки этого шаблона, так или иначе потребует дополнительного времени. И если Вы уже точно не захотите видеть «топорность» и однотипность в работе, это у Вас займёт дополнительное время, в любом редакторе которому Вы бы не отдали предпочтения.

Работайте в удовольствие, и вопрос времени отпадёт сам собой.

#ГлебГончаренко #draftingdesign #дизайнеринтерьера #рабочаядокументация #рабочиечертежи #визуализация #чертежи #автокад #autocad #дизайнчертежи