Добавить в корзинуПозвонить
Найти в Дзене
Дно Мещанства

ЖК Союз - детальные планировки. Разбираем новостройки (2/2)

Вторая часть обзора ЖК Союз - ужде конкретика. Квартиры, планировки, плюсы/минусы. И самый главный вопрос - брать или нет? Почитать первую часть про ЖК Союз. Квартиры и планировки в ЖК Союз Для примера во всех обзорах новостроек я буду рассматривать евро-двушки. Напишу отдельную статью, почему так. Вариант номер 1. 61 кв. м. 28 млн. Это - самый базовый вариант для комфортного жилья. По площади - это точно двушка, меньше многих советских трешек (привет, П-44 или II-68-03/12). Да, здесь два санузла и гардеробная (точнее, кладовка), но крохотные комнаты, кухня-ниша и небольшая гостиная. Я бы восхищался этой планировкой, так как из 61 метра выжали все, что можно. Но это премиум! Это не однушка! А тут спальня в 13 метров, со входом от барной стойки (стол не влезет) и кроватью в 2-х метрах от плиты. Такой премиум, по скандинавски, я бы сказал. Вариант 2. 62,7 кв. м. 29,6 млн. Тут площадь тоже маленькая, но более традиционная компоновка - от П-44 с традиционной линейной двушкой мы далеко
Оглавление

Вторая часть обзора ЖК Союз - ужде конкретика. Квартиры, планировки, плюсы/минусы. И самый главный вопрос - брать или нет? Почитать первую часть про ЖК Союз.

Квартиры и планировки в ЖК Союз

Для примера во всех обзорах новостроек я буду рассматривать евро-двушки. Напишу отдельную статью, почему так.

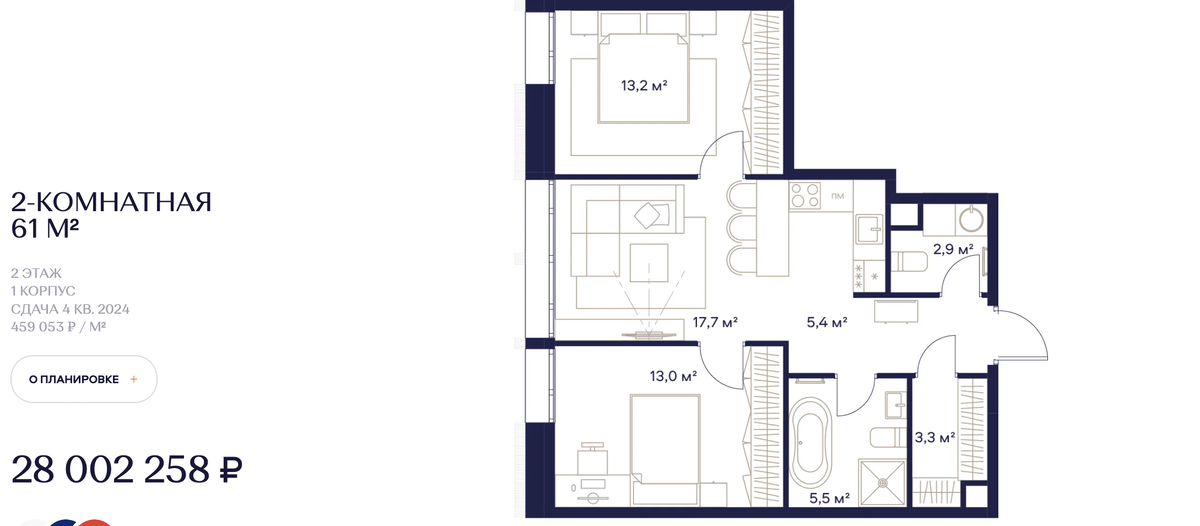
Вариант номер 1. 61 кв. м. 28 млн.

"Простецкая" двушка из ЖК Союз.
"Простецкая" двушка из ЖК Союз.

Это - самый базовый вариант для комфортного жилья. По площади - это точно двушка, меньше многих советских трешек (привет, П-44 или II-68-03/12). Да, здесь два санузла и гардеробная (точнее, кладовка), но крохотные комнаты, кухня-ниша и небольшая гостиная.

Я бы восхищался этой планировкой, так как из 61 метра выжали все, что можно. Но это премиум! Это не однушка! А тут спальня в 13 метров, со входом от барной стойки (стол не влезет) и кроватью в 2-х метрах от плиты. Такой премиум, по скандинавски, я бы сказал.

Вариант 2. 62,7 кв. м. 29,6 млн.

Двушка получше из ЖК Союз.
Двушка получше из ЖК Союз.

Тут площадь тоже маленькая, но более традиционная компоновка - от П-44 с традиционной линейной двушкой мы далеко не ушли. В этой квартире нет гостиной. Есть спальня в 15 метров, детская в 10 метров, а также кухня-гостиная в 16.7 метров с линейным кухонным гарнитуром. Драгоценная площадь потрачена на 2 санузла и достаточно большую входную группу. Представьте, что хранить ваше барахло на 1 кв. м. стоит 0.5 млн. рублей.

Вариант 3. 68.1 кв.м 29,6 млн. рублей.

Средняя двушка в ЖК Союз
Средняя двушка в ЖК Союз

Почему-то здесь стоимость за метр меньше, чем у других квартир. Видимо из-за скошенных стен или неприглядного вида. Но выигрыш в площади сравняли двушку с советскими трешками. Здесь уже полноценная мастер-спальня, небольшая кухня-гостиная с кухонным уголком в нише и детская. Короче, обычная двушка с большой кухней.

Обратите внимание, что ни в одной квартире выше нет балкона

Вариант 4. 74.2 кв. м 34 млн. рублей

Флагманская двушка в ЖК Союз
Флагманская двушка в ЖК Союз

Так где? Где архитектура, где премиум-формат от ведущих архитекторов? Ну давайте посмотрим на флагманскую двушку, самой большой площади. Как та самая трешка в П-44.

Но в отличии от нее, здесь всего три окна и все они на одну сторону. Да, добавили 2 маленьких балкона. Мастер-спальня подросла, детская тоже, чуть-чуть. А кухня-гостиная стала меньше. И все это за полмиллиона евро через 3 года, включая ремонт.

Инфраструктура и фишки ЖК

Ее нет. Да, на первых этажах, конечно, откроют бары, кальянные (привет, спорт!), и прочие вкусвиллы. Но городская инфраструктура здесь исключительно спортивная, да и то, непонятно, что здесь будет - так как сейчас там все с советских времен. Про транспорт (чтобы поехать в театр или музей, а также в ТЦ), уже писал.

То есть, для спального района все ок. Но не для ЖК класса премиум. Но больше в шаговой доступности (15 минут, 2 км) ничего нет. Рядом нетобщегородских точек притяжения , куда люди приезжают специально из других районов. Нет разнообразия объектов, которое могло бы выделить ЖК среди других (например, 8 супермаркетов разных сеток рядом).

Да, метро не так далеко, но идти по узкой тропинке (а не через бульвар, например). Да, рядом парки-река. Но фасад ЖК - это второстепенный перекресток районного масштаба, где ничего интересного не происходит. Да, рядом ВДНХ, но будем честны, что обитателям ЖК премиум-класса там делать по идее нечего.

Мне прямо рисуется мрачная картина - где-то в спальнике СВАО суровые ребята с ипотекой с суровыми лицами качают штанги под свинцовым московским небом и думают, что живут в премиуме.

Плюсы и минусы

Давайте с плюсов:

  • концепция с упором на спорт (вроде не было?)
  • красивая архитектура в стиле Contemporary
  • все, больше плюсов нет.

А минусов много:

  • СВАО, не самое престижное место для премиального ЖК
  • плохая транспортная развязка, не очень хорошая доступность станций метро, все на одной ветке
  • отсутствие знаковых точек притяжения рядом с ЖК, куда бы из других районов приезжали специально
  • достаточно сдержанные планировки, не соответствующие премиуму
  • запредельная стоимость квадратного метра в 465 тыс. рублей на старте продаж

Выводы - стоил ли брать квартиру в ЖК Союз?

Конечно же нет. Такой ЖК - очередной дутый пузырь маркетологов, с попыткой продать дороже то, что стоит дешевле.

Понимаете, в чем дело: основная себестоимость ЖК - это земля, коммуникации, ЖБ-каркас и документы на это все. И это у всех ЖК одинаково. Вся архитектура, концепция, отделка, начинается после. И почему-то здесь при откровенно слабых входных данных из всей навесной шелухи хотели создать шедевр и образец стиля жизни.

Не вышло. Дорого и глупо. За 26-29 миллионов продается куча уже готовых квартир в более понятных с точки зрения покупателя ЖК. Готовых, сразу въезжай. В том же ЖК Триколор, который рядом (о нем расскажу еще) - за 27 миллионов 100 кв. м.

А мог бы получиться нормальный комфорт-класс без маркетинговой чепухи (центр биохакинга😆), и жителям СВАО было бы понятнее жить в таком доме и рядом с ним.

Хотите выбрать нормальную квартиру в "правильном" ЖК? Не хотите переплатить? Приходите на консультацию к автору блога Дно Мещанства. Разберем ваш случай и подберу вам самые лучшие варианты.

>>> Цены, скидки и отзывы о консультациях <<<