Добавить в корзинуПозвонить
Найти в Дзене
ЭТО ВАШ ИНТЕРЬЕР

Девушка-архитектор сделала бюджетное преображение своей "однушки" площадью 39 кв. метров

Данную квартиру наша героиня приобрела вместе с мужем пару лет назад. И так как она работает архитектором, она решила сделать квартиру собственноручно и использовать бюджетные приемы, которые можно будет потом использовать и в других проектах. Проект Прихожая Прихожая выполнена в светлых тонах. Стены оклеены рельефными обоями под покраску. На полу выложен серый керамогранит. Справа от входа расположился большой зеркальный шкаф до самого потолка, чтобы максимально рационально использовать пространство. Комната Стены в комнате тоже оклеили обоями под покраску. Напольное покрытие выложено из паркетной доски. У стены расположилась большая система хранения. Хозяйка квартиры считает, что для комфортного и здорового сна необходима кровать, поэтому посередине комнаты появилась просторная двуспальная кровать с ортопедическим матрацем. Так же у нее имеется подъемный механизм, который скрывает дополнительное место для хранения вещей. Напротив кровати расположилась ТВ-зона с модульной системой хра
Оглавление

Данную квартиру наша героиня приобрела вместе с мужем пару лет назад. И так как она работает архитектором, она решила сделать квартиру собственноручно и использовать бюджетные приемы, которые можно будет потом использовать и в других проектах.

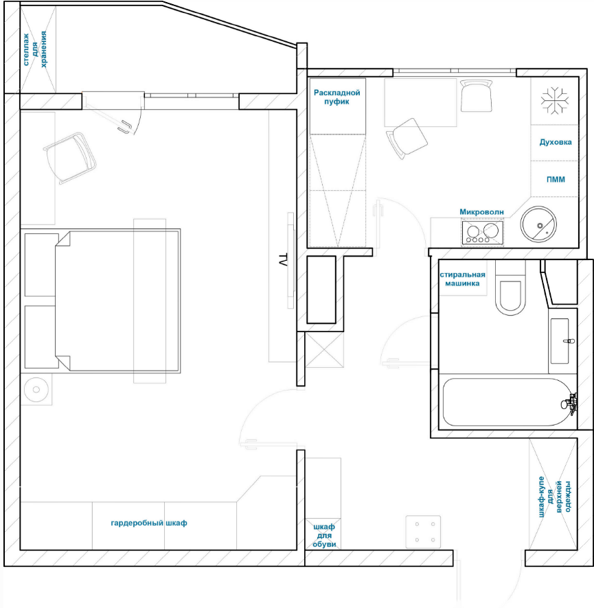
Проект

  • Местонахождение: г. Москва
  • Площадь квартиры: 39 кв. метров
  • Владельцы: молодая пара

Прихожая

Прихожая выполнена в светлых тонах. Стены оклеены рельефными обоями под покраску. На полу выложен серый керамогранит. Справа от входа расположился большой зеркальный шкаф до самого потолка, чтобы максимально рационально использовать пространство.

Комната

Стены в комнате тоже оклеили обоями под покраску. Напольное покрытие выложено из паркетной доски. У стены расположилась большая система хранения. Хозяйка квартиры считает, что для комфортного и здорового сна необходима кровать, поэтому посередине комнаты появилась просторная двуспальная кровать с ортопедическим матрацем. Так же у нее имеется подъемный механизм, который скрывает дополнительное место для хранения вещей.

Напротив кровати расположилась ТВ-зона с модульной системой хранения. Возле кровати появился столик на колесиках, который можно с легкостью передвигать по всей кровати. Ближе к окну расположилась рабочая зона.

Кухня

Кухню решили сделать в приглушенных темных тонах. Нижний ярус насыщенного шоколадного цвета, а верхний ярус имитирует деревянную поверхность. Фартук выложен и светлого керамогранита. У окна расположилась столовая группа со столом-трансформером, который при необходимости, увеличивается в два раза. Пуф тоже раскладной, он может трансформироваться в спальное место.

Ванная комната

Ванная комната целиком оформлена керамогранитом двух цветов: серый и бежевый. Потолок сделан из реечного металла, который имитирует деревянную поверхность.

-6

Если вам понравилась статья, то не забудьте поставить лайк и подписаться, чтобы не пропустить новый материал!

Так же пишите в комментариях, что вам понравилось в этом проекте, а что вызывает сомнения.