Добавить в корзинуПозвонить
Найти в Дзене

Необычная однокомнатная квартира (3 Варианта Планировки)

Ко мне на разбор попала однокомнатная квартира с не самой удачной планировкой от застройщика, но благо, что на кухне нет газа!
Это значит, что мы можем придумать пару нескучных вариантов для ее хозяйки! Погнали!
Для начала, давайте ознакомимся, с чем предстоит иметь дело, разберем плюсы и минусы "исходника". Первое, на что обращаем внимание - это длинный и узкий коридор.
Его длина 4400 мм. Шириной он 1150 мм, а это значит, что стандартной глубины шкафы (500-600 мм) туда не поставить, так как для прохода просто не останется места. Санузлы раздельные, но их площадь на столько мала, что разместить стиральную машинку очень проблематично. По траектории движения, у нас угол.
Первое - это не удобно.
Второе - в каком материале отделки небыли бы решены стены, в этом месте износ визуально будет очень заметен. Маленькая кухня.
Два метра на два триста. С современном запросом на функциональный кухонный гарнитур с местом под размещение бытовой техники временного и регулярного использования, мес
Оглавление

Ко мне на разбор попала однокомнатная квартира с не самой удачной планировкой от застройщика, но благо, что на кухне нет газа!
Это значит, что мы можем придумать пару нескучных вариантов для ее хозяйки! Погнали!

Для начала, давайте ознакомимся, с чем предстоит иметь дело, разберем плюсы и минусы "исходника".

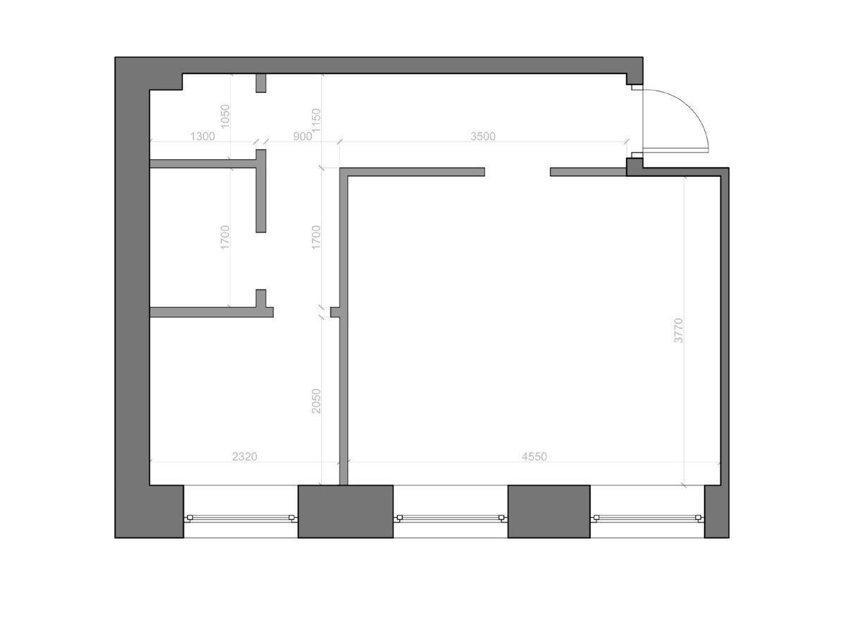
Исходный план. Квартира 32 м2. Давайте смотреть все нюансы квартиры.
Исходный план. Квартира 32 м2. Давайте смотреть все нюансы квартиры.
-2

Первое, на что обращаем внимание - это длинный и узкий коридор.
Его длина 4400 мм. Шириной он 1150 мм, а это значит, что стандартной глубины шкафы (500-600 мм) туда не поставить, так как для прохода просто не останется места.

-3

Санузлы раздельные, но их площадь на столько мала, что разместить стиральную машинку очень проблематично.

-4

По траектории движения, у нас угол.
Первое - это не удобно.
Второе - в каком материале отделки небыли бы решены стены, в этом месте износ визуально будет очень заметен.

-5

Маленькая кухня.
Два метра на два триста. С современном запросом на функциональный кухонный гарнитур с местом под размещение бытовой техники временного и регулярного использования, места ну ооочень мало.

Но давайте перечислим и плюсы!

-6

Жилая комната довольно просторная, правильной формы и с хорошим естественным освещением, это плюс.

3 Окна. Для однокомнатной квартиры это редкость! Проблем с естественным освещением однозначно не возникнет.

Небольшой вывод: квартира светлая и довольно просторная, минусы есть, но давайте их исправим! И разумеется, максимально постараемся остаться в рамках закона.

Давайте посмотрим варианты планировки, что у меня получились.

Первый вариант

Санузлы объединили и немного увеличили на территорию коридора, это позволило запроектировать вместительный бытовой шкаф для хранения.
Проход на кухню сделали из гостиной, что позволило увеличить кухонный гарнитур на ширину дверного проема - во всю ширину кухни, а со стороны ванной комнаты, в этом месте разместили колонну со стиральной машиной.
Кухонный гарнитур угловой, обеденный стол на 2-4 человека прямоугольной формы.

Стоит отметить зону спальни.
Согласовать выгородку спальни в данном варианте не получится, так как ширина этой спальной зоны всего 2,3 м. По действующим нормам, ширина жилой комнаты должна быть не меньше 2,5 м.
Сделать шире не получится из-за соседнего оконного проема. Поэтому, предлагаю установить между зоной спальни и кухней-гостиной светопрозрачную перегородку со шторой со стороны спальни, тогда, при составлении проектной документации на согласование перепланировки, в экспликации помещений отдельной комнатой ее обозначать будет не нужно.

Второй вариант

В зоне прихожей проектируем большой вместительный шкаф.
Санузлы в этом варианте объединять не будем, но площадь на коридор немного увеличим.
Стиральную машину так же разместим во встроенном шкафу строго на территории бывшего коридора.
Кухонный гарнитур угловой, обеденный стол на 2-4 человека в этом варианте круглой формы.
В зоне спальни, вдоль окна располагаем рабочий стол.

В этом варианте такой же нюанс с зоной спальни (ширина меньше 2.5 м), так что предлагаю аналогичное решение со светопрозрачной перегородкой, чтобы не возникло проблем при согласовании.

Третий вариант

Согласно действующим нормативам, мы можем рассмотреть перенос кухни на территорию коридора, если соблюсти подключение кухонной вытяжки в вент канал кухни, и предусмотреть площадь получившейся кухни-ниши не меньше 5м2. Повторюсь, в нашем примере кухня не газифицирована.

В таком варианте у нас маленький коридор, но зато очень просторная общая зона.

Угловой кухонный гарнитур гораздо больше чем на предыдущих вариантах.

Рабочий стол возле окна.

Зона гостиной с угловым диваном и ТВ-стенкой.

Спальное место за светопрозрачными перегородками.

Моментом, что меня смущает в этом варианте, стала дверь из санузла в общую зону.
По нормам, если в квартире только один санузел, то дверь из помещения, где расположен его величество унитаз, должна выходить в нежилое помещение, например в холл или коридор.
В этом варианте хочу предложить хитрость, и обозначить выделенную на плане зону, "умывальней".
Технически, это будет буферная зона между помещением с унитазом и жилым пространством квартиры. Тем более, следуя нормам, из помещения с раковиной дверь может выходить в жилую комнату, а значит нарушения нет.

Вот такие необычные варианты для обычной квартиры я подготовила!

Как Вы считаете, получится ли согласовать эти варианты?
Какие видите сложности? Или, возможно, я что-то упустила, и можно сделать лучше?
Пожалуйста, поделитесь своим опытом и мнением, мне это очень важно!

Если было полезно, пожалуйста, поставьте лайк!
Так я буду знать, что разбор вам понравился и с удовольствием еще поделюсь интересными объектами из своей практики!

А если хотите так же посмотреть на свою квартиру под другим углом и понять ее реальные возможности, добро пожаловать на
сайт!

#планировкаквартиры #перепланировка #перепланировкаоднушки #перепланировкаквартиры #ремонтванной #ремонтсвоимируками