Добавить в корзинуПозвонить
Найти в Дзене
РЕМОНТ С ДИЗАЙНЕРОМ

Интерьер в стиле контемпорари с трехцветной кухней

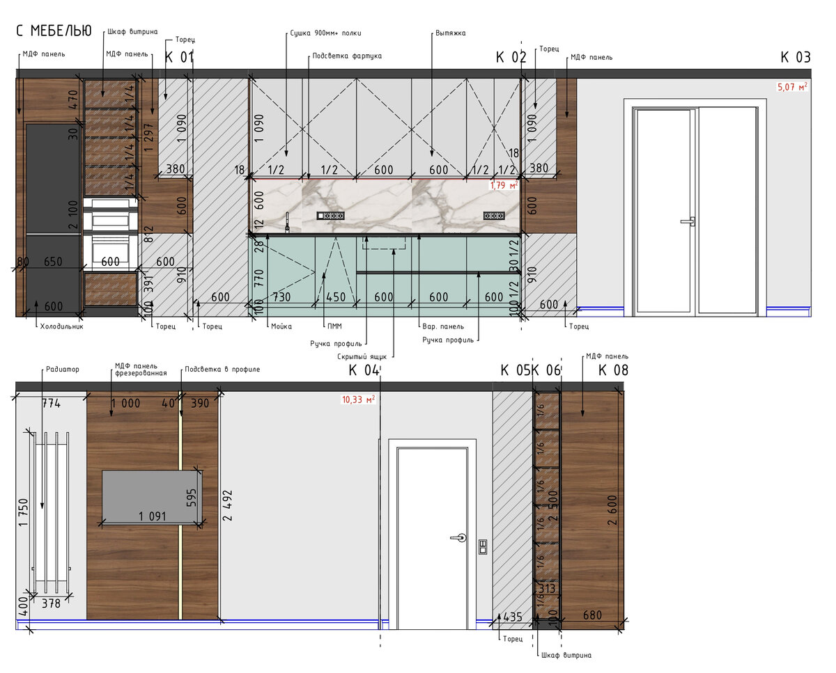
👌 Трехцветная кухня с невидимыми ручками и подсветкой выглядит очень стильно 👌 Холодильник, техника и барная зона вынесены в высокие модули слева от основного гарнитура Наш дизайн-проект для этой квартиры выполнен в стиле контемпорари, с использованием природной цветовой гаммы с синими и зелеными акцентами. Мы искали золотую середину между модными трендами и нейтральным образом расслабляющего интерьера. Клиентка — молодая женщина — хотела в итоге получить интерьер гармоничный и функциональный. 👌 В гостиной тумба под ТВ и библиотека сделаны под заказ Эта квартира может похвастаться уникальной планировкой: гостиной с панорамным эркером; огромной лоджией, где разместился кабинет и место для отдыха; просторной спальней с гардеробной; большой ванной + к постирочной. 👌 Тропические обои с птицами в спальне смотрятся очень эклектично 👌 В ванной комнате эффектная мятная плитка в стиле марокканский зеллидж и керамогранит под белый итальянский мрамор 👌 Постирочная является еще и гостевым с

👌 Трехцветная кухня с невидимыми ручками и подсветкой выглядит очень стильно

👌 Холодильник, техника и барная зона вынесены в высокие модули слева от основного гарнитура

-2

Наш дизайн-проект для этой квартиры выполнен в стиле контемпорари, с использованием природной цветовой гаммы с синими и зелеными акцентами.

-3

Мы искали золотую середину между модными трендами и нейтральным образом расслабляющего интерьера. Клиентка — молодая женщина — хотела в итоге получить интерьер гармоничный и функциональный.

-4

👌 В гостиной тумба под ТВ и библиотека сделаны под заказ

-5

Эта квартира может похвастаться уникальной планировкой: гостиной с панорамным эркером; огромной лоджией, где разместился кабинет и место для отдыха; просторной спальней с гардеробной; большой ванной + к постирочной.

-6

👌 Тропические обои с птицами в спальне смотрятся очень эклектично

-7
-8

👌 В ванной комнате эффектная мятная плитка в стиле марокканский зеллидж и керамогранит под белый итальянский мрамор

-9
-10
-11
-12

👌 Постирочная является еще и гостевым санузлом

Планировка

-13

⭐️ Кухня — 12,53 м² + лоджия 12,42 м²

⭐️ Гостиная — 20,24 м²

⭐️ Спальня — 17,17 м²

⭐️ Прихожая — 9,17 м²

⭐️ Ванная комната — 4,73 м²

⭐️ Постирочная + гостевой санузел — 2,88 м²

⚜️ Эксклюзивный интерьер в безупречном исполнении ⚜️

⚜️ massonistudio.ru ⚜️

⚜️ @massonistudio.ru ⚜️

⚜️ vk.com/massonistudio ⚜️