Найти в Дзене

КРОХА С ГАРАЖОМ - проект дома 165 м2 с 4 спальнями и хобби–комнатой

Несмотря на скромные размеры и отсутствие фасадного декора этот небольшой дом выглядит стильно и представительно: привлекательность ему придаёт эркер на четырёх столбах над крыльцом. Этот домик - вариант нашего старинного проекта КРОХА 102 м2, но с пристроенным гаражом ПЕРВЫЙ ЭТАЖ ВТОРОЙ ЭТАЖ КОНСТРУКТИВНЫЕ ОСОБЕННОСТИ ФУНДАМЕНТЫ – монолитные на глубине промерзания
СТЕНЫ – газосиликатные блоки толщиной 400мм с облицовкой кирпичом
ПЕРЕКРЫТИЯ – деревянные утепленные по деревянным балкам и тавровым лагам
КРОВЛЯ – утепленная, стропильная по деревянным балкам
Оглавление

Несмотря на скромные размеры и отсутствие фасадного декора этот небольшой дом выглядит стильно и представительно: привлекательность ему придаёт эркер на четырёх столбах над крыльцом.

Этот домик - вариант нашего старинного проекта КРОХА 102 м2, но с пристроенным гаражом

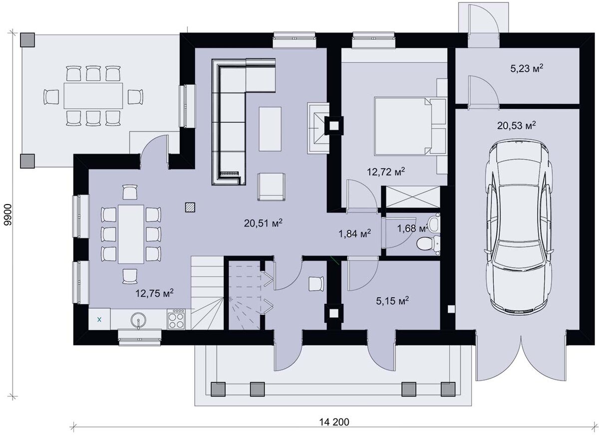
ПЕРВЫЙ ЭТАЖ

Основа интерьеров дома – камин, лестница, эффектное «лофт» помещение гостиной и двусветное пространство кухни – столовой с высокими окнами. Из столовой есть летний выход на террасу и участок.
Основа интерьеров дома – камин, лестница, эффектное «лофт» помещение гостиной и двусветное пространство кухни – столовой с высокими окнами. Из столовой есть летний выход на террасу и участок.

ВТОРОЙ ЭТАЖ

Над гаражом разместили комнату отдыха – детскую или домашний кинотеатр. На мансарде - три комнаты и ванная.
Над гаражом разместили комнату отдыха – детскую или домашний кинотеатр. На мансарде - три комнаты и ванная.
  • Ещё один похожий по внешности и плану дом с гаражом - СВЕТЛЫЙ 140

КОНСТРУКТИВНЫЕ ОСОБЕННОСТИ

-4

ФУНДАМЕНТЫ – монолитные на глубине промерзания
СТЕНЫ – газосиликатные блоки толщиной 400мм с облицовкой кирпичом
ПЕРЕКРЫТИЯ – деревянные утепленные по деревянным балкам и тавровым лагам
КРОВЛЯ – утепленная, стропильная по деревянным балкам

  • Информация для приобретения проекта - на странице дома на основном сайте ИНВАПОЛИС
  • Другие проекты домов с гаражами от архитекторов ИНВАПОЛИС можно посмотреть в каталоге на сайте.
  • Если Вам интересны наши проекты, подписывайтесь на канал ИНВАПОЛИС-ДЗЕН, смотрите обзоры и подборки домов, задавайте вопросы авторам в комментариях.
  • Следить за новостями и смотреть обзоры проектов ИНВАПОЛИС можно также в ТЕЛЕГРАММ-КАНАЛЕ – подписывайтесь, контент немного отличается от ДЗЕН 😊