Добавить в корзинуПозвонить
Найти в Дзене
Инженер ПГС

Проектирование и строительство беседки совмещенной с хозяйственным блоком

Предыстория данного заказа следующая: РФ, обл. Московская, район Одинцовский, деревня Чапаевка, территория СНТ «Сокол». На одном из участков происходит неконтролируемый процесс горения вне специального очага, возникший непроизвольно, который сопровождался материальным ущербом (горение существующей беседки). Заказчик (Андрей) принимает решение о комплексе работ, результатом которых является техническая документация для строительства. Были определены стадии проектирования и последовательность выполнения стадий проектных работ, которые привели к достижению эффективных решений и регламентировали взаимоотношения между Заказчиком и Исполнителем (мною, как руководителем проекта). Конечной продукцией в строительстве является результат готового здания или сооружения. Новая беседка, совмещенная с хозяйственным блоком, была построена. Спустя год я написал Заказчику и задал вопрос: – как проходит эксплуатация беседки? Заказчик (Андрей) ответил: беседка радует, все отлично, эксплуатация на 200%, вс

Предыстория данного заказа следующая: РФ, обл. Московская, район Одинцовский, деревня Чапаевка, территория СНТ «Сокол». На одном из участков происходит неконтролируемый процесс горения вне специального очага, возникший непроизвольно, который сопровождался материальным ущербом (горение существующей беседки).

Заказчик (Андрей) принимает решение о комплексе работ, результатом которых является техническая документация для строительства. Были определены стадии проектирования и последовательность выполнения стадий проектных работ, которые привели к достижению эффективных решений и регламентировали взаимоотношения между Заказчиком и Исполнителем (мною, как руководителем проекта).

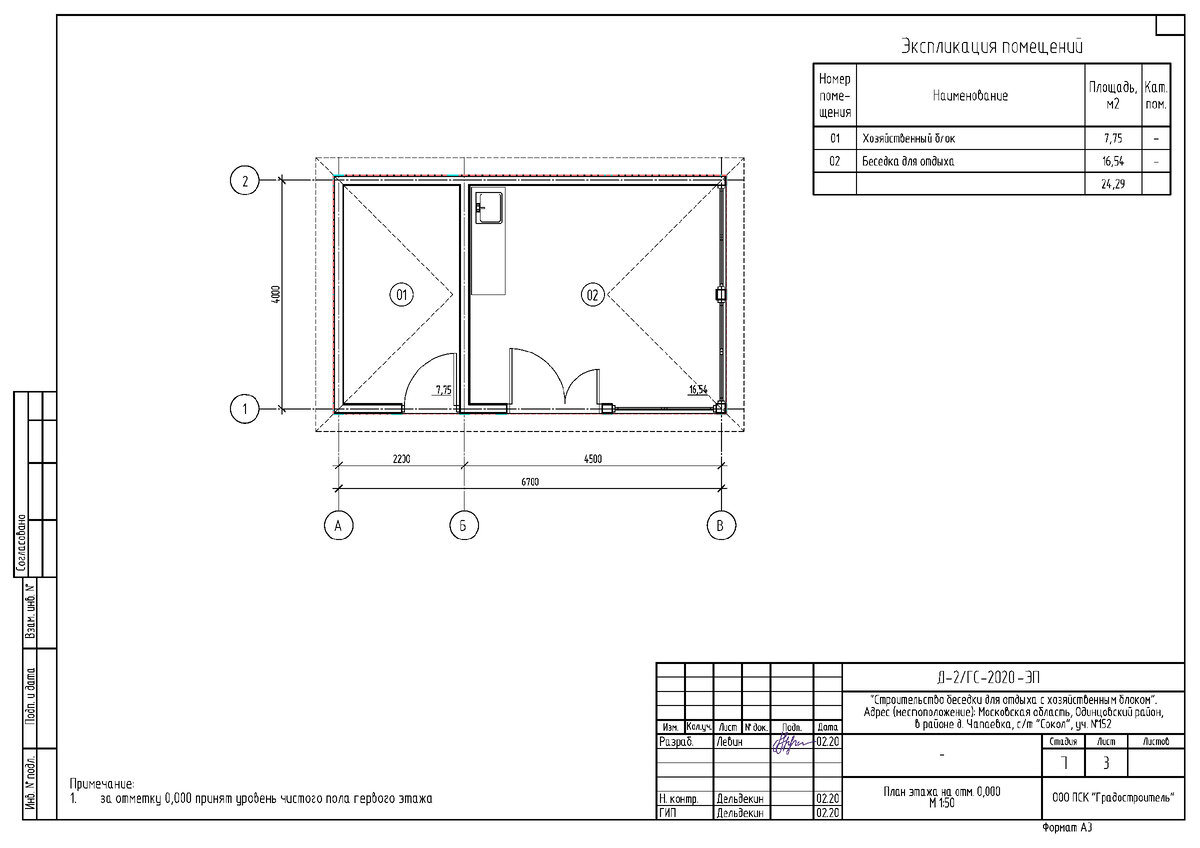
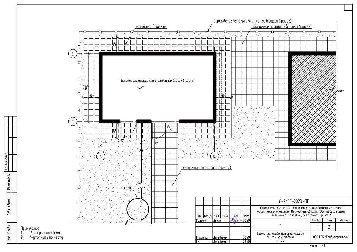
Конечной продукцией в строительстве является результат готового здания или сооружения. Новая беседка, совмещенная с хозяйственным блоком, была построена. Спустя год я написал Заказчику и задал вопрос: – как проходит эксплуатация беседки? Заказчик (Андрей) ответил: беседка радует, все отлично, эксплуатация на 200%, все удобно и практично.

Андрей! Вашему радостному моменту хочется подарить одну из лучших цитат:

«Человек рождается, чтобы радоваться жизни. Смотри, какое чистое небо, какая весна, смотри, сколько на земле интересного. Когда радуешься, разве спрашиваешь, зачем?

Радуешься, вот и все» – Владислав Крапивин.

Уважаемая аудитория Заказчиков!

У вас есть вопросы по проектированию – задавайте их прямо в комментариях!

С уважением, руководитель проектов, Виталий Дельдекин!