Найти в Дзене

ОШИБКИ В ПЛАНИРОВКЕ КВАРТИР

Если коротко, ПЕРЕПЛАНИРОВКА КВАРТИРЫ - это изменения конфигурации квартиры, требующие внесения изменения в технический паспорт БТИ и кадастр.
Запрещены любые мероприятия, ведущие к ухудшению условии проживания соседей или ограничивающие доступ к общедомовым коммуникациям.‼️
🔻Перенос радиаторов отопления, подключенных к общедомовой системе горячего водоснабжения и (или ) центрального отопления, на лоджии, балконы, веранды и террасы.
🔻Устройство полов в санузлах и других мокрых помещениях без гидроизоляции.
Уровень пола в этих помещениях должен быть на 15-20 мм ниже, чем в комнатах, или отделяться порожком. Сейчас разрешено делать полы всех помещений в один уровень , при условии, со будет сделана гидроизоляция по полу всей квартиры.
🔻Устройство выхода из помещения с унитазом (санузел, туалет) в кухню или комнату
🔻Объединять вентиляцию кухни и санузлов
🔻Организация кухни-ниши площадью менее 5 кв.м.
🔻Организация кухни без естественного освещения
🔻Устройство или перенос ку

Если коротко, ПЕРЕПЛАНИРОВКА КВАРТИРЫ - это изменения конфигурации квартиры, требующие внесения изменения в технический паспорт БТИ и кадастр.

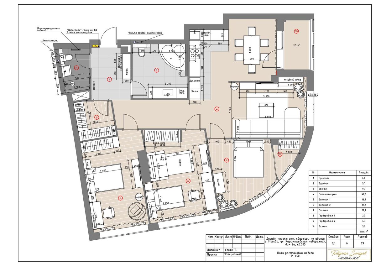
На фото одна из моих любимых планировок на Карамышевской набережной. Очень сложно работать с загнутыми стенами! Но нужное решение было найдено!! Конечно далеко не с первой попытки..))
На фото одна из моих любимых планировок на Карамышевской набережной. Очень сложно работать с загнутыми стенами! Но нужное решение было найдено!! Конечно далеко не с первой попытки..))


Запрещены любые мероприятия, ведущие к ухудшению условии проживания соседей или ограничивающие доступ к общедомовым коммуникациям.‼️

🔻Перенос радиаторов отопления, подключенных к общедомовой системе горячего водоснабжения и (или ) центрального отопления, на лоджии, балконы, веранды и террасы.

🔻Устройство полов в санузлах и других мокрых помещениях без гидроизоляции.

Уровень пола в этих помещениях должен быть на 15-20 мм ниже, чем в комнатах, или отделяться порожком. Сейчас разрешено делать полы всех помещений в один уровень , при условии, со будет сделана гидроизоляция по полу всей квартиры.

🔻Устройство выхода из помещения с унитазом (санузел, туалет) в кухню или комнату

🔻Объединять вентиляцию кухни и санузлов

🔻Организация кухни-ниши площадью менее 5 кв.м.

🔻Организация кухни без естественного освещения

🔻Устройство или перенос кухни на территорию жилой комнаты .

🔻Устройство проемов между жилыми комнатами и газифицированными кухнями без плотно закрывающейся двери.

🔻Объединение газифицированной кухни с жилой комнатой.

🔻Устройство полов с подогревом от общедомовых систем горячего водоснабжения и (или) отопления.

🔻Расширение или перенос санузлов, ванных комнат туалетов, душевой и т.д. на территорию кухни или жилой
комнаты.

🔻Устройство проемов, вырубка ниш, пробивка отверстий в несущих стенах, без согласования.

🔻Нельзя штробить монолитные стены и колонны. (Но!) Строители иногда делают неглубокую штробу на 10-20 мм до арматуры внутри стены , чтобы провести в ней повод.

🔻Нельзя демонтировать стены вокруг вентшахты или делать в них ниши , даже если сама вентшахта не затрагивается.

🔻Увеличение нагрузки на несущие конструкции сверх допустимых при устройстве стяжек в полах, замене перегородок из легких материалов на перегородки из тяжёлых, например из кирпича, размещении дополнительного оборудования в помещениях квартир, например бассейнов ))

И хорошие новости😊
✅Душевые поддоны с трапами в ванных комнатах теперь разрешены!!

Остались вопросы? Пишите в комментариях