Найти в Дзене
Дом мечты с Bonolit

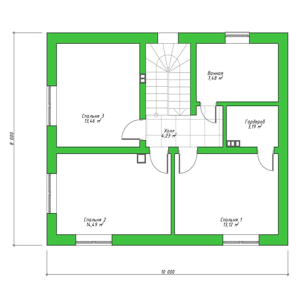
Проект двухэтажного дома из газобетона c удобной планировкой

Общая площадь - 160 кв.м Площадь помещений - 116,4 кв.м Высота первого этажа - 3 м Высота второго этажа - 2,75 м Габариты - 10 х 8 м Комплектация этого дома: ▶ Фундамент - плита с ребрами вверх ▶ Несущие стены - газобетонный блок Bonolit 400 и 250 мм, ненесущие стены - блок 150 мм ▶ Перекрытие 1 этажа - монолитная ж/б плита 160 мм ▶ Чердачное перекрытие - балочное перекрытие с утеплением 200 мм, пароизоляцией и гидроизоляцией ▶ Кровля - стропильная система с гидроизоляцией и покрытием цементно-песчаной черепицей со снегозадержанием. А Вы уже выбрали проект будущего дома? Дом какой площади рассматриваете? Ознакомить с ценами на материалы для стен можно на сайте Bonolit Group: bonolit.ru Подписывайтесь на наш telegram-канал - t.me/...ial Группа ВКонтакте - vk.com/...lit

Общая площадь - 160 кв.м

Площадь помещений - 116,4 кв.м

Высота первого этажа - 3 м

Высота второго этажа - 2,75 м

Габариты - 10 х 8 м

Комплектация этого дома:

▶ Фундамент - плита с ребрами вверх

▶ Несущие стены - газобетонный блок Bonolit 400 и 250 мм, ненесущие стены - блок 150 мм

▶ Перекрытие 1 этажа - монолитная ж/б плита 160 мм

▶ Чердачное перекрытие - балочное перекрытие с утеплением 200 мм, пароизоляцией и гидроизоляцией

▶ Кровля - стропильная система с гидроизоляцией и покрытием цементно-песчаной черепицей со снегозадержанием.

Реализованный проект под чистовую отделку
Реализованный проект под чистовую отделку

А Вы уже выбрали проект будущего дома? Дом какой площади рассматриваете?

Ознакомить с ценами на материалы для стен можно на сайте Bonolit Group: bonolit.ru

Подписывайтесь на наш telegram-канал - t.me/...ial

Группа ВКонтакте - vk.com/...lit