Найти в Дзене
SALON-interior

Натуральный камень, дерево и винные оттенки: модный интерьер квартиры

Говорят, что вино продлевает жизнь. Эту мысль раскрывают в своём новом проекте архитекторы Анастасия Крусс и Анна Сычёва, придумавшие респектабельный интерьер с акцентами благородных винных оттенков. Заказчики и задачи Жизнь заказчиков стремительно менялась в ходе реализации проекта: молодая пара с ребёнком готовилась к скорому пополнению в семье. Интерьер своей квартиры в квартале Wine House они доверили Анастасии Крусс и Анне Сычёвой, которые оперативно разработали дизайн-концепцию и приступили к ремонту, как только дом ввели в эксплуатацию. Планировка В первую очередь перед авторами встала задача грамотного архитектурного планирования с общей и частными зонами для родителей и детей. На площади 160 квадратных метров они организовали просторную гостиную–столовую, где можно комфортно проводить вечера за просмотром фильма или устраивать встречи с друзьями, которым в этом доме всегда рады. Принципиально важной задачей при проектировании было учесть пожелание заказчиков отделить кухню, чт
Оглавление

Говорят, что вино продлевает жизнь. Эту мысль раскрывают в своём новом проекте архитекторы Анастасия Крусс и Анна Сычёва, придумавшие респектабельный интерьер с акцентами благородных винных оттенков.

Заказчики и задачи

Жизнь заказчиков стремительно менялась в ходе реализации проекта: молодая пара с ребёнком готовилась к скорому пополнению в семье. Интерьер своей квартиры в квартале Wine House они доверили Анастасии Крусс и Анне Сычёвой, которые оперативно разработали дизайн-концепцию и приступили к ремонту, как только дом ввели в эксплуатацию.

Планировка

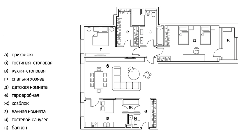
В первую очередь перед авторами встала задача грамотного архитектурного планирования с общей и частными зонами для родителей и детей. На площади 160 квадратных метров они организовали просторную гостиную–столовую, где можно комфортно проводить вечера за просмотром фильма или устраивать встречи с друзьями, которым в этом доме всегда рады.

Принципиально важной задачей при проектировании было учесть пожелание заказчиков отделить кухню, чтобы запахи еды не распространялись по всей квартире. В качестве решения дизайнеры использовали панорамные светопрозрачные перегородки, благодаря чему удалось не нарушить визуальную целостность всего общественного блока. Также авторы применили необычное «кольцевое» планировочное решение, объединив сквозным проходом прихожую, гостиную, кухню и хозблок.

Архитекторы стремились сохранить ощущение лёгкости пространства, поэтому в доме нет лишних дверей и коридоров. Приватная часть квартиры скрыта за деревянной дверью, сливающейся со стеновыми панелями, и вход туда практически незаметен. В одном крыле расположен блок помещений для хозяев, включающий в себя вместительную гардеробную и спальную зону, в другом — детская комната с двумя кроватями, рабочим столом и балконом.

Планировка квартиры
Планировка квартиры

Гостиная

В гостиной разместили систему открытых подвесных книжных шкафов и закрытых полок с минималистичными однотонными фасадами. Центральную часть основного пространства формируют мягкий, уютный диван Meridiani в насыщенном ягодном бархате и дополняющее его кресло Molteni&C глубокого синего цвета. Благородные натуральные фактуры в отделке стен прекрасно сочетаются с журнальными столиками Poliform из брашированного дуба. Светильники от Delta Light в виде штанги со спотами имеют функцию диммирования, с их помощью можно создавать различные сценарии освещения.

Мрамор Cote d’Azur, который использован для стены в зоне гостиной, довольно редкий, его месторождение практически исчерпано. Все работы с горной породой были выполнены в мастерской «Гранпристрой».

Кухня-столовая

Связующей для кухни и гостиной является композиция из вертикальной деревянной панели, столешницы и стеклянной перегородки. Новым для дизайнеров решением стало использование дерева в оформлении потолка. Реечная структура с просвечивающей через неё белой штукатуркой позволила избежать излишней визуальной тяжести. В конструкцию встроен незаметный глазу точечный технический свет.

Авторы проекта: Анна Сычева, Анастасия Крусс. Фото: Дмитрий Чебаненко
Авторы проекта: Анна Сычева, Анастасия Крусс. Фото: Дмитрий Чебаненко

«Технологическое решение этого производителя впечатляет своим передовым дизайном и превосходной эргономикой. Фасады из матового стекла и нетрадиционная конструкция делают её уголком для профессионального приготовления пищи», — отмечает Анастасия Крусс.

Сотни огоньков люстры Baxter парят облаком над монументальным мраморным столом Meridiani в зоне столовой и создают праздничное настроение днём и ночью. Кресла в обивке из буклированной ткани, перекликаясь с мягкой группой в гостиной, добавляют уюта и одновременно усложняют лаконичный и строгий интерьер.

Спальня и гардеробная

Тема природных материалов передана через акцентную стену, расписанную в абстрактном стиле художниками из компании Peak Art. Художественная композиция напоминает бескрайние просторы горных пейзажей и дарит вдохновение и заряд энергии в любое время дня. Изголовье кровати Molteni&C из гладкой кожи в глубоком цвете индиго поддерживает палитру абстрактной живописи на стене.

В зоне главной спальни спроектировали вместительную гардеробную (Rimadesio), скрытую за тонированным стеклом с зеркальным эффектом и декоративной деревянной панелью.

Ванная комната

Стена в ванной комнате облицована мрамором Arabescato Orobico насыщенного серого цвета. За счёт удачной раскройки слэб с характерными разводами, отражаясь в зеркале, создаёт выразительный натуральный рисунок, который оттеняют лаконичная фоновая напольная плитка и однотонная краска.

Проекты архитекторов и дизайнеров, интерьеры знаменитостей, обзоры новинок мировых брендов — на нашем канале! Подписывайтесь: https://zen.yandex.ru/salon.ru

Какая палитра для кухни — беспроигрышный вариант? Показывают дизайнеры

Модные яркие или практичные светлые? Этот материал расставит все точки над I.

5 идей для функционального хранения в гостиной без ущерба эстетике

Эти решения помогут вам создать удобную, а главное, красивую систему хранения.

Какие эмоции у вас вызвал этот интерьер? Нравится ли, как была проведена работа с цветом и фактурами?