Добавить в корзинуПозвонить
Найти в Дзене
Торговый дом Фрегат

Газопоршневая электростанция на попутном нефтяном газе

Газопоршневая электростанция на попутном нефтяном газе суммарной мощностью 1600 кВт. Основным преимуществом данной электростанция является возможность работы на попутном нефтяном газе. Этот проект полностью учитывает характеристики нефтяных и газовых месторождений. Использование попутного нефтяного газа для выработки электроэнергии на месте означает, что попутный газ преобразуется в электричество, а выбросы углерода сокращаются, тем самым снижая вред для окружающей среды. Газопоршневая электростанция суммарной мощностью 1600 кВт состоим из двух генераторных установок по 800 кВт каждая, работающих в параллель, и системы подготовки попутного нефтяного газа. Комплект состоит из четырёх 20 футовых морских контейнера и одного 40 футового. В двух 20 футовых контейнерах находятся газопошневые генераторные установки мощностью по 800 кВт каждая остальные контейнеры предназначены для системы подготовки газа. Шкаф управления содержит модуль управления, который имеет функции ручного и автоматическ
Оглавление

Газопоршневая электростанция на попутном нефтяном газе суммарной мощностью 1600 кВт.

Основным преимуществом данной электростанция является возможность работы на попутном нефтяном газе. Этот проект полностью учитывает характеристики нефтяных и газовых месторождений. Использование попутного нефтяного газа для выработки электроэнергии на месте означает, что попутный газ преобразуется в электричество, а выбросы углерода сокращаются, тем самым снижая вред для окружающей среды.

Газопоршневая электростанция суммарной мощностью 1600 кВт состоим из двух генераторных установок по 800 кВт каждая, работающих в параллель, и системы подготовки попутного нефтяного газа.

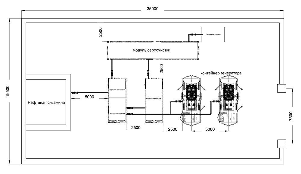
Комплект состоит из четырёх 20 футовых морских контейнера и одного 40 футового.

В двух 20 футовых контейнерах находятся газопошневые генераторные установки мощностью по 800 кВт каждая остальные контейнеры предназначены для системы подготовки газа.

Шкаф управления содержит модуль управления, который имеет функции ручного и автоматического управления и функцию автоматического параллельного подключения, расположен на боковой стенке контейнера устройства. Имеется рабочее окно расположенное снаружи контейнера для удобства эксплуатации.

Шкаф централизованного мониторинга имеет обратную связь с модулем управления агрегатом, контролирует всю электростанцию (включая автоматическую работу блоков обработки газа, сигнализацию утечки газа, автоматическое управление агрегатом, дистанционную передачу рабочих параметров электростанции и дистанционное управление электростанцией) и размещается в контейнере агрегата.

Устройство для обработки газа включает в себя функции отделения воды от жидких углеводородов, фильтрации твердых примесей, определения влажности, десульфурации и тонкой фильтрации газ, размещается в стандартном контейнерном поддоне. В соответствии с потребностями клиента может быть сконструирован подходящий резервуар для сбора серных отходов, чтобы завершить сбор сульфида, снижая частоту посещения персонала на площадке.

-2

Условия эксплуатации электростанции

Рабочая среда оборудования:

  • Долгосрочная эксплуатация на открытом воздухе
  • Ресурс до капитального ремонта 40000 моточасов
  • Высота над уровнем моря ≤ 2000м
  • Уровень сейсмической защиты 7
  • Расчет базового сейсмического ускорения 0.10g
  • Диапазон относительной влажности 30%~90%
  • Диапазон температуры окружающей среды -35~40℃
  • Максимальная скорость ветра ≤30m/s
  • Доступные уровни напряжения AC380V(50Hz)DC24V

Общие требования электростанции к источнику газа

  • Поток попутного нефтяного газа на месторождении: 500~700Nm3/h;
  • Давление на выходе из попутного нефтяного месторождения: ≤0.2MPa;
  • температура на выходе из попутного нефтяного месторождения: ≤60℃;
  • Содержание сероводорода: ≤10g/Nm3;
  • Попутный газ может содержать небольшое количество жидкой воды и легкого масла с соотношением жидкости к массе: ≤10%

Состав блока газовая электростанция

Газовая электростанция: двигатель, Трехфазный бесщеточный синхронный генератор переменного тока, шкаф управления, рама и т.д. Маховик двигателя соединен с приводной частью генератора через стальную муфту. Двигатель и генератор установлены на общей раме через амортизаторы. Установки блока оснащены газовым двигателем Baudouin 12M33 и альтернатором трехфазным, бесщеточным синхронным генератором переменного тока Leroy Somer. Газовый двигатель использует увеличенный масляный поддон для увеличения интервала замены масла, который может достигать 2000 часов.

Система топливная: двигатель газовой линейки, включающий в себя газовый фильтр, редукционный клапан, газовый электрический запорный клапан и другие компоненты.

Группа газовых клапанов установлена на общей раме, установлен цифровой манометр за клапанным блоком (с функцией вывода сигнала), установлен сливной клапан в самом нижнем положении трубопровода группы клапанов.

Дно контейнера снабжено рельсом и устройством фиксации, для возможности перемещения ГПУ к выходу контейнера. Когда ГПУ достигает предназначенного местоположения, используется фиксирующее устройство, чтобы надежно закрепить его в контейнере.

Технические характеристика ГПУ

  • Модель - WPG1100C7NG
  • ДВС -12M33D900E310NG Baudouin
  • Альтернатор - LSA49.3L10 Leroy Somer
  • Номинальная мощность, кВт - 800
  • Напряжение, В - 400
  • Коэффициент, COSΦ - 0.8
  • Частота, Гц - 50
  • Форма соединение - Стальная муфта
  • Габариты, мм(Д×Ш×В)- 7348.26×2438×4417.5
  • Масса (сухой вес), т - 7.4т

Показатель свойства:

  • Скорость регулировки напряжения в установившемся режиме≤±5%
  • Скорость регулирования переходного напряжения+20%~-15%
  • Стабильная частота регулировки частоты≤±2%
  • Скорость регулировки частоты переходного процесса:+10%~ -7%
  • Радиоволна не верная ≤5%
  • изменение нагрузки100%→0%→34%→67%→100%
-3

Cистема управления

Микропроцессорный контроллер, расположенный в шкафу управления, и система управления агрегатом. Могут быть выбраны режимы ручной / автоматический для запуска и остановки агрегата.

Функция защиты :

  1. Функция работы: запуск / остановка, выключатель питания, аварийная остановка
  2. Параметры дисплея: напряжение, ток, частота, кВА, кВт, кВАр, кВтч, кВАч, кВАч, коэффициент мощности PF, скорость вращения, давление масла, температура охлаждающей жидкости, время работы блока, напряжение аккумулятора и т. Д.
  3. Функция защиты

Защита от короткого замыкания: автоматический выключатель устройства имеет функцию защиты от короткого замыкания. Когда короткое замыкание происходит на конце выходного кабеля устройства, защитные меры могут действовать быстро и надежно, не повреждая электрические элементы электростанции. Защита от короткого замыкания включает однофазные, двухфазные и трехфазные короткие замыкания.

Превышение скорости: когда скорость агрегата превышает 110% от номинальной скорости, подается аварийный сигнал, а когда он превышает 115% от номинальной скорости, подаётся сигнал останова.

Пониженная скорость: когда скорость устройства ниже 80%, подаётся аварийный сигнал одновременно с сигналом останова.

Низкое давление масла: когда давление газа в газовом двигателе ниже 0,25 МПа, он выдаст сигнал тревоги, если ниже 0,2 МПа, выдаётся сигнал тревоги и останова.

Перенапряжение: когда напряжение устройства превышает 120% от номинального напряжения, выдаётся сигнал тревоги и останова.

Пониженное напряжение: когда напряжение устройства ниже 80% от номинального напряжения, выдаётся сигнал тревоги и останова.

Перегрузка по току: когда ток устройства превышает 115% от номинального тока, выдаётся сигнал тревоги и останова.

Перегрузка: когда мощность устройства превышает 115% от номинальной мощности, выдаётся сигнал тревоги и останова.

Превышение частоты: когда частота устройства превышает 110% от номинальной, устройство подаст сигнал тревоги и отключится.

Недостаточная частота: когда частота устройства ниже 94% от номинальной частоты, устройство подаст сигнал тревоги и отключится.

Когда устройство не в фазе, устройство выдаст сигнал тревоги и останова.

Низкое напряжение батареи: когда напряжение батареи ниже 19 В, устройство подаст сигнал тревоги.

Три сбоя запуска: когда устройство находится в автоматическом состоянии, если три последовательных сбоя запуска, устройство выдаст сигнал аварии.

  1. Переменная функция зарядки: внутри шкафа управления установлено зарядное устройство для аккумуляторной батареи, чтобы гарантировать, зарядку АКБ устройства от внешнего источника питания в режиме ожидания.
  2. Интерфейсы работы имеются на китайском и английском языках.

Система подготовки попутного газа

Нефтяной попутный газ содержит свободную воду, твердые частицы, легкую нефть, сероводород и другие вещества, которые влияют на нормальную работу газовых двигателей. Поэтому, прежде чем войти в газовый двигатель внутреннего сгорания, эти вредные вещества должны быть предварительно обработаны, чтобы соответствовать требованиям впуска газового двигателя внутреннего сгорания. Оборудование для очистки попутного нефтяного газа включает в себя модуль осушки газа, модуль обессеривания газа, модуль очистки газа. Для облегчения транспортировки и установки, оборудование для очистки газа встроено в стандартные контейнеры на полозьях. Блок система обработки газа размещена в двух 20-футовых и одном 40-футовом контейнерах.

-4

Параметры системы обработки газа:

  • объема очистки попутного газа600Nm3/h;
  • давление газа входа0.2MPa;
  • давление разработки0.3MPa;
  • температура входа газа≤60℃;

Конструктивные параметры оборудования тонкой фильтрации

  • объема очистки попутного газа: 600Nm3/h;
  • давление газа у входа: 0.03MPa;
  • давление газа выхода: 0.01MPa;
  • давление разработки: 0.3MPa;
  • температура входа газа: ≤40℃;
  • точность разделения фильтра тонкой очистки: 5μm,
  • эффективность разделения>99%;
  • содержание масла и воды на выходе газа ≤ 20ppm,
  • падение давление ≤5 kPa,
  • содержание пыли<5mg/m3。

Технические параметры оборудование сероочистки

  • объемы очистки попутного газа: не меньше 600Nm3/h;
  • давление на входе газа: 0.2MPa~0.25MPa;
  • проектное давление: 0.3MPa;
  • температура газа на входе ≤40℃;
  • эффективность сероочистки ≥ 99%;

Источник: https://dgufregat.ru/about/our-projects/2309/

ООО "Торговый дом Фрегат"
ООО "Торговый дом Фрегат"