Найти в Дзене

НД71: Готовый дом 71м2 за 2,4 млн и 45 дней!💥

Продолжаем знакомить вас с нашими проектами, над производством которых наша команда трудится каждый день. На очередь второй по популярности среди наших заказчиков проект "НД71". НД71 поистине продуманный проект, с огромным множеством возможных планировок. Мы - команда PazlDom - занимаемся строительством модульных домов в Санкт-Петербурге, Ленинградской области и Карелии. НД71 - функциональный большой дом с просторной террасой 21м2🏡 Модульный дом НД71 идеально подойдет для проживания большой семьи на протяжении всего года. Обустроенный дом, с достаточным количеством спален, санузлом, сауной и кухней-гостиной: лучший вариант для тех, кто хочет жить в окружении природы. У дома квадратная застройка, поэтому он технически удобен в эксплуатации. У вас точно не возникнет проблем с расстановкой всего необходимого. К большим достоинствам дома также стоит отнести большое количество окон и второй свет. Сквозь распашные стеклянные двери на террасе и окна дома, сидя у камина, будет очень прия
Оглавление

Продолжаем знакомить вас с нашими проектами, над производством которых наша команда трудится каждый день.

На очередь второй по популярности среди наших заказчиков проект "НД71". НД71 поистине продуманный проект, с огромным множеством возможных планировок.

Мы - команда PazlDom - занимаемся строительством модульных домов в Санкт-Петербурге, Ленинградской области и Карелии.

НД71 - функциональный большой дом с просторной террасой 21м2🏡

Модульный дом НД71 идеально подойдет для проживания большой семьи на протяжении всего года. Обустроенный дом, с достаточным количеством спален, санузлом, сауной и кухней-гостиной: лучший вариант для тех, кто хочет жить в окружении природы.

У дома квадратная застройка, поэтому он технически удобен в эксплуатации. У вас точно не возникнет проблем с расстановкой всего необходимого.

К большим достоинствам дома также стоит отнести большое количество окон и второй свет. Сквозь распашные стеклянные двери на террасе и окна дома, сидя у камина, будет очень приятно наблюдать за бушующей вьюгой зимой, проливным дождем осенью и расцветающими растения весной, а летом наслаждаться красотой таких привычных белых ночей.

Наличие второго света визуально расширяет пространство, наполняет его воздухом и дом кажется ещё больше.

НД71:Планировочное решение

Наши проектировщики постоянно работают над улучшением проектов, чтобы любой желающий смог найти для себя подходящую планировку, отвечающую всем требованиям и желаниям.

На данный момент НД71 представлено в 3-х планировочных решениях.

Вариант 1: 3 спальни и просторная кухня-гостиная

-2

Благодаря своей функциональности этот вариант является одним из самых популярных на данный момент планировочных решений.

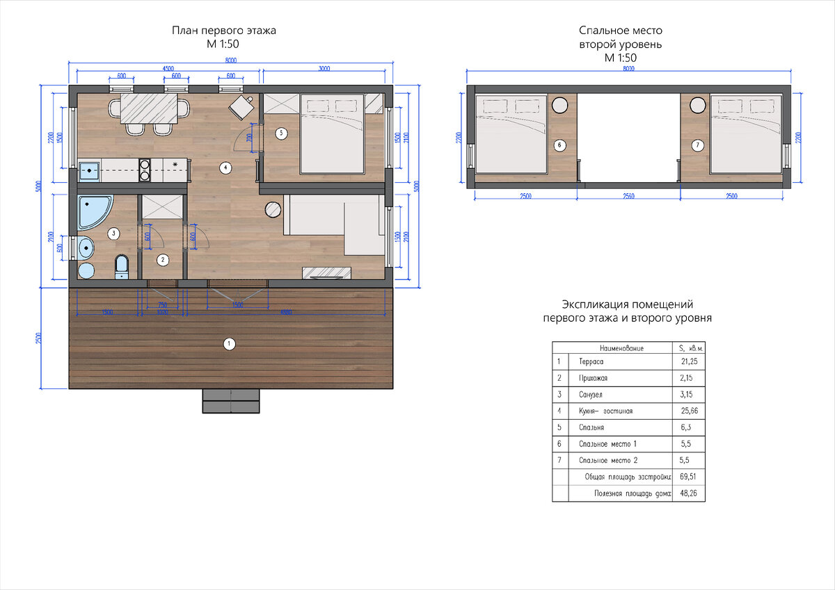
На первой этаже расположена кухня-гостиная 25м2 необычной формы, небольшая прихожая, в которой можно разместить системы хранения, санузел с душевой кабиной и изолированная спальня с панорамным окном.

Также в гостиной расположен выход на большую террасу.

На лофт-этаже расположены 2 спальных места. Лофт-этаж - это то место в доме, которое дети любят особой любовью. Оба спальных места ограждены лофт-перегородками, которые красятся в цвет стен, поэтому можно не переживать по вопросу безопасности.

Вариант 2: 3 спальни, просторная кухня-гостиная и сауна

-3

Это планировочное решение почти полностью повторяет предыдущее: 1 спальня на первой этаже, просторная кухня-гостиная и санузел, 2 спальных места на лофт-этаже.

Единственное отличие - это наличие сауны. Многие заказчики приходят к нам с твердым решением иметь в своем загородной доме сауну как в скандинавских странах. Так и появилось данное планировочное решение.

Мы всегда прислушиваемся к мнению клиентов и заказчиков, выделяем для себя стоящие идеи и начинаем работать над их реализацией.

Вариант 3: 4 спальни и кухня-гостиная

-4

Этот вариант планировочного решения был разработан не так давно, но уже закрепился как постоянный и набирает свою популярность.

Идеальный вариант для большой семьи - у каждого будет свое укромное место.

На первом этаже расположились 2 изолированные спальни, кухня-гостиная 20м2, прихожая и санузел.

Лофт-этаж остался без изменение: 2 отдельных спальных места с ограждением из лофт-перегородок.

Кстати, вторую комнату на 1 этаже можно использовать не только как спальню, есть множество других вариантов. Для тех, кто работает из дома, там можно устроить кабинет. Для семьи с детьми - игровую комнату с отдельной рабочей зоной для учебы. Для любителей шоппинга - гардеробную с продуманной системой хранения.

Как вы можете понять, среди наших проектов каждый точно найдет подходящую для себя компоновку помещений.

Терраса

В любом планировочном решении площадь террасы не меняется - 21,5м2.

-5

Терраса - это не только красивое украшение, но ещё и очень функциональное часть дома.

Терраса - это прекрасная возможность больше времени проводить на свежем воздухе, устраивать веселые посиделки с друзьями или тихие семейные вечера.

Наши клиенты всегда заботятся о том, чтобы терраса была используемой часть дома, поэтому устанавливают навес и в 90% случаев - ограждения.

Если установить мягкие окна, то террасу можно будет использовать в любую погоду. Мягкие окна прекрасно защищают открытые помещения от дождя, снега и ветра. При этом в хорошую погоду их можно без особого усилия можно убрать, просто свернув в рулон.

Окна

Мы знаем, как важно использовать при производстве и отделке качественные материалы. Поскольку в доме действительно большой количество окон, то мы отдаем предпочтение окнам и остекленным дверям в зимнем исполнении: двухкамерные стеклопакеты с 5-ти камерными профилям с умным напылением. При таких стеклопакетам можно будет забыть о зимнем холоде, а летом можно будет с легкостью впустить в дом свежий воздух.

Для каких целей подойдет дом?

В зависимости от выбранного планировочного решения в доме могут разместиться от 8 до 10 человек.

НД71 идеально подойдет для:

  • Основного круглогодичного дома
  • Для дачи
  • Для временного дома на время постройки основного
  • Для базы отдыха
  • Гостевого дома под сдачу

Варианты комплектаций

-6

НД71 по праву заслужил любовь наших заказчиков: просторный, современный и функциональный дом с большой террасой придется по душе любому, кто его увидит👀

Большой плюс модульных домов - это фиксированная стоимость. Например, НД71 в комплектации всё включено обойдется в 2,4 млн рублей, а срок его изготовления составляет всего 45 дней.

Хотели бы пожить в таком? Какой вариант планировочного решения вам понравился больше всего?👇

#модульный дом #дом из бруса под ключ #быстровозводимые дома #строительство дома