Добавить в корзинуПозвонить
Найти в Дзене
DIVAN.RU

Нескучная квартира в скандинавском стиле: яркий микс цветов и эмоций

Скандинавский стиль многие называют холодным, безликим и даже старомодным — ведь в моде цвет, а его часто избегают при создании сканди-интерьеров. Дизайнер Анастасия Заркуа @zarkua_design не любит стандартное исполнение скандинавского стиля в сине-серых оттенках. Ей по душе сложная колористика и яркие детали. Анастасия вышла за рамки привычных декоративных решений и подружила насыщенные цвета в одном интерьере. Место: г. Санкт-Петербург Тип недвижимости: квартира в новостройке Площадь: 91,6 кв. м Количество комнат: две комнаты и кухня-гостиная Высота потолка: 2,8 м Стиль: скандинавский Кто здесь живет: молодая семейная пара Дизайнер: Анастасия Заркуа @zarkua_design Стилист: Наталья Орешкова Фотограф: Татьяна Никитина На фото диван Льери от 69 990 Р* >> Удобная планировка Планировка от застройщика была достаточно комфортной, поэтому серьезных изменений вносить не пришлось. На площади 91,6 кв. м предусмотрены две спальни, просторная кухня-гостиная, два санузла и место для гардеробной в п
Оглавление

Скандинавский стиль многие называют холодным, безликим и даже старомодным — ведь в моде цвет, а его часто избегают при создании сканди-интерьеров. Дизайнер Анастасия Заркуа @zarkua_design не любит стандартное исполнение скандинавского стиля в сине-серых оттенках. Ей по душе сложная колористика и яркие детали. Анастасия вышла за рамки привычных декоративных решений и подружила насыщенные цвета в одном интерьере.

Место: г. Санкт-Петербург

Тип недвижимости: квартира в новостройке

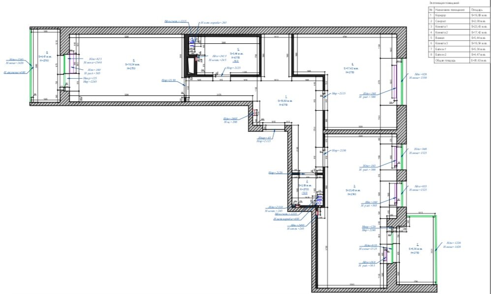
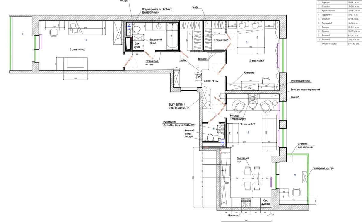
Площадь: 91,6 кв. м

Количество комнат: две комнаты и кухня-гостиная

Высота потолка: 2,8 м

Стиль: скандинавский

Кто здесь живет: молодая семейная пара

Дизайнер: Анастасия Заркуа @zarkua_design

Стилист: Наталья Орешкова

Фотограф: Татьяна Никитина

Проект Анастасии Заркуа. Фотограф: Татьяна Никитина
Проект Анастасии Заркуа. Фотограф: Татьяна Никитина

На фото диван Льери от 69 990 Р* >>

Удобная планировка

Планировка от застройщика была достаточно комфортной, поэтому серьезных изменений вносить не пришлось. На площади 91,6 кв. м предусмотрены две спальни, просторная кухня-гостиная, два санузла и место для гардеробной в прихожей. Обстановку дополнили только второй гардеробной, которую расположили в спальне. Одну из комнат решили оставить под детскую.

Нестандартные сочетания

— Основной задачей проекта было создать яркий интерьер в нетипичной для скандинавского стиля цветовой гамме, — рассказывает дизайнер. — Заказчики хотели, чтобы цвета поднимали настроение, при этом не раздражали и не надоедали со временем.

Дизайнер Анастасия Заркуа. Фотограф: Татьяна Никитина
Дизайнер Анастасия Заркуа. Фотограф: Татьяна Никитина

У меня большой опыт создания интерьеров в похожей стилистике, поэтому сложностей не возникло. В жилых комнатах спокойные оттенки дополнены акцентами сочных природных тонов. Для оформления проходных зон использовались более насыщенные цвета.

-4

Декоративные элементы в интерьер подбирали не слишком броские, чтобы не отвлекать внимание от ярких стен. Обстановку смягчает большое количество комнатных растений.

Прихожая с WOW-эффектом

Большая часть стен в прихожей выкрашена в нейтральных тонах. Входная зона выделена краской насыщенного изумрудного оттенка. Такой прием поднимает настроение каждому входящему в квартиру и не надоедает со временем, так как в прихожей человек не проводит много времени.

-5

На пол уложили керамогранит под дерево от Italon. Такое же покрытие использовали в кухне-гостиной и в одном из санузлов.

-6

В прихожей находится вход в небольшую гардеробную, где хранятся сезонные вещи и хозяйственные принадлежности. Дверцы встроенного шкафа от ИКЕА выкрашены в цвет стен. Освещение представлено встроенными точечными светильниками.

-7

Яркая мебель в кухне-гостиной

Площадь кухни-гостиной — 23,4 кв. м. Нейтральные стены выступают фоном для яркой мебели — кухонного гарнитура и дивана Льери от Диван.ру. В насыщенный зеленый цвет выкрашена только стена напротив кухни.

Смотреть прямые диваны в каталоге Диван.ру >>

Владельцы квартиры любят готовить, поэтому одной из задач проекта было обустройство просторной рабочей зоны.

-9

Кухонный гарнитур приобрели в ИКЕА и установили в заранее выстроенную нишу. Дверцы верхних шкафов из дерева выполнены на заказ. Фартук оформили мелкоформатной керамической плиткой с необычной раскладкой.

-10

В проекте использовали винтажные предметы мебели. В кухне-гостиной это отреставрированные стулья фабрики Лигна в обеденной зоне и советская ТВ-тумба. Подвесной светильник над обеденной зоной добавляет уюта.

✨Читайте также:✨

На окна повесили лаконичные римские шторы серого цвета с ярко-желтой окантовкой. В подборе штор для гостиной и спальни помогала дизайнер по текстилю Ирина Русакова.

На прилегающей к кухне 5-метровой лоджии на пол уложили кварцвинил и обустроили рабочее место.

-13

Спальня в спокойных тонах

Спальня оформлена в серо-голубых тонах. На полу — инженерная доска Finex. Здесь решили отказаться от точечных светильников. Вместо них повесили плоский потолочный светильник в центре комнаты и бра с обеих сторон от изголовья кровати.

Кровать и туалетный столик приобрели в La Redoute, прикроватные тумбы — производства СССР, после реставрации.

Бодрящие цвета в санузлах

— Если вы боитесь цвета, посмотрите на эту прекрасную ванную, — продолжает дизайнер. — Желтая плитка на стенах помогает проснуться и дает заряд бодрости на целый день! Мы не проводим весь день в ванной, поэтому здесь можно позволить себе смелые эксперименты. В спальне или гостиной ярко-желтые стены воспринимались бы гораздо тяжелее.

Напольная серо-белая плитка с геометрическим узором приглушает насыщенный оттенок стен. Над стиральной и сушильной машинами обустроили место для хранения.

В гостевом санузле плитку-терраццо скомбинировали с краской терракотового оттенка. Краску подбирали к одному из цветов на плитке. Над унитазом обустроили место для хранения, рядом установили небольшую раковину и повесили зеркало.

-18

Переходи по ссылке, подписывайся на онлайн-журнал «Идеи и тренды» и первым узнавай об особенностях стильного ремонта, трендах в дизайне и экспертных лайфхаках! Дополнительно тебя ждет приятный подарок — 1000 бонусов на покупки. Добро пожаловать в Divan.Club! >>

*Цены актуальны на момент публикации статьи