Найти в Дзене

Лофт по-Вьетнамски, куда деть многочисленные домашние растения и книги

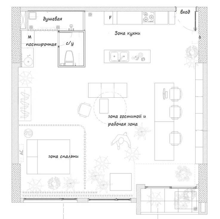
Место: Хошимин (Вьетнам) Метраж: 75 м² Архитектурное бюро / архитектор: Nhabe Scholae Год: 2018 Фото: Hyroyuki Oki Любовь к стилю лофт в дизайне не ослабевает, благодаря открытости пространства, возможности разнообразия материалов, кажущейся небрежности в отделке, покрытиях и деталях интерьера. Второй аспект данного дизайна - минимализм. Здесь нет кладовых, шкафов, зон хранения. Домашняя библиотека и мини ботанический сад по-видимому главные страсти жильца. Пол из эпоксидной смолы выглядит эффектно, особенно в современных интерьерах. Кроме того, современные эпоксидные полы устойчивы к повреждениям и легко моются. До недавнего времени такие полы использовались только в промышленных интерьерах. В настоящее время благодаря своим многочисленным преимуществам, в том числе высокой прочности, устойчивости к интенсивному использованию, воздействию химических веществ и богатой декоративности, эпоксидные полы находят применение в домах и квартирах. Точечное освещение пущено по необработанному по

Место: Хошимин (Вьетнам)

Метраж: 75 м²

Архитектурное бюро / архитектор: Nhabe Scholae

Год: 2018

Фото: Hyroyuki Oki

Любовь к стилю лофт в дизайне не ослабевает, благодаря открытости пространства, возможности разнообразия материалов, кажущейся небрежности в отделке, покрытиях и деталях интерьера.

Второй аспект данного дизайна - минимализм. Здесь нет кладовых, шкафов, зон хранения. Домашняя библиотека и мини ботанический сад по-видимому главные страсти жильца.

Пол из эпоксидной смолы выглядит эффектно, особенно в современных интерьерах. Кроме того, современные эпоксидные полы устойчивы к повреждениям и легко моются. До недавнего времени такие полы использовались только в промышленных интерьерах. В настоящее время благодаря своим многочисленным преимуществам, в том числе высокой прочности, устойчивости к интенсивному использованию, воздействию химических веществ и богатой декоративности, эпоксидные полы находят применение в домах и квартирах.

Точечное освещение пущено по необработанному потолку. Металлические и пластиковые трубы одновременно выполняют технические функции и являются неотъемлемыми елементами декора.

Стены выкрашены в белый, плинтусы отсутствуют. Притягивать пыль в данном интерьере должна только библиотека)

Жильцу как видим не требуется дополнительного уединения в виде отдельной спальни или её ограждении.

Чем еще примечателен лофт или лофт-минимализм, так это возможностью вписывать предметы интерьера из разных материалов, стилей, эпох. Простой фон или основа примут и ковры и плетенки, мебель из дерева и металла, предметы из пластика и керамики.

Практически открытая зона душевой, да и чего волноваться про влажность живя во Вьетнаме полностью расположенном в тропиках. Для этой страны характерно большое количество осадков и высокая влажность.

Зона кухни к сожалению в фото совсем не представлена, можно собрать по отдельным фото некоторые особенности, кухня из нержавейки, остров, без навесных шкафов и без фартука.

А что-бы Вы посадили в своем мини полисаднике?