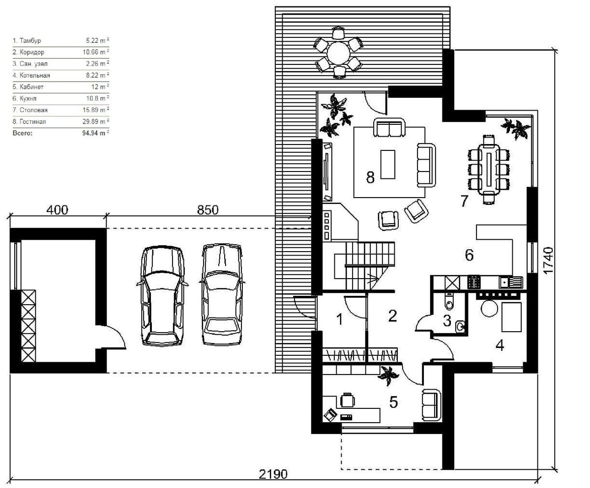
Добрый день! Представляем вашему вниманию проект дома 123-189 «Hi-Tech Cube», архитектурный стиль Хай-Тек. Дом общей площадью - 208 м2, жилой площадью – 97 м2, размеры дома - 22 х 17 м2. Спален - 3, Дом с гаражом, террасой и балконом. Дом привлекает просторными панорамными окнами, пропускающими множество солнечного света внутрь дома, четкими ровными линиями, минималистичным экстерьером и возможностью комбинировать в отделке практически любые комбинации материалов. Именно этот дом спроектирован в два этажа, обустроен собственной террасой, закрытыми парковочными местами сразу для двух личных автомобилей. Подсобное помещение отделено от основной части дома. Между собой они связаны навесом, под которым предусмотрены два парковочных места. Планировочные решения проекта 123-189 Рассмотрим планировку дома. Личный автомобиль Вы можете оставить под крышей на одном из двух парковочных мест. В левой части находится дополнительное хозяйственное помещение для хранения различных необходимых вещей.
Комфортный современный дом в стиле Хай-Тек 208 м2. Проект дома с парковкой, террасой и балконом
27 июля 202227 июл 2022
302
3 мин
