Добавить в корзинуПозвонить
Найти в Дзене
Zikkurat

"Бушаринские хроники" или как я строил дом

Домов - как у зайца холмов. Дом построить - не шапку на голову надеть. Первый дом сожги, второй – продай, а в третьем живи. Здравствуйте уважаемые читатели! Каждые 9 лет в нашей семье очередное прибавление. И это стало уже традицией. Ведь дом – это тот же ребенок, которого мало родить, а надо выпестовать и вырастить. Первый дом в нашей семье появился практически после свадьбы, это та самая «Обитель Ангелов», которая и по сей день служит уютным гнездышком для моих родителей. Тема её строительства расположена тут. Дом на протяжении практически 20 лет показал себя с лучшей стороны, а интерьеры не потеряли своей актуальности и привлекательности. Тем более, мама вырастила удивительный сад, так что все наши гости, входя на ее участок, не скрывают своих эмоций). В 2009 году мы все-таки решили обзавестись собственным загородным жильем, исходя из опыта эксплуатации первого дома, а также собственного видения семейного очага и личных пожеланий. Тем более, подрастал первый сын, и так хоте

Домов - как у зайца холмов.

Дом построить - не шапку на голову надеть.

Первый дом сожги, второй – продай, а в третьем живи.

Здравствуйте уважаемые читатели!

Каждые 9 лет в нашей семье очередное прибавление. И это стало уже традицией. Ведь дом – это тот же ребенок, которого мало родить, а надо выпестовать и вырастить.

Первый дом в нашей семье появился практически после свадьбы, это та самая «Обитель Ангелов», которая и по сей день служит уютным гнездышком для моих родителей. Тема её строительства расположена тут. Дом на протяжении практически 20 лет показал себя с лучшей стороны, а интерьеры не потеряли своей актуальности и привлекательности. Тем более, мама вырастила удивительный сад, так что все наши гости, входя на ее участок, не скрывают своих эмоций).

В 2009 году мы все-таки решили обзавестись собственным загородным жильем, исходя из опыта эксплуатации первого дома, а также собственного видения семейного очага и личных пожеланий. Тем более, подрастал первый сын, и так хотелось проводить с ним больше времени не в загазованной Москве, а на нашем собственном, чудесном, пусть и небольшом участке с соснами. Так появился наш первый собственный дом ручной рубки – «Терем –Теремок». Кому интересно, ссылка на тему о его строительстве находится тут.

Прожив в доме 9 лет, при первой малейшей возможности срываясь из Москвы, мы поняли, что чудесный домик оказался попросту маловат для потребностей нашей «разбогатевшей» еще на одного ребенка семьи. Сидя как-то за чашкой чая, мечтая – а вот было бы неплохо, если бы…. Решили на семейном совете продать деревянный дом и построить новый, но уже без компромиссов.

Тем более наши задумки и идеи относительно нового жилья я постарался воплотить (обкатать) в проекте для одного из заказчиков, который решил строиться из клееного бруса.

Обжив как следует деревянный дом, прочувствовав как его достоинства так и недостатки, я приступил к проектированию современного эргономичного и стильного дома из газоблока, который призван стать наконец-то тем самым –самым уютным и теплым и комфортным для нашей семьи.

Продав деревянный дом, в 2018 году на вершине холма, откуда открывается вид на речку и лес, мы заложили фундамент нашего третьего дома:-)

Хочу немного рассказать о проекте, его особенностях, почему он родился именно таким:-) Все дома, построенные до него, были хороши, но в каждом из них были свои небольшие недостатки, от которых хотелось бы избавиться. «Обитель» - отличный дом, но повторять ее, сами понимаете, нет смысла. Деревянный, со временем оказался для нас тесен. Хотелось создать что-то совершенно новое, удобное по планировке, теплое и не дорогое в строительстве.

Итак, финансы в данной затее играют далеко не последнюю роль, нам нужно было вписаться в бюджет от продажи предыдущего дома. Поэтому, при проектировании, я решил добиться максимальной оптимизации всех конструктивных решений. В целом, это удалось , но чувствую, как всегда, камней в мою сторону будет брошено не мало:-) Ну и пусть.

Фундамент: бетон и арматура нынче дороги! Поэтому, принял решение не уходить на глубину промерзания, делать ленту мелкозаглубленной с последующим внешним утеплением самой ленты и отмостки вокруг дома. Никаких плит, УШП не рассматривал, поскольку участок рельефный + мне хотелось максимально упростить доступ ко всем коммуникациям. Иметь возможность добраться из подполья ко всей разводке.

Перекрытия – готовые плиты перекрытий. Быстро и относительно не дорого.

Стены – однослойные, из газобетона толщиной 500мм. с последующей внешней штукатуркой. Это тепло, сухо, надежно и тоже относительно не дорого.

Кровля – двускатная, с утеплением 200мм., покрытая металлочерепицей. С «мягкой» наигрался, при всех ее достоинствах, она ужасно «мусорная». Собирает на себя все, что только можно, листву, хвою, порастает мхом. Хоть и лежит хорошо, но требует много заботы. Да, на открытом пространстве она ведет себя замечательно, но если рядом есть деревья – беда.

По планировке: начну со входа. Считаю, что в нашем климате, просто необходима просторная входная веранда. Когда приезжаешь с вещами, тащишь сумки из машины, хорошо, когда есть место, куда все это можно оперативно сложить перед заносом в дом. На веранде есть возможность поставить обувной шкаф, спрятать от дождя велосипеды или т.п.

Прихожая – очень важное место! Зачастую, проектировщики уделяют ей мало внимания, а зря! Я сам прочувствовал это и в «Обители» и в деревянном доме. Когда приходит много народу, им попросту некуда деваться. Люди толпятся на ограниченном пространстве, входная дверь открыта, а зимой тепло, ой-ой как быстро улетучивается. Поэтому, в новом доме выделил под нее хорошую площадь. Так же, прихожая совмещает в себе функцию гардеробной, огромный «П» образный встроенный шкаф, в который можно повесить уйму вещей.

Котельная: находится рядом с прихожей. Изначально, я заложил в нее все необходимое для последующей газификации. Площадь, кубатура, вентиляция, окна, двери, все соответствует нормативам. Газа нет, маячит в далекой перспективе, но пока приходится обходиться другими источниками энергии. Сейчас использую 2 котла: электрический, работающий только ночью, по дешевому тарифу и твердотопливный (дровяной), для обогрева днем. Если будет интересно, потом поподробней расскажу об этой системе. Под газовый котел, тоже место есть. Так вот, учитывая, что я отапливаюсь дровами, решил сделать в топочную два входа – из дома и с улицы. С улицы заношу дрова (большая входная веранда позволяет хранить на ней запас на несколько дней), а из дома забегаю проконтролировать котел. В последующем, когда будет газ, поставлю замок на внутреннюю дверь. В отсутствие, можно ее запереть, оставив ключи от топочной соседу или коммунальным службам. Дальше этого помещения они попасть не смогут.

Идем дальше. Никаких длинных коридоров. Из того маленького, что есть, можно попасть в гостиную, спальню, санузел или на лестницу. Из важных особенностей: считаю крайней необходимостью наличие спальни на первом этаже. Её очень не хватало нам в деревянном доме. Важно, что бы спальня и шумная зона гостиной были разнесены между собой. Важно, что бы вход в санузел был не далеко от спальни и не «светился» из гостиной. Важно, что бы гостиная и кухня находились в связке между собой. Если их разделить и ощущение простора пропадет, и гостиная почти все время будет пустовать т.к. основная дневная жизнь протекает на кухне. Поэтому и кухня должна быть большой! Что и постарался заложить в проекте. Чего не хватало в предыдущих домах, так это кладовки при кухне. Тут она есть. В нее спрятались стиральная машина, полки для хранения запасов. Кстати, она оборудована собственной вентиляцией.

Из кухни можно выйти на просторную угловую веранду, площадью 42м2 с возможностью установки камина или барбекю.

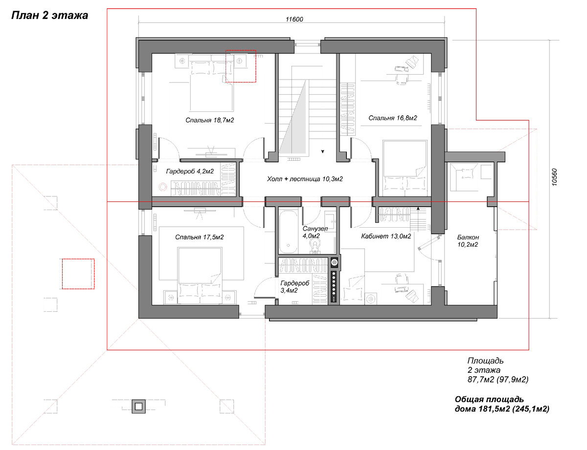
Идем на второй. Широкая лестница с оптимальной высотой ступеней. Часть подлестничного пространства будет использована под гардероб спальни. На втором этаже находятся 4 комнаты, у некоторых есть свои гардеробные. Есть общая кладовка. Потолки везде высокие, около 3-х метров. Панорамные окна, балкон, обалденный чердак.

Теперь чертежи:

-2
-3
-4

28.04.2018г. Дан старт строительству. Привезли и установили бытовку, разметили на участке оси будущего здания.

-5
-6
-7
-8
-9

01.05.2018г. Приступили к рытью траншеи под фундамент. Участок находится на холме, поэтому, проблем с УГВ нет, грунт плотный, сухой, что избавило от осыпания стенок и позволило соблюсти хорошую геометрию.

-10
-11
-12
-13
-14
-15
-16

Параллельно с рытьем траншеи, начал завозить основные материалы, необходимые для строительства.

-17
-18
-19
-20
-21

10.05.2018г. Все работы по рытью траншеи были закончены и строители приступили к вязке арматурного каркаса опорных "пяток" фундамента.

-22
-23
-24

10.05.2018г. Строители работали быстро, быстро подготовили фронт для заливки опорных "пяток" и дали мне команду заказывать бетон. И тут я совершил первую ошибку:-(Был не готов к таким срокам и начал судорожно искать растворный узел. По Яндекс картам нашел ближайший, созвонился и заказал миксер. Конечно, так делать нельзя, без проб и образцов, позвонить первым встречным. Ну и конечно же, был наказан. Звонок я совершал утром, диспетчер пообещал машину через пару часов, но ни через два часа, ни через пять, миксера не было. На все мои звонки отвечали разные люди с характерным акцентом и каждый раз обещали, что бетон будет вот-вот, нужно подождать буквально 30мин. В итоге, миксер прибыл около 10 вечера, в почти полной темноте, мы начали заливку. Уже потом, я понял, что именно на это, недобросовестные поставщики раствора и рассчитывают. После рабочего дня, в темноте, когда все уже вымотаны и хотят отдыхать, проверять качество привезенной смеси никто не будет, лишь бы побыстрей залить и отправиться на отдых. Так и случилось, раствор привезли ужасного качества, да и объем его был гораздо меньше заказанного. Все накладные и сертификаты поддельные с ложными адресами и телефонами. В общем, настоящие мошенники. На следующий день был понятен масштаб неприятностей. Залитые "пятки" начали шелушиться и трескаться, хорошо, что это вообще оказался бетон на не просто жидкий песок.
"Пятки" у меня только две, небольшие фрагменты под основным фундаментом, поэтому, ничего страшного не произошло, но больше, подобных ошибок я не совершал и готовился к заливке очень тщательно.

Видео 1
Видео 2

-25
-26
-27
-28

15.05 - 30.05.2018г. Дальше начался рутинный и долгий процесс подготовки к заливке основной ленты фундамента. Поскольку, погода в эти дни нам не очень благоприятствовала и пролилось много дождей, стенки траншеи частично начали обрушатся. Было принято решение ставить удерживающую опалубку до основания конструкций (изначально, я её не планировал, хотел возводить только выше отметки земли). По внешнему абрису траншеи был интегрирован утеплитель с заранее установленными "грибками", их ножки, после заливки, намертво схватятся бетоном и не позволят утеплителю отойти от ленты. Установили все необходимые продухи и закладные под коммуникации. На всем протяжении этого этапа, мне постоянно приходилось контролировать размерные привязки, стараться максимально точно соблюсти проектные решения.

-29
-30
-31
-32
-33
-34
-35
-36
-37

Материалы потихоньку прибывали и прибывали на участок, их объемы начали меня немного пугать!

-38
-39
-40

03.06.2018г. Наступил день "З", заливка ленты. Ответственный момент, к которому я тщательно подготовился. На этот раз, никакого "левого" бетона. Заранее съездил в Одинцово, посмотрел завод, сделал "кубики" для испытаний, лично познакомился с диспетчером. Вместе с ним, разработали график прихода машин, их количество и объем, заказал насос.

Ровно в 7.30 насос прибыл на участок и начал разворачивать свой хобот. Меня всегда впечатляет этот процесс, довольно захватывающее зрелище.

Видео 1.

На полную установку и тестирование ушло примерно 30 мин. В 8.00 пришел 1 миксер.

В общем, я думал, что этот день сделает мне настоящие нервы, заранее готовился к этому и захватил с собой пачку таблеток от стресса. На деле же, оказалось, что я просто стоял в стороне и смотрел, на механизм, работающий "как часы".

Видео 2.

Бетон шел, миксеры меняли друг дружку точно в срок, Опалубка идеально держала нагрузку.

Видео 3.

Даже стало как-то скучно.

Последняя машина ушла в 16.00, заполнив последние пустоты. Я был удивлен, объем идеально точный, ни больше, ни меньше, проблем с заливкой - никаких! Образцовый день, за исключением того, что мой кошелек значительно полегчал.

Напоследок, дети оставили свои имена в основании дома.

-41
-42
-43
-44
-45
-46
-47
-48
-49

08.06.2018г. Начали постепенно снимать опалубку. Все получилось, как задумано, бетон качественный, размерные привязки не нарушены.
Благодаря уклону участка, у меня появилась возможность под верандой разместить две здоровенные кладовки с возможностью ходить в полный рост. Общая площадь их составила 32,4м2, чему был несказанно рад!
Для их организации, попросил строителей удалить часть грунта в этих местах.

-50
-51
-52
-53
-54

16.06.2018г. После, тщательно подровняли верхнюю плоскость ленты и приклеили слой гидроизоляции. Я сделал разметку укладки плит перекрытий. Плиты должны были прийти со дня на день, а время ожидания использовали для расчистки участка и уборки мусора.

-55
-56
-57
-58
-59
-60

18.06.2018г. Еще один "напряжённый" день "У". Прибыли плиты, кран и начался процесс укладки. Уже по опыту дня "З", я знал, что все пройдет отлично, тем более, был к нему хорошо подготовлен. Так и вышло, на раствор, быстро разложили плиты и смахнув пот с лица, отправились отдыхать.
Видео 1
Видео 2

-61
-62
-63
-64
-65
-66
-67

23.06.2018г. Вот такая забавная ситуация: разница в возрасте моих мальчишек - 9 лет, 9 лет и разница в строительстве домов. И тому и другому, посчастливилось покатать в 5-летнем возрасте одну и ту же машинку по свеже-выполненному фундаменту. Теперь, эта машина - наш счастливый талисман, бережно храним ее, кто знает, что будет через следующие 9 лет.

-68
-69
-70
-71

23.06.2018г. Торцы плит были утеплены и началась выкладка основания под ограждающие стены.

-72
-73

Небольшое отступление от строительства.
Наш поселок совершенно новый. Прежде, место где он находится, служило колхозным полем, после развала Союза, поле было заброшено и долгие годы стояло не возделанное.
Места тут очень красивые, аккуратные холмы перемежаются с густым лесом, активный рельеф создает уникальные ландшафтные картины. Вся эта красота "нанизана" на извивающуюся ленту Москва-реки. Зачастую, места эти называют "Подмосковной Швейцарией".
В 2004г., на вершине одного из холмов, был поставлен изящный, небольшой деревянный храм. Возвел его местный чиновник, по обещанию Богу в честь чудесного спасения сына после автокатастрофы. Храм изумительно вписался в окружающий рельеф, полюбился местным жителям и стал украшением долины.
Наш старый участок находился не далеко от этого храма, и каждый раз, проезжая на дачу, я с удовольствием наблюдал его по дороге. Мы частенько ходили к нему, посещали на праздники, крестили в нем нашего второго ребенка.
И вот однажды, проезжая на дачу, я увидел табличку о продаже земли на холме возле храма. Сказать о том, что я был расстроен, это не сказать ничего. Было понятно, что храм затеряется среди новых домов, уникальный вид будет безвозвратно потерян:-(
Погоревав, решили, ну кто, если не мы... Как раз, в этот момент у нас уже сформировалась идея строительства нового дома. Не долго думая, связались с риелтором и одни из первых, приобрели участок в образующемся поселке. И участок выбрали, прямо рядом с храмом и стали его счастливыми соседями.

-74
-75
-76
-77
-78
-79
-80
-81

Между приобретением участка и началом строительства, прошло несколько лет. Пока формировалась концепция нового дома, выполнялся проект, участок стоял пустым.
Когда документация была готова и мы морально созрели для начала строительства, в один из дней, приехав со строителями на участок, я обнаружил на нем сложенный огромный кран!
Оказалось, пока мы готовились к стройке, на территории храма заложили нечто монструозное, огромный фундамент сооружения. Церковь, во много раз превышающая своими размерами старый храм. Я был заинтригован, поскольку ни проекта ни информации об этой стройке найти не удалось. Что будет рядом с нашим домом, не понятно, опасаться этого или радоваться... В общем, параллельно с рассказом о моей стройке, буду иногда рассказывать о соседней, это довольно интересно.

-82
-83
-84
-85

26.06.2018г. Стянули плиты перекрытий мощной проволокой, уложили еще одну полоску гидроизоляции и пошел в дело газоблок - начали установку внешних стен. Сделали штробы и за армировали кладку 1 ряда, далее, через каждые 2 ряда тоже добавляли арматуру. Укладывали на родной Бонолитовский клей, стараясь сделать шов как можно тоньше. С этим клеем была небольшая история: материалы на стройку я комплексно заказывал в одной известной фирме, занимающийся комплектацией строек. Так мне было удобно - не бегать по всему Подмосковью, а заказать сразу в одном месте. И дешевле получалось и была возможность разработать гибкий график доставки материалов по мере необходимости. И каким-то случайным образом, в накладной оказалось не 100 заказанных мешков, а 100 кг. В итоге, привезли мне только 4 мешка и сказали хватит! Уф, долго мне пришлось потом доказывать обратное, выбивать оставшиеся 96 мешков. Выбил! Так что, кроме цифр, проверять в бумагах нужно и единицы измерения.

-86
-87
-88
-89
-90
-91
-92

К 09.07 Кладка внешних стен вышла на отметку установки перемычек и кирпичного пояса под перекрытие. Так же, появилась центральная несущая стена, фрагменты кладки из облицовочного кирпича снаружи здания.
Строители подготовили арматурные каркасы балок для тех мест, где не получилось использовать стандартные перемычки.

-93
-94
-95
-96
-97

09.07.2018г. Мы свалили в отпуск, оставив строителям подробный план работ и просьбу присылать ежедневные фото-отчеты. В этот же вечер, я получил целый ворох фотографий.
Ребята вызвали кран, разбросали перемычки и уложили плиты перекрытий. Это был самый ответственный момент на период моего отсутствия, и прошел он очень удачно. Дальше, можно было спокойно отдохнуть не переживая за стройку.

-98
-99
-100
-101
-102
-103
-104
-105

16.07.2018г. По возвращению из отпуска, у нас уже была возможность оценить объемы внутреннего пространства 1 этажа. Впервые увидели высокие потолки (а высота их без учета стяжки составляла 3,28м.), это очень впечатлило, поскольку в городской квартире находятся они на 2,5м., а в старом доме около 2,8м.
А огромные панорамные окна - вообще восторг!
В общем, все очень здорово и аккуратно получалось.

-106
-107
-108

А тем временем, на соседнем участке рождалось нечто необыкновенное! Ничего подобного по масштабам деревянного строительства я не встречал, пожалуй, только храм Преображения Господня в Кижах может своими объемами конкурировать с этим сооружением.
Огромные бревна диаметром не менее 40см. с помощью крана укладывались в венцы.
Я был невероятно впечатлен, увидев это по возвращению из отпуска.
Меня поразили мастерство рубщиков (а здание именно ручной рубки), качество подгонки элементов, циклопические масштабы.
Что же будет дальше, было невероятно интересно.

-109
-110
-111
-112
-113
-114
-115
-116

Все плиты были перевязаны между собой, а торцы плит заполнены раствором (фото не делал).

-117

17.07.2018г. Дело двинулось дальше, пошла кладка стен 2 этажа.
На одной из фотографий виден проем между плитами. Я оставил его специально, для проходки всех коммуникаций. Мокрые точки и вентканалы в проекте оптимизированы, собраны к одному стояку, этот проем и служит как раз для их прохождения. Стройка задумывалась так, что бы в первый год вообще не заниматься никакими коммуникациями, не подводить воду, ни выводить канализацию. Сделать так, что бы потом, доступ к местам их прохождения был максимально удобный.
Периодически, приходилось вызывать кран для поднятия материалов на 2 этаж.
Один из недостатков газобетона толщиной 500мм. - это не малый вес блока, пожонглировать им как кирпичиком не получится. Чем выше стены, тем сложнее и страшнее строителям укладывать их на свои места. Для облегчения своей доли, ребята придумывали всяческие хитроумные устройства.

-118
-119
-120
-121
-122
-123
-124
-125

04.08.2018г. Стены преодолели отметки ложа боковых мауэрлатов. Часть строителей занялись подготовкой основания под их монтаж, часть продолжили кладку фронтонов, обозначив контуры нитью.

Наконец, появилась возможность полюбоваться местными окрестностями с уровня 2 этажа.

Снял небольшое видео по готовому 1 этажу

Видео 1

И забрался наверх

Видео 2

Внизу, под домом, получилась тоже интересная картина. Последние, из прикрепленных фотографий - кладовки, образовавшиеся в результате использования наклона участка. То, чего мне всегда не хватало в предыдущем доме. Два шикарных помещения, где можно ходить в полный рост. Отличное место для хранения чего либо, лучший подарок Плюшкину.

В стене одной из кладовок устроен проем в фундаментной ленте, для доступа к остальному подполью. Попросил ребят прокопать там траншею, для удобного доступа к местам подводки будущих коммуникаций.

-126
-127
-128
-129
-130
-131

16.08.2018г. Было полностью готово монолитное основание под мауэрлат.

-132
-133
-134

16.08.2018г. К этому моменту подоспели и боковые фронтоны. Под завершение кладки, строителям уже настолько страшно было затаскивать наверх габаритные блоки весом под 40кг, что я разрешил разрезать их пополам, что значительно упростило кладку.
Параллельно продолжались работы по возведению внутренних перегородок и несущих стен, залили утепленные косые перемычки панорамных окон, сложили опорные колонны под коньковый брус.
К 20 августа все было готово к началу работ по кровельным конструкциям.

-135
-136
-137
-138
-139
-140
-141
-142

А рядом кипела работа. Иногда, такие сцены приходилось наблюдать, а дух захватывало! Зачем лестницы и страховки, когда можно так, быстро и красиво...

-143
-144
-145
-146
-147
-148
-149
-150

24.08.2018г. Приступили к раскладке мауэрлатов и сборке стропильной системы. Все деревяшки, предварительно обработали огне-био защитой.
Шаг стропильной системы согласован с размером утеплителя.

-151
-152
-153
-154
-155
-156
-157
-158

Еще немного фотографий стропильного этапа.

-159
-160
-161
-162
-163
-164
-165
-166

Стропильные конструкции составные. Общая длина стропило в правой половине кровли - 8460мм. Составляется из двух брусьев сечением 200х50мм. длиной 6000 и 4000мм.
В левой половине кровли - 6500мм. Составляется из отрезков 6000 и 2000мм. В итоге, на каждую стропильную секцию уходит 3 бруса по 6000мм. Уклон кровли 30гр.

-167
-168

13.09.2018г. Пошла работа по обустройству и утеплению кровли.
Маты утеплителя по 10см. толщиной укладывались в 2 слоя с перехлестом швов.
"Пирог" стандартный: снизу обрешетка, затем пароизоляционная армированная пленка, теплоизоляция и стропила 200мм., диффузионная мембрана, контрбрус, на нем разреженная обрешетка и металлочерепица.

-169
-170
-171
-172
-173
-174

Начал, потихоньку вырисовываться чердачёк. У меня на него большие планы. По расчету, его площадь должна составить около 40м2, с возможностью ходить в полный рост.
Дети фанатеют немецкой железной дорогой и любят понаблюдать звездное небо в телескоп. Просторный чердак отлично подходит для этих целей, а то вечно, на полу детской разложены эти хрупкие рельсы, ходить страшно, случайно наступишь и краш. Для телескопа же, поставил большое мансардное окно. Да и как место для хранения, чердак - то, что нужно.

-175
-176
-177
-178

Еще немного чердака

-179
-180
-181

Перед укладкой кровельного покрытия, озаботился установкой и выводом на крышу всех необходимых вентиляционных и огневых каналов. Вентиляционные трубы использовал пластиковые, диам. 125-150мм. (брал в Леруа), огневые - сандвич из нержавейки. Для камина с внутренним диаметром 200мм., для котла 150мм.
Одна деталь, не знаю, правильно сделал или нет: опасаясь, что из за разницы температур внутри помещений и снаружи, вентканалы начнут "плакать", попросил строителей утеплить трубу над кровлей. Они укладывали несколько рядов кирпича вокруг каналов и заполняли внутреннее пространство между ними утеплителем из баллона с низким коэфф. расширения (тоже брал в Леруа). Таким образом, надеюсь избавиться от возможного конденсата.
Ну, по крайней мере, в эту теплую зиму, его небыло совсем.
Сам блок труб сделал над кровлей разно-уровневым, повыше - огневой канал, пониже - вентиляция. Сделал так, что бы в случае обратной тяги вентиляции, в дом не засосало дым. В "Обители" такое бывало. Редко, но случалось.

-182
-183
-184
-185

30.09.2018г. Закрыли кровлю. В качестве покрытия, я выбрал металлочерепицу М28 (1Zn 275) PURAL MATT RR 32- цвет темно-коричневый от Уникмы.
М28 доверял, т. к. на предыдущем доме она отлично пролежала 10 лет и выглядела как новая. Материал хороший.
Сложностей с монтажом не возникло, кровля простая, покрыли быстро.
Параллельно, сделали козырек над входом.

-186
-187
-188
-189
-190
-191
-192

Сразу, по завершению монтажа кровельного покрытия, полили обильные дожди - лучший тест выполненной работы. Прошли его на троечку, обнаружилась течь в местах примыкания к трубе. Некоторые элементы были сделаны не верно, пришлось разобрать и собрать этот узел заново. Повторная сборка, с тщательной герметизацией, показала себя намного лучше, воду не пропускала совсем.
На ближайшем строительном рынке заказал колпаки на трубу. 30 сентября водрузили их на место.

-193
-194
-195
-196
-197
-198
-199

А тем временем, на соседнем участке, работа шла полным ходом. Храм рос, над основным объемом появились 5 деревянных барабанов и на соседней участок привезли здоровенные, красивые купола. Очень интересно было детально ознакомиться с их устройством. Конструкция тонкая, легкая, в то же время, надежная.
Со дня на день, должен начаться монтаж.

-200
-201
-202
-203
-204
-205
-206
-207

Начало октября. Пора было заказывать окна, и тут я вспомнил, что у нас еще не готова кровля веранды! Как то и я и строители расслабились и совсем забыли про нее. Топор в руки и вперед, ударными темпами устранять упущенное.

Проектом заложена возможность в будущем застеклить верану и превратить ее в полноценное жилое помещение площадью 42,5м2. Поэтому, в шаге стропил сохраняется привязка к размеру утеплителя (кровля веранды была утеплена точно так же, как и основная кровля). "Пирог" пола тоже предусматривает полноценное утепление. В общем, веранда функциональна - пока открытое летнее пространство, в бдудущем, возможно зимнее закрытое. Тем более, на ней предусмотрен дымоход для установки камина или барбекю.

-208
-209
-210
-211
-212
-213
-214
-215

Этот пост я не могу не написать, поскольку, события в нем имели в дальнейшем, непосредственное касательство моей стройки (небольшое, но забавное).
Состоялось торжественное водружение куполов на барабаны храма.
Видео 1
Видео 2
Видео 3
Зрелище захватывающее, присутствовало на нем зевак и лиц, принимающих в строительстве храма непосредственное участие, немало. По успешному завершению, состоялся молебен и освещение куполов. Мы с энтузиазмом принимали участие в этом событии. Оно, действительно, впечатляющее, не часто увидишь такое.
В прошествии пары дней, в моем доме, должен был состоятся монтаж заказанных ранее окон...

-216
-217
-218
-219
-220
-221

Несколько слов о самих окнах. Во вложении, чертеж с конфигурацией, общая площадь составила 41,1м2. Выбрал совершенно новую на тот момент модель профиля, точно не помню название, кажется Rehau Intelio. Фото профиля во вложении. Его фишка была в возможности установки нестандартного, толстого стеклопакета. По заверению менеджеров салона, такой стеклопакет (более 50мм толщиной), имел самую высокую энерго-эффективность из представленных на рынке. Мало того, что он "толстый", вмещающий в себе большой объем воздуха, он еще покрыт массой всевозможных покрытий последнего поколения, отталкивающих инфракрасное и ультрафиолетовое излучение. И действительно, на демонстрационном стенде в офисе, над инфракрасной лампой находилось два стекла, одно обычное, другое - мега-супер-турбо современное. Разница при прикосновении, колоссальная: дотрагиваясь до обычного стекла, руку мгновенно хочется отдернуть, жара такая, что можно получить ожёг. Переместив ладонь на соседнее супер-стекло, тепло совершенно не ощущается, защитные пленки блокируют тепловое излучение, пропуская только свет. В общем, под впечатлением от увиденного, я заказал именно эту модель. Тем более, в то время, была акция и на новый профиль и на стеклопакет, переплата относительно популярного профиля Delight, была мизерная. Заказал профиль белый внутри помещения и серый (с текстурой древесины) снаружи. Плюс маскитные сетки и фиксаторы. Стал ждать доставки и установки.
Так вот, далее, погоня за новизной, сыграла со мной забавную шутку.

-222
-223

26.10.2018г. Точно в срок, мне привезли окна и началась установка. Процесс этот не быстрый, поэтому, я то присутствовал, то приходилось отлучаться. Монтаж шел без нареканий, но из за большого объема, затянулся до позднего вечера. В этот вечер, я смог дождаться только установки рам, мелких фрагментов остекления и вынужден был уехать, договорившись с монтажниками о приемке работы на следующее утро.

Утром следующего дня, вернувшись на объект, я застал рядом со своим домом батюшку из храма. Он стоял, смотрел на мои окна, охал и ахал. Как только увидел меня, сразу разразился тирадой о том, что я натворил, окаянный! По началу, я не понял, но он схватив меня за рукав, подвел к такому ракурсу, где новоиспеченные купола соседнего храма отражались в стекле. Тут стало все понятно. Как в королевстве кривых зеркал, кресты храма исполняли сумасшедшие танцы. Изгибались то в одну, то в другую сторону, зрелище было страшное. А самое неприятное, что этот ракурс, открывался как раз, на выходе из храма, на главном крыльце и человек, покидая молебен, невольно бросая взгляд на рядом стоящий дом, видел такое. Батюшка злился, кричал, что я сатанист и не потерпит такого мракобесия. Мне тоже было неприятно, никак не ожидал подобного результата. В общем, я записал недовольное видео владельцу оконной фирмы и стал ждать реакции. Она последовала быстро и на следующий день, консилиум из руководства компании и завода производителя стеклопакетов собрался у меня на участке. Как и я, все были в шоке от увиденного. Кто-то хи-хикал, кто-то старался разобраться в проблеме серьезно. Как выяснилось, "ларчик просто открывался", мое стремление поставить новомодный - толстый стеклопакет (более 50мм.) и сыграло злую шутку. Дело в том, что такая конструкция содержит в себе гораздо больший объем воздуха, чем стеклопакет привычной толщины. Стекло изготавливается на предприятии при комнатной температуре, и как только попадает на уличный холод, воздух внутри сжимается и меняет геометрию внешних стекол. Они становятся "впуклыми". В моем случае, с большим объемом воздуха, этот эффект приобретает гипертрофированный характер и страшно пугает местного батюшку. Со временем, когда внутри дома появилась постоянная плюсовая температура, эффект линзы практически пропал и со священником воцарился благостный мир.

-224
-225
-226
-227
-228
-229
-230

Приятная мелочь, о которой забыл упомянуть: в конце сентября, в доме забилось пламенное "сердце"!

Видео 1

Для меня, это знаковый момент, поскольку очень люблю камин и часто его использую. Заранее проработал схему его установки и дизайн. По задумке, облицовка должна стать композиционным продолжением декоративных элементов стены и потолка, но сейчас, рассказывать об этом не буду, оставлю на момент повествования об интерьерах. Сейчас, только об установке топки и дымохода. В качестве подиума, использовал не востребованные газоблоки, сверху, для создания прочного основания, положили ряд кирпичей. Газоблоки использовал по нескольким причинам: они легкие и нагрузка на плиту получится минимальной. Они теплые, а поскольку ложатся на плиту перекрытия без утеплителя, не будут передавать в помещение холод из подполья. Два ряда блока и ряд кирпича идеально соответствовали проектным размерам. Топка, проверенная временем Invicta Selenic 700 (6769-01) с боковым стеклом. Дымоход сандвич из нержавейки, внутренняя труба диаметром 200мм и толщиной стенки 1мм.

Самое сложное в установке, это проход трубы через плиту перекрытия. Я дал ребятам точные привязки отверстия, что бы нарушить только одну силовую перегородку в плите, но мои раздолбаи, расковыряли дырку от души, я немного испугался, увидев это. После, внес коррективы в конструкцию облицовки, сделал ее несущей, что бы снять нагрузки с опасного места и спать спокойно. В конструкции дымохода предусмотрел возможность прочистки. От топки, поднимается не утепленная разгонная труба и через уголок соединяется с основным стволом. Тяга получилась паровозная, конденсата - ноль.

-231
-232
-233
-234
-235
-236
-237

В целом, я был доволен своими строителями, они старались, не допускали грубых ошибок и делали все в срок, единственное, с чем никак не мог смириться, это (извиняюсь за слово) жуткий срачь на строительной площадке. Что бы не делал, никак не мог заставить содержать рабочее место в чистоте. Сначала просто просил, потом указывал на повышенных тонах, потом орал, но они никак не могли понять зачем это нужно.
Почему в конце рабочего дня нельзя уделить полчаса, что бы прибраться? Не плодить мусор как снежный ком. И только после угрозы серьезного штрафа, все полезные остатки были рассортированы и аккуратно складированы, мусор прибран и вывезен.
Не хотел писать о негативе, но пусть уж, картина будет полна.

-238
-239
-240
-241
-242

17.11.2018 Сезон движется к завершению, коробка стоит, работа на этот год, практически выполнена. Температура на улице уже частенько начала опускаться ниже нуля. Строители заерзали на стульях и начали проситься домой. Но отпускать пока не собирался. Надо же защитить площадку на зиму от не желательных гостей. В качестве дембельского аккорда, была поставлена задача обнести участок забором. Сделал чертеж, посчитал количество материала и приступили.
Видео 1
Видео 2
Видео 3
Забор ставили на монолитной ленте с заглублением 40см. Через каждые (примерно) 3 метра устанавливались столбы 80х80 с 3-мя перекладинами 40х60. Под автоматику ворот и освещение сделали закладные. Что будет за штакетник, пока точно не решил, думаю о металлическом в шахматном порядке.

-243
-244
-245
-246
-247
-248
-249

Последнее задание - поставить временные, самые простые деревянные двери и окончательно рассортировать мусор. После, строители благополучно покинули меня.
25 ноября обильно полетели "белые мухи", наступила зима.

-250
-251
-252
-253
-254

Нужно было задумываться об объеме работ на следующий год, приступать к проекту интерьеров.
Первое, что хотел сделать, это именно интерьеры. Домом нужно начинать пользоваться, вложенные средства должны начать приносить результат. А фасады могут немного и подождать, хотя, над ними тоже продолжал думать. На вложенных фото, фотография готовой коробки и имитация будущих фасадов, сделанная на ее основе в фотошопе.

-255
-256

Для памяти и для облегчения работы над интерьерами, снял видеообзор по внутрянке.
Он интересный и информативный.
Но снимал для себя, поэтому комментарии довольно бестолковые, не ругайтесь и не смейтесь.

Зимой частенько приезжал побродить по красивым окрестностям и навестить дом. В тот год, в отличие от прошедшей зимы, снега было много. Как раз, отличная возможность промониторить, как стропильная система держит снеговую нагрузку, есть ли прогибы, течь, изменилась ли геометрия. Дом держался отлично, никаких отклонений замечено не было. Сырость тоже отсутствовала, дом постепенно высыхал и готовился к внутренней отделке. Я тоже, и морально и материально. Работал над интерьерами, искал бригаду инженеров и отделочников.

-257
-258
-259
-260
-261
-262
-263
-264

Финансовый вопрос - один из самых интересных!

С момента выхода на стройплощадку, я начал вести дневник расходов, куда записывал каждую копейку.

Все расходы за строительный сезон составили: 6146522р.

Если исключить побочные расходы, "коробка" обошлась в 5177218р. или 21130р. за м2

13.04.2019 Пришла весна. Первое, чем мы занялись перед началом нового строительного сезона, это окончательно вычистили участок и дом от строительного мусора. Набралось всякого барахла на здоровенный контейнер.

-265
-266

Зимой, я изобразил на бумаге все свои хотелки по отоплению, электрике, вентиляции. Разместил выключатели, розетки, светильники, группы включения, подобрал радиаторы.
С середины апреля, в дом вошли специалисты по коммуникациям и начали опутывать дом "кровеносной системой".
Если на втором этаже, монтаж напольной разводки шел прямо по плитам перекрытия, то на первом этаже, сначала уложили слой утеплителя, затем приступили к раскладке труб и проводов. Сделали так, что бы трассы отопления и водоснабжения находились в тепле. На каждый этаж были предусмотрены отдельные щитки.
Видео 1

-267
-268
-269
-270
-271
-272
-273
-274

11.05.2019г. Закончен монтаж основных трасс. Получившийся "инженерный" уровень пирога пола был закрыт еще одним слоем утеплителя, закрыт пленкой, по которой уложили сетку для монтажа контура теплого пола.
"Теплый пол" я не использую в качестве системы отопления, укладываю его только там, где есть напольная керамическая плитка, в коридоре, санузлах, на кухне. Использую его исключительно для поддержания комфорта ног, зимой без него не очень-то уютно. Приходится ходить в тапках и укладывать коврики (люблю ходить босиком). Но заменять им классическую "радиаторную" систему не считаю возможным. Они должны работать параллельно. При отсутствии радиаторов, пол придется держать не слегка теплым, а горячим, что совсем не комфортно и полезно (ИМХО). Тем более, система полов инерционная, она долго разогревается и долго остывает, оперативно регулировать микроклимат не получится. Обогрев пола делают именно для комфорта, а не для отопления, так что, радиаторы считаю необходимыми.

-275
-276
-277
-278
-279

15.05.2019г. Тоже, очень интересный и насыщенный был день. По завершению прокладки коммуникаций и настилке утеплителя, пришло время заливать стяжку.
По утру, перед участком высыпали кучу песка, сгрузили мешки с цементом и подогнали шайтан-машину для приготовления смеси. От нее, в дом протянули длинный "хобот" и начался процесс заливки.
Машина гудела, пыхтела, хобот трясся как в нервном припадке, изрыгая из себя порции раствора.
Видео 1
Видео 2
Дальше, ребята равномерно распределяли смесь по комнате, разглаживали ее с помощью правил, строго соблюдая уровень и затирали шлифовальной машиной.
Видео 3
Видео 4
Все 181м2 были сделаны за 1 световой день. Стяжка идеально ровная, любо-дорого смотреть.

-280
-281
-282
-283
-284
-285
-286
-287

Еще пару фото конечного результата. Дальше, несколько дней ухаживали за стяжкой, равномерно смачивали ее, дожидались, когда она достигнет достаточной прочности, для продолжения работ в доме.

-288
-289
-290

21.05.2019 Стяжка просохла. Внутреннее пространство дома начало резко меняться. Голые кирпичные стены, к которым я уже так привык, покрыла рябь из сетки, маяков и плюшек родбанта. Получилось прямо какое-то арт-пространство, подходящее для съемок психоделики.

Дело завертелось! Перед нанесением всей этой красоты, ребята тщательно обработали стены грунтовкой.

-291
-292
-293
-294
-295
-296

Пока строители занимались рутинной работой со стенами, у нас наступил непозволительный по нынешним карантинным временам этап, поездки по магазинам и подбору отделочных материалов. После выбора, нужно было интегрировать их в проект, посчитать количество, уточнить наличие и сроки доставки. Приятный этап, но не всегда положительно влияющий на семейные отношения. Жена хочет одно, я другое и сдаваться не хочет никто!

-297
-298
-299
-300
-301
-302

29.05.2019 Тем временем, в доме работа кипела ударными темпами. Он продолжал меняться на глазах. Рябь исчезла, стены покрылись штукатуркой. В "сухих" помещениях, наносили гипсовую, в "мокрых", цементную.

-303
-304
-305
-306
-307
-308

31.05.2019 Состоялась первая доставка заказанных отделочных материалов. Привезли плитку. Взяв из машины первую коробку, я сразу почувствовал неладное, что то там поскрипывало и похрустывало. Вскрыв, обомлел, сплошной бой! И так, почти весь груз. Как так возможно, не понимаю:-(И дороги, вроде бы, ровные и машина на подвеске и с резиновыми колесами, до такой степени трясти не должно. Хорошо, продавцом оказалось порядочная фирма, и все без вопросов оперативно заменили, но сам факт! Бывает, пара плиток побьются, а тут процентов 60.

-309
-310
-311

03.06.2019 На стройку прибыли и были смонтированы 2 теплых входных двери. Одинаковые и основная и дверь в котельную. Высоту проема специально рассчитал так, что бы в конструкцию удалось интегрировать фрамугу. Хотелось иметь немного дневного света в прихожей и котельной, заходить туда без необходимости включать свет. Темные снаружи, белые внутри, сразу изменили входную группу, появилась частичка "беловой" отделки. Мелочь, а приятно.

-312
-313
-314
-315
-316

А соседний храм в это время, принял завершенные очертания. На первом фото вид, открывающийся из окна. Храм красивый, большой, находиться в нем приятно.
Но, пожалуй, больше не буду о нем писать.

-317
-318
-319
-320

12.06.2019 Штукатурные работы были закончены, пришло время заняться потолками. Проектом, почти во всех комнатах предусмотрены разно-уровневые потолки. Их рисунок призван составить единую композицию с декором стен, дать возможность применить разные группы света, зонировать пространство. Поскольку, моя супруга склоняется к классическим интерьерам, а я являюсь поклонником спокойных современных решений, нужно было найти компромисс: классические потолочные паспарту с молдингами должны органично сочетаться с современными покрытиями, при этом, постараться не окунуться в китч, избежать раздражающих цветов и форм. В общем, решения должны быть спокойные, уютные, "долгоиграющие" и не супер дорогие. Задача не простая, но интересная.

Потолки в формировании интерьера играют одну из важнейших ролей. Он один может "сделать" весь интерьер. Если идея оригинальная, уместная, теоретически, можно больше ничего и не делать!

Вот и посчастливилось мне немного "оторваться", накрутил их от души, тем более, высота потолков с комфортом позволяет это сделать не боясь за объем помещения. Сами плиты решил не штукатурить, а всю площадь закрыть гипсокартоном. Закрывали в 2 слоя с проклейкой швов сеткой.

На фото, самое начало работы, идею пока прочитать трудно. В некоторых местах, потолки призваны закрыть разводку вентиляционных труб.

-321
-322
-323
-324
-325
-326
-327
-328

13.07.2019 Довольно много времени ушло на шпатлевку. Стены становились гладкими, белыми, восприятие внутреннего объема кардинально изменилось. Раньше, комнаты казались темными, маленькими, теперь наоборот, появился объем и "воздух". Дом наполнился светом, стали проявляться элементы будущего дизайна.

-329
-330
-331
-332
-333
-334
-335
-336

Постепенно, плитка начала занимать свои места. На стене прихожей выложили большое керамическое панно. Панно имитирует древесину и служит защитой стены от прикосновения рук. При входе, это очень актуально! Когда народ приходит с прогулки, все норовят опереться на стену одевая или сбрасывая обувь, через некоторое время, стена в этих местах становится черной. Поэтому, решил "закатать" её плиткой.

Появилась "одежда" в котельной, санузлах, выложили фартук на кухне.

В кирпичной перегородке, отделяющей лестницу от входа в спальню 1 этажа, вырезали проем под витраж, это сразу придало легкости конструкции.

-337
-338
-339
-340
-341
-342
-343
-344

Чем ближе дело подходило к чистовой отделке, тем чаще мне приходилось мотаться между стройкой и магазинами. Машина была постоянно битком забита разными материалами, мелочевкой, коробками и свертками!

На втором этаже сформировался потолок. В некоторых комнатах, для увеличения визуального объема, я сделал его по касательной кровли (перелом стены и скоса кровли находится на расстоянии 1830мм. от "чистового" пола), а стропильные затяжки вынес как декоративный элемент в интерьер. Затем хочу тщательно пройтись по ним шкуркой и морилкой и использовать как основание для подвеса освещения.

В некоторых комнатах, потолки вышли прямыми, без мансардных скосов. На разрезе хорошо видно, что получилось с чердачным перекрытием.

Наконец, сформировалось пространство чердака. Его размеры и получившаяся высота меня очень порадовали, и теперь необходимо было подумать как организовать туда удобный "залаз". На последних двух фотографиях виден проем в перекрытии, который был оставлен для доступа. Что будет за лестница, пока не знаю. Точно не чердачная с люком, не хочу. Хочу, что бы пространство чердака служило продолжением комнаты, поэтому, лестница должна быть удобная, для повседневного пользования. При этом, не габаритная, не мешающая окну, находящемуся не далеко от проема. Идеи есть, но о них несколько позже.

-345
-346
-347
-348
-349
-350
-351
-352

05.08.2019 Еще пару слов о чердаке. Поскольку, накрывает собой он почти все помещения второго этажа, а на самом чердаке, будут "беситься" дети, я решил его как можно лучше звукоизолировать. В структуру пола положили "пирог", напоминающий кровельный: снизу - пароизоляцию, затем 15см. утеплителя, мембрана и доска сороковка. Оказалось, очень хорошее место для утилизации негодного, рваного, помятого утеплителя от моей и соседской стройки.

Испытания детьми прошли успешно, снизу, практически ничего не слышно!

Как были готовы полы, приступили к отделке стен. Обычная вагонка, которая в дальнейшем будет покрашена белой марилкой.

-353
-354
-355
-356
-357

08.08.2019 Все про дом, да про дом, нужно хотя бы немного заняться и улицей.
На предыдущем участке, наблюдался явно выраженный уклон. Жить с ним можно, но радости большой от него не наблюдается. С ребенком в футбол толком не поиграешь, стол и стулья, не поставишь (поставишь, конечно, но все норовит с них скатиться).
Новый участок, тоже не лишен этого недостатка. Не столь ярко выраженного, но все же. Я решил бороться с ним на корню, решил разбить территорию на фрагменты, отделить их друг от дружки подпорными стенками и идеально выровнять в горизонт каждый сегмент. На первом фото генплан участка, на втором - цветом выделены разные уровни, сформированные подпорными стенками. Сами стенки размещал так, что бы при дальнейшем благоустройстве территории и работе над фасадами, дом и участок составляли единую композицию. Некоторые элементы фасадного декора хочу перенести на подпорные стенки, такие как декоративный камень цоколя, возможно, деревянные ограждения веранд продолжаться на участке и станут визуальным разделением сегментов.
Объем работы не маленький, и заливать бетона порядочно, и грунта перетащить с места на место предстоит не мало.

-358
-359
-360
-361
-362
-363
-364
-365

12.08.2019 В доме продолжались отделочные работы. Полностью разложили керамическую плитку, подготовили подиум для работы над облицовкой камина, приступили к укладке ламината.

-366
-367
-368
-369
-370
-371
-372
-373

16.08.2019 Дом начал обзаводиться отмосткой.

18 лет назад, строя "Обитель", я и предположить не мог, какие мощные силы действуют на конструкции во время сезонного пучения. Совершил тогда ошибку, залив отмостку без утепления и подготовительных работ. Причем, ее толщина была совсем не маленькая, 30см., 20 из которых находились в земле. Все хорошо за армировано прутами 12 диаметра. Тогда казалось, отмостка простоит веками и нет сил, способных сотворить с этой конструкцией что-то плохое. Не тут-то было, в первую же зиму, она потрескалась как яичная скорлупа, ее поднимало и выгибало как тонкий лист бумаги. Я был в шоке!

Поэтому тут, помня печальный опыт, решил утеплить все по максимуму, сделать песчано-гравийную подушку. Хоть грунт и не пучинистый, лучше исключить малейшие риски.

Одновременно с отмосткой, продолжались работы по возведению подпорных стенок и выравниванию участка. Ребята трудились как настоящие кроты.

-374
-375
-376
-377
-378
-379
-380
-381

Шпаклевочные работы подходили к завершению, находиться в доме стало невероятно приятно. Белые стены раскрыли весь объем помещений, большие окна заполняли их светом и "воздухом". Последние опасения относительно правильного выбора площадей и высот были выброшены на помойку. Все очень нравилось. Подходило время малярных работ, покупки краски и обоев.

-382
-383
-384
-385
-386
-387
-388
-389

22.08.2019 "Кротовьи" ходы и норы продолжали плодиться на участке. Один из вжных и "грязных" этапов - прокладка и подводка коммуникаций. Как уже писал ранее, в первый год я совершенно не хотел связываться с инженеркой и заложил проектные решения таким образом, что бы к моменту, как назреет данный этап, прокладка не представляла сложностей. В доме, оставлен широкий канал для их прохождения, в подполье, есть удобный доступ к местам "проколов" фундамента. Вот и настал этот момент. Засверкали лопаты, охнула земля и покрылась глубокими траншеями! Сложностей никаких не было, точно по чертежам разложили все трубы и кабели, поставили ревизионные колодцы и септик. Был момент, заставивший меня немного поволноваться - канализационная трасса до септика. Поскольку находится он на определенном удалении от дома, необходимо было в точности соблюсти все уклоны. Подготовку траншеи вели с особой тщательностью, на её дно насыпали "подушку" из песка и гравия, несколько раз все проверили - перепроверили, и только после того, как появилась уверенность в работоспособности, сделали врезку в септик и закопали трассу. На всякий случай, верхнюю часть септика я попросил обернуть пеноплексом.

Видео 1

Видео 2

-390
-391
-392
-393
-394
-395
-396
-397

Немаловажный вопрос водоснабжения.

В нашем поселке проложен общий водопровод, но как бы так сказать, он немного подбаливает. Таким себе, водопроводным простатитом. В час по чайной ложке. Мой участок находится на вершине холма, а насосная станция у подножья. И если нижние участки счастливы им пользоваться, то до нас доходят сущие капли. Жить с ним не в радость. Что делать? Либо копать колодец, либо скважину. Сначала, мой выбор склонялся в пользу колодезной воды. На соседнем участке, как раз, напротив того места, где я планировал выкопать свой колодец, находился соседский. Он был полон прекрасной, чистой водою.

Решение принял, созвонился со специалистами и приступили. 10 колец, 15... воды нет даже намека. В общем, эксперимент был остановлен, смысла углубляться дальше не было никакого. Вероятно, водоносные пласты в холме проходят очень затейливым образом, и то, что есть у соседа, через 5 метров заканчивается. Что сделано, не пропадет, переориентирую пустой колодец под дренажный приемник, а для воды остался один шанс - скважина. Сказано - сделано! Пришла буровая, разместилась как можно ближе к дому и за 2 дня дошла до воды. 55 метров суши, а потом мощный горизонт, воды залейся. То, что сразу бросилось в глаза, точнее, ударило в нос - резкий запах сероводорода. Никогда с таким не сталкивался. Но радость от появления на участке неограниченного количества воды, пока перекрывала все минусы. Саму скважину, обсадили синим крепким пластиком, поставили небольшой оголовок (без кессона), который я потом спрячу под декоративным камнем.

Еще, приятным бонусом от бурильщиков, был "зимний" уличный поливочный кран. Какая-то хитрая конструкция, которая сбрасывает уровень воды в трубе ниже глубины промерзания. Открываешь кран, он по-шипит пару секунд и выдает поток воды. Закрываешь, вода в трубе не остается, а уходит вниз. Ничего не промерзнет. Хорошая штука.

Видео 1

Видео 2

Видео 3

Видео 4

-398
-399
-400
-401
-402
-403

21.08.2019 Поклеили обои в спальне на 1 этаже. Дизайн этой комнаты согласовывался с ее будущими обитателями, старшим поколением. Он должен быть спокойным, уютным, с различными группами света и классической мебелью. На одной из фотографий виден проем в подлестничное пространство. Там получается отличная небольшая гардеробная. Со временем, вход в нее будет закрыт белыми деревянными дверьми с жалюзийными фасадами.

-404
-405
-406
-407

Приступили к монтажу облицовки камина. Одна из идей в его дизайне - композиционное продолжение потолочной балки, отделяющей гостиную от кухни. Сделал набросок от руки, перевел его в чертеж и передал строителям.
Конструктивная идея: к топке, с диагональных углов примыкает кирпичная кладка, она является силовым каркасом конструкции. Справа, между наружной стеной и кладкой облицовки есть небольшой проем, это место, где будет храниться запас дров (во время топки камина, его тепло дополнительно подсушивает поленья). Через этот проем, худой человек может добраться к "потрохам" камина, пролезть внутрь для прочистки и обслуживания. Над каминной топкой, устраивается кожух из простых и легких газобетонных блоков толщиной 100мм., которые потом идут под штукатурку. Внутри всей конструкции, вокруг топки, устраивается тепловой "кокон" из изоляционного фольгированного материала ROCKWOOL
Камин Баттс. Вот такая очень простая и эффективная история. Тяга отличная, тепла в комнату дает много, облицовка не греется, остается холодной даже на протяжении многочасового горения. Получилось на славу и с первого раза.

-408
-409
-410
-411
-412
-413
-414
-415

В одном из предыдущих постов, писал о чердачной лестнице. Тогда в голове крутились мысли о том, какая она должна быть, но все равно, четкой картины по конструктиву не было. Я точно не хотел использовать откидные "чердачные" решения типа Fakro Komfort и подобные. Хотел поставить стационарную, удобную, при этом компактную и имеющую привлекательный внешний вид. Учитывая то, что рядом находится панорамное окно с выходом на балкон, что дверь должна открываться и не входить в контакт с лестницей, задача была не простая. Появилась идея откатного марша. Было бы здорово сделать так, что бы марш сдвигался к стене и прятался во встроенный шкаф, а когда нужно подняться на чердак, достаточно просто, без особых усилий, потянуть его на себя. Нашел аналог подобного решения в сети, связался с производителями, обсудил детали, сделал чертеж и заказал конструкцию.
Пока лестница находилась в производстве, были полностью закончены работы по отделке комнаты (в будущем, мой рабочий кабинет). Подготовлен проем, окрашены стены, смонтирован декоративный камень.
Через месяц, конструкция прибыла в дом. Прибыла в виде набора элементов, отдельно ступени, отдельно металлические косоуры, отдельно, неподвижный верхний блок ступеней.
В порыве энтузиазма, я с приятелем схватился за монтаж. Дело было к вечеру, строительные рынки и магазины уже не работали, а поставить лестницу ой как хотелось. Нам не хватало только мощных шурупов с дюбелями, что бы прикрутить верхний элемент к несущей стене. Я метался по дому в поисках крепежа, нашел подходящее, точнее, мне тогда показалось, что они подходящие. Поставили стремянку, приложили, разметили, просверлили, прикрутили и вуаля! Чудо конструкция украсила комнату. Она мягко ходила по направляющим, плавно и без усилий задвигалась и откатывалась от стены. Это именно то, что я хотел! Удобно и компактно. Наконец то, можно без "танцев с бубном" забраться на чердак, занести туда вещи. Раз десять пробежался по ней туда-сюда, кайф! На следующий день, решил помыть чердак, наполнил водой ведро, в другую руку - пылесос и наверх. Дойдя до последней ступеньки, вдруг услышал резкое хлопок и ступени начали уходить у меня из под ног. Мгновенно! Лестница, ведро с водой, пылесос и я, пролетели этаж и рухнули на пол. За доли секунды, хотя мне показалось, что прошла целая вечность, все происходило как при замедленной съемке. Не буду описывать мои ощущения от падения, но было больно, и нога - она сломалась:-(Кое как, я дополз до машины и управляя левой зоровой ногой, добрался до "травмы". В общем, моя стройка остановилась ровно на месяц:-(Вот что значит, поторопиться!
Во вложении, последние 2 фотографии сделаны уже после всей этой истории. На стене за лестницей, видны белые пятна, это шпатлевка глубоких борозд, которые оставила конструкция при падении. Хорошо, что все удалось восстановить, и ногу и погнутые косоуры лестницы и стену. И прикрутил я ее в этот раз на такие МОЩНЫЕ ШУРУПЫ, что оторвать можно только с частью дома.

-416
-417
-418
-419
-420
-421
-422
-423

22.08.2019 Начала потихоньку вырисовываться кухня. Закончили малярные работы, установили потолочные балки, на стене появился декоративный кирпич. Сделал несколько эскизов по меблировке, но окончательного решения пока нет. Я склоняюсь к современному решению, супруга хочет фасады в классике.
Объем кухни большой, много света и пространства, как раз то, что мы и хотели.

-424
-425
-426
-427
-428
-429
-430
-431

Решил пересмотреть концепцию по решению фасадов, во вложении было-стало. Свежий вариант мне нравится больше, он лаконичней, проще в исполнении, контраст подчеркивает разные уровни фасада.
Раньше, фасадное решение строил на сочетании разных цветов штукатурки, планировал светлую штукатурку вести по дополнительно наклеенному пенопласту (10см. толщиной), а бежевую прямо по блоку. Хотел создать интересную "пластику" фасада. Но покоя мне всегда не давал пенопласт. Для утепления (при моих стенах в 500мм.) он совершенно не нужен + отсутствие паропроницаемости и то, что он постоянно что-то вредное из себя выделяет, мотивировало меня свести его использование к минимуму. Решил оставить его только вокруг оконных и дверных проемов, а экстерьеры строить не на разных уровнях, а на контрасте и текстуре используемых материалов.
Проблема в том, что никак не могу найти хороших, толковых исполнителей, хорошо разбирающихся в технологии и последовательности работ.

-432
-433

Хочу еще пару слов сказать о своей системе отопления и больше к этому вопросу не возвращаться. Как уже писал ранее, в предыдущем доме (Обители) уже успешно реализовал и эксплуатирую подобную схему. В условиях отсутствия газа она вполне себя оправдывает и не дает больших расходов на отопление. В новом доме, не желая вновь изобретать "велосипед", решил повторить её с некоторыми улучшениями, в основном затрагивающими вопросы автоматизации. Итак, изначально я проектировал котельную так, что бы была возможность установки газового котла, т. е. у неё необходимая нормативная площадь, объем, есть окно, заложена вентиляция, большая высота потолка, негорючие материалы отделки и даже присутствует дверь на улицу, хотя по нормам она не требуется. Газ я жду "как у моря погоды", вроде намечается, но когда и сколько будет стоить - покрыто туманом. А пока, традиционная схема - твердотопливное "сердце" с поддержкой электрокотла. С выбором котлов сомнений не было, с моделями я определился давно, оставалось только подобрать мощность. Твердотопливник - дровяной пиролизный Atmos DC. Это отличный агрегат! Надежный, удобный, мощный, обладает всей необходимой автоматикой. Внешний кожух не греется даже при длительном горении. Имеет турбину для быстрой растопки и выхода на рабочий режим. Для безопасности, корпус оснащен дополнительной водяной рубашкой охлаждения - в случае отключения электричества и остановки насосов, она позволяет отвести от котла излишнее тепло. Да и чистить его легко. Что касается электро-котла, то это проверенный Protherm Скат. Трудиться они должны попеременно, твердотопливник днем, а электро - ночью, по ночному тарифу. Посчитав количество радиаторов и их мощность, решил брать Atmos DC25S и Скат на 14кВт. Тепло-аккумулятор не ставил, т. к. и без него система меня устраивает да и нагрузка на перекрытие от него большая и места занимает много. Хотя, со временем, возможность до установить его есть. Обвязку доверил профессионалам, поскольку сам в этом ничего не понимаю. Одна из просьб была возможность контроля насосов и электрокотла удаленно. Для Ската был установлен в щиток Zont, с контролем котла через мобильное приложение, а для насосов (что бы они ни молотили круглосуточно), заказал с Алика автомат с Wi-Fi, управляемый через приложение eWeLink. В нем настраиваю расписание, могу принудительно запустить или остановить все насосы. В общем, совсем не дорогая, и удобная система простого контроля. Для переключения между котлами, необходимо повернуть один кран (перекрыть контур электро-котла, что бы теплоноситель ни бегал через него по малому кругу). По самой эксплуатации: при температуре выше +5гр. дровяным котлом практически не пользуюсь, если дом хорошо прогрет, то ночной работы электрокотла полностью хватает для комфортной жизни. Он автоматически запускается вместе с насосами в 23.00 и останавливается в 7 утра. К посту прикрепил апрельский график температуры с работой котла на мощности в 7кВт. Датчик температуры установлен в котельной, поэтому "пила" довольно резкая, в комнатах она сглажена.

Первый тестовый запуск системы показал, что все отлично работает, но когда теплоноситель остыл, всё потекло! Пришлось подтягивать многие соединения. Дальше, уже пошел период эксплуатации, где я привыкал к особенностям этого организма, научился понимать его, слышать, чувствовать, когда что-то пошло не так. Ловить малые углы поворота "крутилок". Дровяной котел как живое существо, когда он горит, как будто, в доме есть еще кто-то, к нему подходишь, разговариваешь с ним!, чувствуешь его настрой. В первый год проявился серьезный недостаток: монтажники врезали в систему автоматический кран, отсекающий высокую температуру от радиаторов. Если теплоноситель достигает 60гр. то он практически перекрывает трассу от котла и начинает подмес обратки. Вот тут и начинается веселье - котлу некуда девать свою мощность и он уходит в разнос. Резко повышается температура и приходится охлаждать его аварийной водяной рубашкой. С этим краном что-то придется решать, портит он мне жизнь. Вырезать, ставить что-то другое. Но, такое происходит только на высокоэнергетичных дровах (типа березы), если топить ёлкой или сосной, баланс соблюдается, перегрева нет. Одной закладки хватает примерно на 3 часа без дополнительного подброса. По расходам - в зимний период в месяц выходит около 7,5т.р. на все электричество (свет, накопительный электро-водонагреватель, плита и отопление). Тариф в поселке 6,82р. день, 2,65 - ночь. Все работает не плохо и к системе уже давно привык, но все же, очень хочется газ! Что бы включить и забыть, а то возня с дровами и чисткой котла всё же немного напрягает. По остальным инженерным системам: вода - своя скважина на 55м. Вода не очень, с резким запахом сероводорода и железом. Фильтры поставил. Канализация - септик Юбас Евробион. Работает отлично, чищу 2 раза в год.

-434
-435
-436
-437
-438
-439
-440
-441

Теперь перехожу к событиям посвежее. Внутри дома работы в основном были закончены, осталась только меблировка, а вот с фасадами еще конь не валялся. Как писал ранее, я переработал внешний дизайн относительно первоначального решения, добавил контраст, упростил элементы декора, постарался сделать его более технологичным и выразительным. Последний эскиз мне понравился и был пущен в работу. Пришлось освежать в памяти технологии штукатурки, просчитывать спецификации. Приступил к работе с поиска лесов. Из за непростой конфигурации плана, большого количества выступающих элементов, целиком закатать дом в стандартные леса не получалось, пришлось ставить деревянные, дополнительные. Так что вынужден был покупать довольно приличный объем бруса и досок для их организации. В течении одного дня все необходимое для начала работ было поставлено.

-442
-443
-444
-445

На следующий день закипела работа. Первым этапом нанесли на стены грунтовку глубокого проникновения Ceresit CT 17. Через пару часов начали наклеивать сетку. (Использовал щелочестойкую Litokol 5x5) Клеили с помощью Ceresit Thermo Universal. Наверное, разумнее было бы сначала нанести клей, а потом вдавливать в него сетку, но мои поступили наоборот, пристрелили сетку, а потом поверх нанесли клей с активным разглаживанием. Получилось не плохо, сетка зафиксировалась намертво. После высыхания первого клеевого слоя, на следующий день нанесли второй с тщательным выравниванием. Теоретически, если на этом этапе остановится и просто покрасить, уже получился бы вполне приемлемый вариант не дорогого фасада.

-446
-447
-448
-449
-450
-451
-452
-453

Но мы двинулись дальше. Пора было формировать декоративные элементы. Они заключались в обрамлении окон и нескольких выступающих плоскостях. Их задача заключалась в дополнительном утеплении оконных откосов, создании интересной разноуровневой пластики фасадных решений. Все достаточно просто - из ЭППС толщиной 100мм. вырезались бруски шириной 200мм. и на какой-то "ядерный" клей приклеивались к стене в обрамление окна. Дополнительно, тонким полистиролом (20 или 30мм) утеплялся оконный откос. После все это хозяйство покрывалось сеткой с клеем как и основные плоскости. Когда дом был полностью покрыт клеевым составом с сеткой, перед началом следующего этапа, поверхность обработали специальной грунтовкой Ceresit CT 16 под декоративную штукатурку.

-454
-455
-456
-457
-458
-459

С момента начала чернового этапа штукатурки до готовности под основное покрытие прошел ровно месяц. Дальше, действовать нужно было очень быстро. Жара и палящее солнце не позволяли растягивать работу на несколько дней, необходимо за один проход закрывать один фасад. В противном случае, появились бы некрасивые стыки и переходы. Поэтому, наносили и протягивали штукатурку большим коллективом. На основные поверхности ложился Ceresit CT 175 без колеровки, в базовом цвете. На выступающие - декоративка со слюдяными вкраплениями Ceresit Visage Etna Grey. Штукатурка очень тонкослойная, требующая навыков. Поначалу получалось с трудом и коряво, потом дело пошло. Она, зараза, дорогая, и я очень переживал, когда эксперименты заканчивались неудачей! Но эффект потрясающий. На фото этого не видно, но темная штукатурка начинает играть на солнце бликами, присутствует интересная визуальная глубина. К сожалению, детальных фото этого этапа не сохранилось.

-460
-461
-462
-463
-464

Кроме штукатурки, в декоре фасада присутствует планкен, окрашенный в темно-серый цвет. Если со штукатуркой все было более менее понятно, то где брать хороший планкен, как его красить и как он поведет себя со временем - вопрос. Если искать действительно качественный, заказывать заводскую окраску, то цена его будет запредельная, а бюджет не резиновый:-(Начал просчитывать разные варианты и тут на глаза мне попалось интересное решение. Эту фирму я знал давно, как производителя качественной террасной доски из ДПК, но вот то, что они начали экспериментировать с доской для фасада, узнал впервые. Цветовая палитра не богатая, но нужный мне цвет присутствовал. Поехал посмотреть в живую и был приятно удивлен качеством и простотой решения. На дерево очень похож и даже пахнет древесиной. Сломать невозможно, на солнце не коробится и не выцветает. Цена приятная. Единственное, что останавливало в тот момент, это очень равномерный окрас в массе. Все же, я хотел получить небольшую цветовую разбежку, как это бывает при окрасе натурального дерева. В общем, думал думал и всё же решил над собою поэкспериментировать, купить и поставить её. Ставить нужно на каркас, можно из металла, я взял деревянные бруски. Сам монтаж невероятно простой, за короткое время закрываются большие площади. Единственное, что нужно учитывать - не закручивать саморезы очень сильно и отверстие по него делать несколько большего диаметра, что бы доска имела возможность слегка "плавать" при температурных расширениях. В итоге, мне реально понравилось, как получилось. Хоть и нет цветовой разбежки, но смотрится очень достойно. Разбежку я сделал в горизонтальных швах стыковки досок. Рабочим сказал специально их не подгонять, отрезать необходимые куски, а остаток, даже если он маленький, ставить на следующий ряд. В итоге, хаотичный разброс вертикальных швов дал необходимую "живость".

-465
-466
-467
-468
-469
-470
-471
-472

Монтаж планкена не занял много времени и сил, дальше наступило время подшивки софитов. Этот этап очень меняет внешнее восприятие дома, поэтому ждал его с опаской и нетерпением. Для подшивки выбрал пластик от Docke, конкретно Premium T4 сплошной и с перфорацией, цвет графит. Заранее все рассчитал, скомплектовал всеми необходимыми соединителями и J-профилями и заказал. Параллельно, строители монтировали короба софитов. Как заказ приехал, начался монтаж. Я только ходил и выворачивал наверх голову. Вроде ничего, неплохо смотрится! Дом и правда, стал очень меняться, приобретать законченный вид.

-473
-474
-475
-476
-477
-478

К 22 августа леса были сняты. С момента их постановки прошло 3 месяца. В итоге, основные работы по фасаду были закончены. Выкладываю фото результата. Работы предстоит еще много, не сделан цоколь, нет "пирога" пола и плитки на крыльце, балконе и веранде, не подшит козырек при входе, не подшита веранда. По подшивке навеса над крыльцом есть идея - сделать его из матового поликарбоната, а за него завести подсветку, что бы весь навес над тобой светился равномерным молочным теплым светом. Но это на будущее.

-479
-480
-481
-482
-483
-484
-485
-486
-487

Немного пофантазировал в фотошопе. Добавил цоколь и деревянные ограждения. Снаружи пока всё.

-488
-489
-490
-491
-492
-493
-494
-495

По интерьерам: пока специально ничего не фотографировал, разыскал более мение сносные фото только одной комнаты. В ближайшее время сделаю остальные.

Это основная, хозяйская спальня на втором этаже. Интересно проследить ее эволюцию, нашел несколько фото с одного ракурса - как она менялась со временем. Будет меняться и дальше, поскольку мы все еще ищем элементы декора, проверяем сочетания.

Из особенностей комнаты - она невероятно светлая, пожалуй самая светлая в доме. Большое панорамное окно и окно в кровле дают очень много света. Можно было бы сделать фрагмент потолка ровным, но я решил оставить стропильные затяжки открытыми, обработать их, покрасить и использовать как основу для светильников. Потолок "ушел" вверх по касательной кровли до соединения со стеной, это дало много "воздуха" в комнате, ощущение простора. Почти все комнаты в доме сделаны в светлых оттенках, эта не исключение. Здесь сочетание белой краски и обоев. Некоторые сложности были со шторами, под треугольное окно их нужно шить, заранее все рассчитав и точно подрезать ткань. Они не открываются целиком, сверху жестко зафиксированы на кронштейне липучками, можно только поднять и зафиксировать полог ткани, но и так света в избытке. Шторы специально шили из плотной ткани - blackout, что бы можно было полностью затенить комнату и спрятаться от летнего утреннего солнца, начинающего тормошить тебя в 3 часа утра! По мебели все просто - светильники из Леруа, торшеры я сделал сам, кровать и тумбы - Moon trade, комоды из Hoff, серия Мартин. На полу лежит ламинат Quick Step Impressive IM1847 Дуб светлый, ковер сюда не подходит, лежит как времянка, потом будет поменян на другой. Ну вот, вроде все, что хотел сказать по этой комнате. А, еще: под большим окном нет радиатора, он стоит рядом. При этом, окно не потеет, не плачет и не слезится, все в норме на 100%

-496
-497
-498
-499
-500
-501
-502
-503

Нашел еще фото своего кабинета. Тоже в эволюционном развитии! Он небольшой, но очень уютный, может исполнять роль не только кабинета, но и дежурной спальни. Кресло, стоящее рядом с кроватью раскладывается в полноценное спальное место. Именно из кабинета я организовал доступ на чердак. Так удобней всего - фактически, чердак превращается в 40-метровое продолжение кабинета, там, со временем планирую организовать уютную "берлогу" с дополнительным рабочим местом, поставить полноценную кровать, хочу разместить там стеллаж со своей старой аудиотехникой, организовать мини-мастерскую и обсерваторию. Доступ на чердак из спален был бы не удобен, а тут самое то, никому не мешаешь. Между стропильных затяжек оставил проем, к которому встала злосчастная лестница. Она удобная, теперь уже надёжно прикрученная, но как говорится, осадочек остался!

Панорамное окно тоже без радиатора, он установлен справа. И тоже проблем с конденсатом не наблюдается. За окном просторный балкон, где можно поставить шезлонг, посидеть с книжкой, пообщаться с соседями! Расположение стола спланировал так, что бы солнце не мешало работе и свет шел под правую руку. Кроме стола в комнате есть пара библиотечных стеллажей и глубокий шкаф. Вся мебель из Икеи, кроме кресла, оно от Moon trade.

По материалам отделки: окраска стен - сочетание белого и L499 (по колеровке Tikkurila) цветов. Обои фабрики Eco, коллекция Nature, декоративный кирпич на стене из Леруа - White Hills Лондон Брик. На полу, как и в спальне - ламинат Quick Step Impressive IM1847 Дуб светлый.

-504
-505
-506
-507
-508
-509
-510
-511

В дополнение к предыдущему посту публикую несколько фотографий чердака. Его площадь около 40м2, в высокой точке имеет высоту 1,95см., т. е. я могу ходить в полный рост. Установлена пара радиаторов, свет поступает из двух окошек - одно мансардное, через которое можно легко вылезти на кровлю и одно в торцевой стене. Пол с шумоизоляцией, сделан из половой доски 40мм. по стропильным затяжкам. Освещение сделал теплой светодиодной лентой в алюминиевом коробе, прикрученном по всей длине чердака. По бокам есть вместительные кладовки. Виды из окон шикарные

-512
-513
-514

Комната младшего ребенка. Самая "правильная" комната - прямоугольная с ровными потолками. Дневного света в ней (относительно) меньше, чем в других комнатах дома. У нее нет большого панорамного окна, зато есть два небольших. Лично я не считаю это недостатком, в комнате света достаточно, а учитывая, что ребенок приходит в нее только перед сном, свет там особо и не нужен. Зато удачное расположение окон и дверных проёмов позволило насытить комнату необходимой мебелью. Присутствует и своя гардеробная. Стены окрашены в теплый оттенок F461 (по колеровке Tikkurila), на одной из стен оклеены обои фабрики Eco, коллекция Nature при разном освещении и углу осмотра на них проявляется или пропадает рисунок с ветками. Интересный эффект. Штор пока еще нет, планирую что-то в синих оттенках. На потолке светильник - блюдце Xiaomi Yeelight, который светит ярче солнца! Может менять яркость и цвет свечения (от еле заметного лунного до солнечного вырвеглазного) и подключается к системе умного дома. Еще заказал с Алика мелкие точки и звездочки, накапливающие дневной свет, и наклеил на потолок. Теперь, когда ребенок ложится спать и выключает свет, над его головой фантастическое звездное небо! Торшер и лампу на комоде сделали сами.

-515

-516
-517
-518
-519

Детская старшего ребенка. Сначала эта зона состояла из двух помещений - спальни и кладовки, но ребенок сказал: -Папа, тут здоровенное окно, я тут буду как в аквариуме, у всех на виду. Не нужна мне такая комната!

Тем более, у него переходный возраст, нужно личное пространство и спокойствие. В общем, приняли решение не делать кладовку, а отдать её площадь комнате. Получилась такая берлога, уютный закуток куда встала кровать, где никто его не увидит! Сама комната приближена к стилю "лофт", интерьер аскетичный, строится на сочетании белой, серой краски и декоративной плитки под кирпич. Лофтовые светильники у изголовья кровати и центральная люстра с теплыми лампами а ля Эдисон. Тут, часть потолка ровная, проходит под стропильными затяжками и только оставлен небольшой фрагмент у окна, уходящий наверх. Сделано это для организации ниши для штор, в противном случае, узел смотрелся бы плохо. На полу ламинат уже другой, темных оттенков - Quick Step Impressive IM1849 Дуб коричневый. И проектом предусмотрено мансардное окно над рабочим местом, но ребенок ни в какую его не захотел, пришлось отказаться. Комнатка классная вышла, еще до конца не декорирована, но ребятёнку уже очень нравится.

-520
-521
-522
-523
-524

Лестница глубина ступеней 30см., высота подъема 15см. ширина марша 1,04м. Основа отлита из монолитного ж/б. Поверх положена фанера и сделаны ступеньки из лиственницы. Я не хотел вводить в интерьер ограждения из металла или дерева и сделал их из кирпича. На первом этаже в лестничном ограждении сделан декоративный проем, что бы эта стенка не смотрелась массивной. Окраска стен в цвет F461 (по колеровке Tikkurila), ламинат Quick Step Impressive IM1847 Дуб светлый. В торцах коридора, на стенах уложена плитка с имитацией кирпича - приобретал в Леруа. Не знаю, что еще сказать про лестницу! Удобная, ничего не скрипит. При проектировании старался коридорные пространства свести к минимуму, так и получилось. Симпатичный вид открывается из окна промежуточной площадки. Светильники (с Алиэкспресс) - шары на подвесах. Их высота и положение рассчитано так, что бы не задевать ни головой ни плечами, но затаскивать крупногабаритные вещи на второй этаж приходится очень аккуратно.

-525
-526
-527
-528
-529
-530

Санузел на 2 этаже. В отличии от всех остальных помещений, оштукатурен не гипсовой, а цементной штукатуркой. В противном случае, со временем плитка может отходить от стен. Площадь рассчитана так, что бы удобно поместилось все необходимое без излишков площади. Плитку использовал - Kerama Marazzi, Английская коллекция "Сады Форбури"

-531
-532
-533
-534
-535
-536

Ну вот, обзор помещений на втором этаже закончил, можно спускаться на первый

Итак, 1 этаж.

Входная группа.

В этот раз, при проектировании я уделил ей особое внимание. В старом доме тамбур был относительно небольшой, и когда заходила компания более трех человек, начиналась теснота. Приходилось зимой долго держать открытой входную дверь, ждать, пока все скинут верхнюю одежду и пройдут дальше. А дом при этом выхолаживался. В общем, хотелось сделать этот узел удобным для приема большой компании, что бы всем хватило места под одежду и еще бы осталось! Установил в прихожей шкаф-гардероб, куда войдет пол дома, на стене при входе сделал керамическую плитку, что бы не пачкали стену руками, добавил много света. Входная дверь с верхней стеклянной фрамугой, что позволяет днем не пользоваться искусственным освещением. Из прихожей можно попасть в топочную (с улицы, так же, в неё ведет своя дверь). По отделочным материалам: окраска - Tikkurila Harmony цвет - F461, плитка - Kerama Marazzi серии Про Вуд и Про Дабл.

-537
-538
-539
-540
-541

Спальня на 1 этаже. Эту комнату мы называем "студенческой", т. к. предназначена она для наших молодых и бодрых бабушек. Комната светлая, с большим панорамным окном и видом на розарий. Хотели внести в неё немного английского уюта, немного "классики" и теплоты. Потолки с нишами, в которых спрятана подсветка, люстра с подвесками, классический молдинг, нежно-зеленые обои с листьями и выступающие элементы в цвет "топленого молока". Мебель в классическом стиле была выбрана в Икее. У комнаты имеется небольшая кладовка, которая расположена в под лестничном пространстве, кладовка, со временем, будет закрыта жалюзийными декоративными дверцами, типа комнатки Гарри Поттера.

-542
-543
-544
-545
-546
-547

Санузел на 1 этаже. По площади и функционалу точно такой же, как и на втором. Единственное, вместо ванной, в нем установлена душевая кабина. Керамическая плитка на стенах испанской фабрики APE Ceramica серии Globe

-548
-549
-550
-551
-552

Гостиная - сердце дома. Никак не мог удержаться и накрутил в ней сложные потолки, зонирующие пространство. Потолки композиционно связаны со стенами, форма камина, например, формируется из горизонтального ригеля над проходом в кухню и вертикальным объемом, зажатым кирпичной кладкой. В комнате много световых групп, свет можно легко подстроить под настроение и время суток. Цветовые решения строил на контрасте темного и светлого. Хотел сделать интересную, объемную пластику стен. За диваном, выступающий короб образует паспорту вокруг светлой кирпичной кладки, ниша вокруг короба заполнена темными обоями с цветочным рисунком. Короче, хотел сделать что-то необычное и интересное! По отделочным материалам: окраска стен - матовая краска Tikkurila Harmony цвет - белый и F461, обои в нише за диваном - бельгийские, фабрики Khroma, коллекция Roots, темные обои в коридоре - нидерландские, фабрики Eijffinger, коллекция Lino. Светлый кирпич на стене за диваном из Леруа, напольные покрытия - ламинат Quick Step Impressive IM1847 Дуб светлый. Потолочные балки из полиуретана фабрики Декоса, серия рустик темный дуб 12х12. Стоит пару слов сказать по окнам: расположил их так, что бы они тоже работали на интерьер комнаты. Высокое окно "в пол" (возле камина) открывает вид на сад и образует часть (не знаю, как сказать) - обзорной группы с дивана. Т. е. сидя на диване можно видеть и горящий камин и то, что происходит в саду и телевизор, в общем - куча удовольствий! Справа от дивана находятся три окна, дающие основной свет в гостиную. Они находятся с восточной стороны, поэтому, утром все залито солнечным светом. Да и вид из них интересный, на соседний храм. Поначалу планировал сделать одно большое окошко, но потом решил разбить его на три узких, так значительно веселей.

-553
-554
-555
-556
-557
-558
-559
-560

Кухня. Завершение её стоит на паузе. Вся мебель, находящаяся на кухне - временная. Проект сделан, но реализовать его при нынешних ценах я пока не в состоянии:-(По задумке, вся композиция является продолжением гостиной. Оттуда приходят потолочные балки, цветовые решения, рисунок пола тоже завязан с гостиной. Идея была поделить кухонную мебель на 2 зоны - высокие колонны и зона рабочих поверхностей. В колоннах спрячется холодильник, возможно духовой шкаф, микроволновка и место для хранения. Из других особенностей хотел отметить - окно возле мойки (это решение нравится всей семье, использую его во многих своих проектах), есть проход в отдельную кухонную кладовку и большое панорамное окно с выходом на веранду. По отделочным материалам: плитка для кухонного фартука и пола - Kerama Marazzi Коллекция «Трианон», плитка на стене возле обеденного стола - фабрики Estima, окраска стен - Tikkurila Harmony цвет F461.

-561
-562
-563
-564
-565
-566
-567
-568

Ну вот, по интерьерам вроде бы всё, неохваченных помещений не осталось.

На этом пока всё, продолжение следует!