Найти в Дзене

Индивидуальный проект дома 163 м2

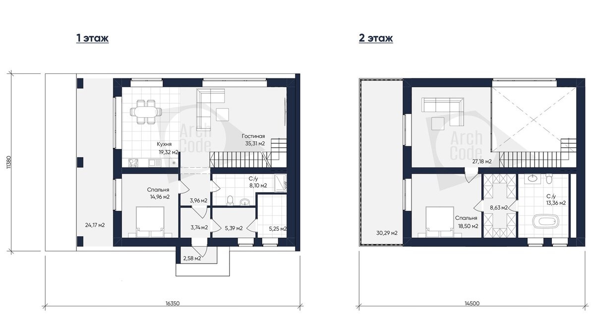
Необычный проект в стиле барн-хаус по индивидуальному заказу 👍👏 Характеристики проекта ▪️ Площадь дома - 163,7 м2 ▪️ Габаритные размеры - 16,35 х 11,38 м ▪️ Кухня-гостиная - 54,6 м2 ▪️ 2 спальни ▪️ 2 санузла ▪️ Терраса - 30,3 м2 Интересна стоимость проекта? Хотите подборку похожих проектов от наших архитекторов? С удовольствием отправим!

Необычный проект в стиле барн-хаус по индивидуальному заказу 👍👏

Характеристики проекта

▪️ Площадь дома - 163,7 м2

▪️ Габаритные размеры - 16,35 х 11,38 м

▪️ Кухня-гостиная - 54,6 м2

▪️ 2 спальни

▪️ 2 санузла

▪️ Терраса - 30,3 м2

-2

Интересна стоимость проекта? Хотите подборку похожих проектов от наших архитекторов? С удовольствием отправим!