Найти в Дзене
Филдс

Необычные обои и этно-детали: как дизайнер оформила однушку 48 м², которую хочется рассматривать

Дизайнер Юлия Веселова оформила однокомнатную квартиру 48 м² для девушки. Заказчица любит путешествовать, поэтому в интерьере много этнических деталей — многие предметы привезли из других стран. Планировка Кухня На стенах в кухне скомбинировали краску и обои с принтом, на пол уложили паркет. Зону фартука закрыли прозрачным стеклом, чтобы избежать композиционного дробления пространства. Спальня Стены в спальне полностью оклеили обоями. Для карнизов, плинтусов и межкомнатной двери выбрали более тёмный оттенок, чтобы добавить контраст. Изюминкой интерьера стало резное деревянное изголовье кровати — это ширма, которую дизайнер привезла из Индии. А ковёр нашли в Тунисе. Прихожая Нейтральные стены в прихожей разбавили яркими зелёными фасадами встроенного шкафа. Особый шарм придают этнические детали — африканский барабан и большое марокканское зеркало в массивной раме. Санузел В санузле скомбинировали несколько видов плитки: на полу — керамогранит под бетон, на стене за чашей ванны и н
Оглавление

Дизайнер Юлия Веселова оформила однокомнатную квартиру 48 м² для девушки. Заказчица любит путешествовать, поэтому в интерьере много этнических деталей — многие предметы привезли из других стран.

  • Общая площадь: 48 м²
  • Место: Москва
  • Тип дома: ЖК «Родной город. Октябрьское Поле»
  • Количество комнат: 1
  • Высота потолка: 2,9 м
  • Кто здесь живет: девушка
  • Дизайнер: Юлия Веселова
  • Фото: Михаил Чекалов

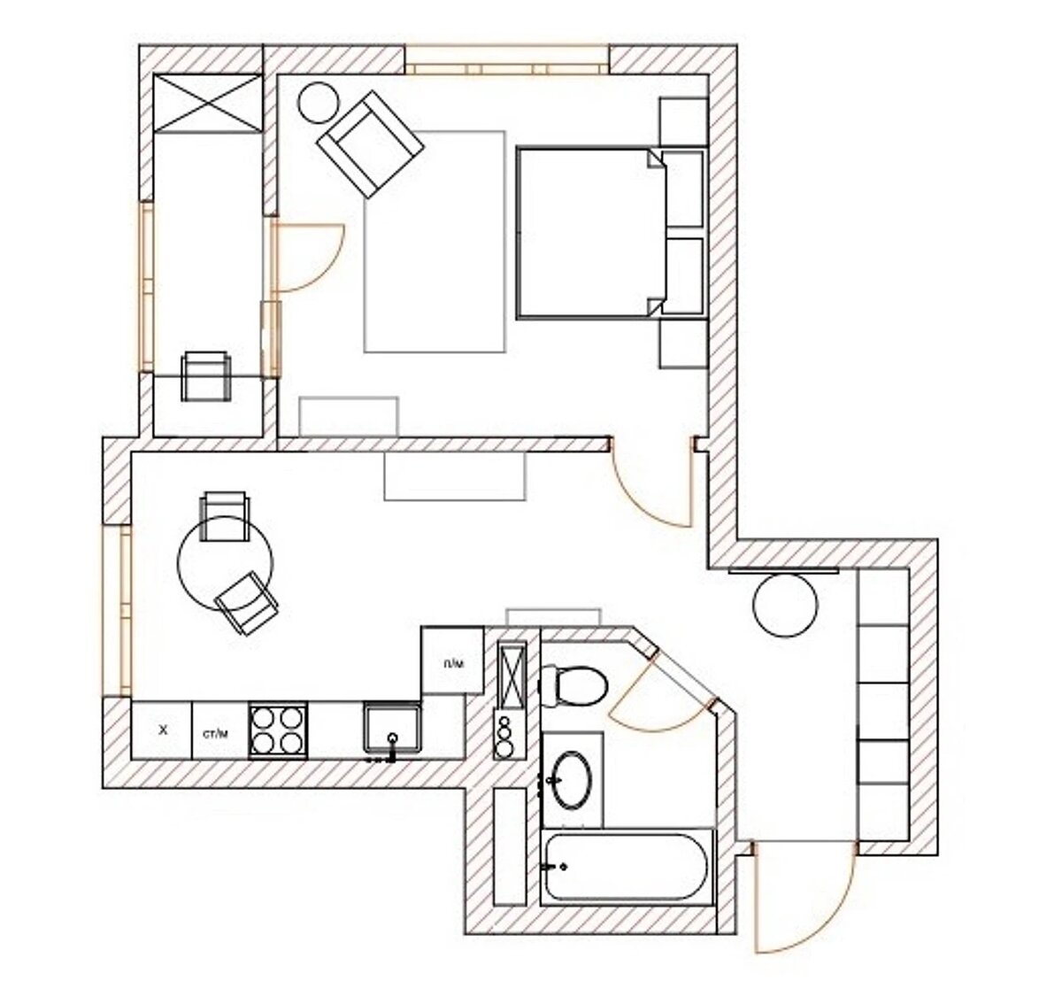
Планировка

Квартира сдавалась без перегородок, но имелся план, рекомендованный застройщиком. В целом его придерживались, но без изменений не обошлось — заложили проём из кухни на лоджию, а санузел увеличили за счёт коридора.
Квартира сдавалась без перегородок, но имелся план, рекомендованный застройщиком. В целом его придерживались, но без изменений не обошлось — заложили проём из кухни на лоджию, а санузел увеличили за счёт коридора.

Кухня

На стенах в кухне скомбинировали краску и обои с принтом, на пол уложили паркет. Зону фартука закрыли прозрачным стеклом, чтобы избежать композиционного дробления пространства.

Спальня

Стены в спальне полностью оклеили обоями. Для карнизов, плинтусов и межкомнатной двери выбрали более тёмный оттенок, чтобы добавить контраст. Изюминкой интерьера стало резное деревянное изголовье кровати — это ширма, которую дизайнер привезла из Индии. А ковёр нашли в Тунисе.

Прихожая

Нейтральные стены в прихожей разбавили яркими зелёными фасадами встроенного шкафа. Особый шарм придают этнические детали — африканский барабан и большое марокканское зеркало в массивной раме.

Санузел

В санузле скомбинировали несколько видов плитки: на полу — керамогранит под бетон, на стене за чашей ванны и на экране — плитка с рельефным рисунком, остальные стены отделали светло-голубой керамикой. Добавить теплоты помогают деревянная тумба и льняная шторка для ванны.

Интересные мнения в комментариях приветствуются. Если материал понравился — ставь лайк!

Филдс это не только блог на Дзене, но и магазин дизайнерской мебели. Дарим 3000 ₽ на первую покупку. Заходите на сайт и выбирайте мебель, которую используют дизайнеры в своих проектах.