Добавить в корзинуПозвонить
Найти в Дзене
Art-line-design.ru

КАКОЙ ПРОЕКТ НУЖЕН ДЛЯ ВАШЕГО РЕМОНТА - ДИЗАЙНЕРСКИЙ ИЛИ ИНЖЕНЕРНЫЙ?

Наверняка вы знаете, что при проведении масштабного ремонта лучше всего иметь на руках и дизайнерский, и инженерный проект. Но это в теории, а на практике всё равно возникают вопросы. В каких случаях нужны оба проекта? Можно ли работать только по одному из них? И какой проект стоит заказать конкретно вам? Чтобы ответить на этот вопрос, давайте разберёмся, чем отличаются эти два комплекта документации, и для чего нужен каждый из них. ЧЕМ ОТЛИЧАЕТСЯ ДИЗАЙН-ПРОЕКТ ОТ ИНЖЕНЕРНОГО? Дизайнерский проект представляет собой творческую сторону ремонта. Он включает в себя: Инженерный проект – это сугубо техническое решение. Он отвечает за скрытые коммуникации - водоснабжение, электричество, канализацию, вентиляцию, отопление. При подготовке к ремонту в первую очередь создаётся дизайнерский проект. Он помогает понять, где будут располагаться влажные зоны – раковины, ванна, унитаз, а где – розетки и выключатели. Где должны находиться радиаторы отопления, а где – тёплые полы. И уже потом, на основан
Оглавление

Наверняка вы знаете, что при проведении масштабного ремонта лучше всего иметь на руках и дизайнерский, и инженерный проект. Но это в теории, а на практике всё равно возникают вопросы. В каких случаях нужны оба проекта? Можно ли работать только по одному из них? И какой проект стоит заказать конкретно вам?

Чтобы ответить на этот вопрос, давайте разберёмся, чем отличаются эти два комплекта документации, и для чего нужен каждый из них.

ЧЕМ ОТЛИЧАЕТСЯ ДИЗАЙН-ПРОЕКТ ОТ ИНЖЕНЕРНОГО?

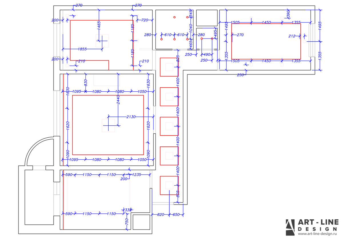
Дизайнерский проект представляет собой творческую сторону ремонта. Он включает в себя:

  • планировочное и визуально-цветовое решения – для отдельных комнат или всей квартиры,
  • планы расположения светильников, розеток, выключателей,
  • эскизы индивидуальной корпусной мебели,
  • подборку напольных и потолочных покрытий, а также других материалов, которые требуются для ремонта.
План расположения светодиодной подсветки потолка.
План расположения светодиодной подсветки потолка.
3D визуализация интерьера
3D визуализация интерьера

Инженерный проект – это сугубо техническое решение. Он отвечает за скрытые коммуникации - водоснабжение, электричество, канализацию, вентиляцию, отопление.

-3

При подготовке к ремонту в первую очередь создаётся дизайнерский проект. Он помогает понять, где будут располагаться влажные зоны – раковины, ванна, унитаз, а где – розетки и выключатели. Где должны находиться радиаторы отопления, а где – тёплые полы. И уже потом, на основании этих данных, специалисты составляют инженерный проект вашего дома или квартиры. Они решают, какие узлы и соединения нужно предусмотреть в скрытых коммуникациях, и как всё это смонтировать, чтобы результат соответствовал необходимым нормам.

Как видите, оба проекта отличаются по своему содержанию и выполняют совершенно разные задачи.

ТАК МОЖНО ЛИ ОБОЙТИСЬ БЕЗ КАКОГО-ТО ОДНОГО ИЗ НИХ?

Как проходит ремонт без дизайнерского проекта

Представьте, что вы решили отказаться от дизайн-проекта. В этом случае все визуальные моменты вам приходится прорабатывать самостоятельно. Как будет выглядеть квартира после ремонта, где будут находиться розетки и выключатели, какие материалы и мебель нужно будет купить – всё это вы держите в голове. И на этой основе как-то планируете свои расходы и объясняетесь с бригадой ремонтников.

Согласитесь, так работать сложно и неудобно.

Дизайн-проект даёт сразу несколько плюсов. Он помогает избежать ошибок, экономит время, нервы и деньги. И, конечно, с ним вы получаете уверенность, что после ремонта квартира будет выглядеть так, как вы задумали.

А нужен ли вам инженерный проект?

На самом деле, без инженерного проекта тоже можно работать, но только если вы делаете простой ремонт. В этом случае прораб составит приблизительный инженерный план и начнёт работать по нему.
Во всех остальных случаях вам понадобится полноценный проект. Дело в том, что даже опытный дизайнер не может охватить все тонкости инженерии. И если вам нужно продумать сложную систему электроснабжения или вентиляции, то дизайнер будет работать в связке с инженерами. А прежде чем приступить к работе, с проектом необходимо будет ознакомить инженеров управляющей компании.

Пример вентиляции инженерного проекта
Пример вентиляции инженерного проекта
Пример подачи водоснабжения в инженерном проекте
Пример подачи водоснабжения в инженерном проекте
Перспективное изображений элементов инженерного проекта
Перспективное изображений элементов инженерного проекта

Вот типичный пример.

Ваша квартира находится на оживлённой улице, и вы уже устали от постоянного шума. Но если объединить систему вентиляции и кондиционирования, то вам не придётся открывать окна для проветривания. Воздух будет попадать в квартиру через специальные фильтры, и таким же способом будет выходить обратно. Предложить эту идею может дизайнер, но только инженеры могут грамотно спроектировать и воплотить её на практике.

Важно, что при этом инженеры не придумывают ничего нового - они только предлагают решение проблемы, заложенное в дизайн-проекте.