Найти в Дзене
ПЛАНОБЗОР

Двухэтажный дом с хорошей планировкой

Всем привет! Сегодня решил продолжить знакомство с каналом Планируем дом | Архитектор и их проектами. В прошлой статье мы уже посмотрели на один из их проектов, который получился весьма не плохим, но не совсем бюджетным в том виде, в котором его представили авторы. В этой статье рассмотрим проект дома, который авторы называют "Бюджетным проектом на зависть соседям". Зависть соседей нас конечно не интересует, а вот на внешность и комфорт дома пожалуй взглянем. О проекте Дом выполнен в двухэтажном исполнении. Второй этаж представлен в виде полумансарды (мансарда с приподнятыми стенами). Площадь дома 148 м2 - средний по площади дом. К дому пристроена терраса. В состав помещений дома вошли топочная, санузлы, гостиная и кухня, кабинет, три спальни и даже кладовка при кухне и прачечная - неплохо для 148ми "квадратов". Внешний вид Дом симпатичен внешне, скромен и достаточно прост. Отделка фасадов скромна, но бюджетной назвать нельзя - штукатурные работы одни из самых недешёвых. Материал от
Оглавление

Всем привет!

Сегодня решил продолжить знакомство с каналом Планируем дом | Архитектор и их проектами. В прошлой статье мы уже посмотрели на один из их проектов, который получился весьма не плохим, но не совсем бюджетным в том виде, в котором его представили авторы.

В этой статье рассмотрим проект дома, который авторы называют "Бюджетным проектом на зависть соседям". Зависть соседей нас конечно не интересует, а вот на внешность и комфорт дома пожалуй взглянем.

О проекте

Дом выполнен в двухэтажном исполнении. Второй этаж представлен в виде полумансарды (мансарда с приподнятыми стенами). Площадь дома 148 м2 - средний по площади дом. К дому пристроена терраса.

В состав помещений дома вошли топочная, санузлы, гостиная и кухня, кабинет, три спальни и даже кладовка при кухне и прачечная - неплохо для 148ми "квадратов".

Внешний вид

Дом симпатичен внешне, скромен и достаточно прост. Отделка фасадов скромна, но бюджетной назвать нельзя - штукатурные работы одни из самых недешёвых. Материал отделки в уровне второго этажа распознать на картинке нельзя - если отделочный кирпич, то тоже недешевая отделка, если виниловый сайдинг, то уже бюджетно.

Крыша дома полувальмовая, но есть и двускатные элементы. Такой крышей авторы, видимо, хотели как бы "приземлить" дом, сделать его визуально чуть ниже, но не учли, что такая крыша выйдет дороже в плане возведения конструкций. К тому же действительно требует снегозадержания, хоть без него и можно обойтись и просто помнить, что под крышей ходить после снегопадов и в дождь нельзя. Двускатная крыша тут подошла бы больше, позволив владельцу сэкономить на пиломатериале, снегозадержании и покрытии кровли, избежав перерасхода в виде обрезков материала, при этом стал бы дом выглядеть хуже? Безусловно нет.

Также прибавкой к бюджету на строительство послужат и "выступы" стен с двускатной крышей над ними над лестницей (на правом фасаде) и в районе спален (на левом фасаде). Этих выступов также можно было избежать - высоты в районе лестницы достаточно чтобы не упереться при подъеме в скат крыши, а в спальнях - ну скажем так им применения не нашлось, а вот образование снеговых мешков в стыке крыш избежать не удастся. Но надо заметить, эти элементы добавляют "жизни" фасадам.

Над крыльцом предусмотрена трехскатная крыша. Сама по себе крыша - это безусловно плюс, но вот её скат направлен в сторону ступеней. Снегозадержание тут конечно лишнее - площадь крыши и ее угол наклона не позволят снегу накапливаться в больших количествах и сойти лавиной на головы - он тут будет итак небольшими порциями падать вниз, а вот водосточный желоб по краю козырька тут необходим.

Со стороны заднего и правого фасада предусмотрена терраса, покрытая трехскатной крышей. Снегозадержатель и тут лишний - угол наклона тут небольшой, снег будет либо лежать и не сходить, либо его будет сдувать (но скорее всего первое и придется иногда работать лопатой), а водосточка и тут не помешает.

Планировка

Первый этаж

Первый этаж в доме - активная (дневная) зона.

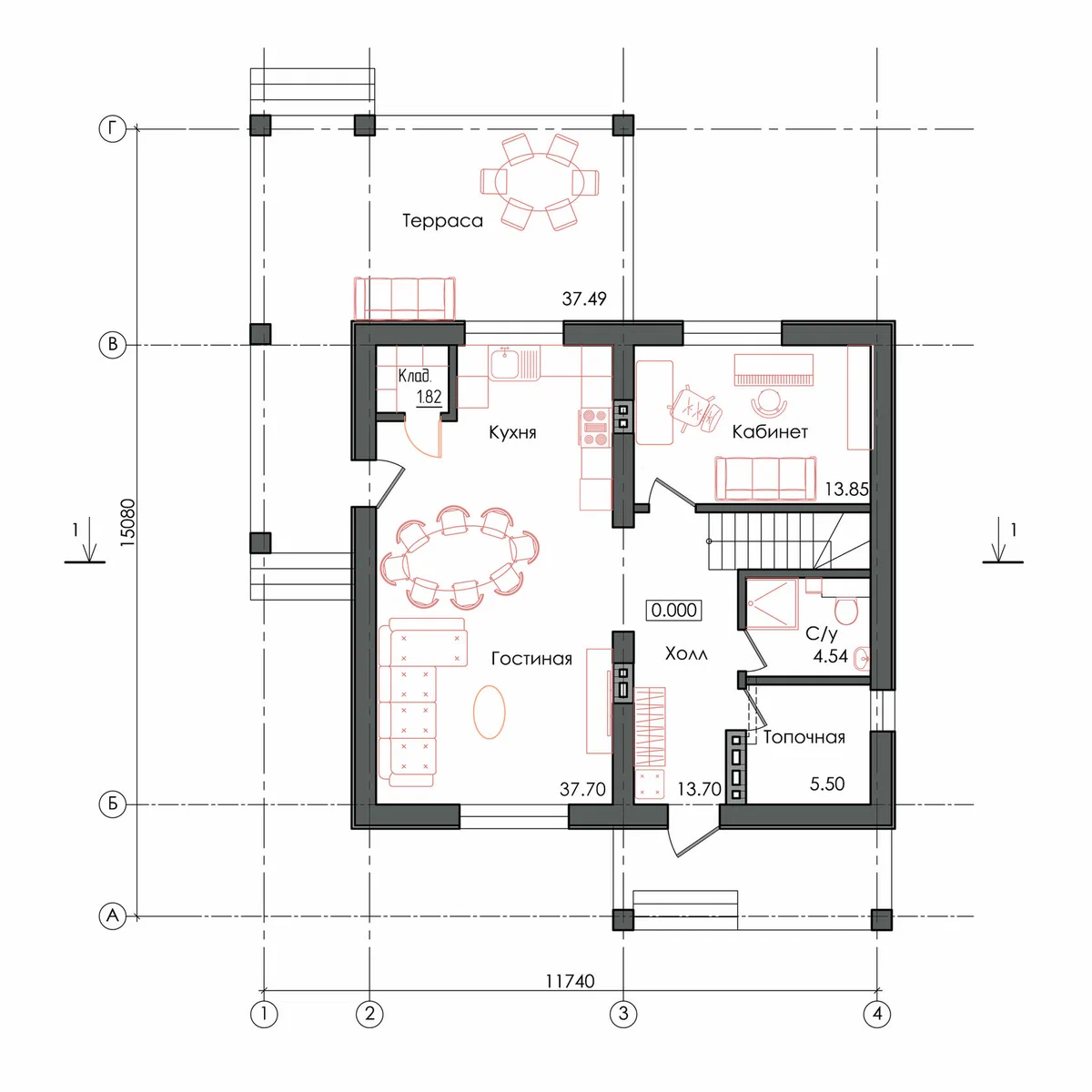
План первого этажа. Источник изображения: Дзен-канал " Планируем дом | Архитектор"
План первого этажа. Источник изображения: Дзен-канал " Планируем дом | Архитектор"

Дом встречает нас просторным холлом площадью 13,7 м2 - он же и прихожая. Тамбура, увы, тут не предусмотрено, хотя его можно было организовать, продлив перегородку между санузлом и топочной до несущей центральной стены дома - получился бы хороший просторный тамбур-прихожая. Тамбур не будет тут лишним - он позволит не проходить в обуви дальше определенной зоны и не заносить туда грязь. Кроме того, устройство тут тамбура позволит в тех местах где нет газа использовать в доме твердотопливный котел, служа неким шлюзом для предотвращения проникновения пыли в дом.

Топочная (котельная) имеет площадь 5,5 м2 - хорошая площадь и для размещения газового котла и твердотопливного. Поместится тут и прочее необходимое оборудование. В случае использования твердотопливного котла тут необходимо будет предусмотреть отдельный выход на крыльцо. Кстати, окно тут стоило бы разместить на стену главного фасада - это положительно сказалось бы на его внешнем виде. В случае использования в качестве топлива газ или электричество, в топочной можно обустроить неплохую гардеробную.

Чуть глубже от входа по холлу расположен санузел с неплохой площадью 4,54 м2. Площадь санузла хорошая, а вот расположение... Санузел расположен под лестницей - высота под ступенями в санузле начинается с +/- 1,87 метра (если учесть высоту этажа 3,4 метра и высоту степеней в таком случае 1,7 метра), и унитаз стоит как раз в таком месте - велик риск стукнуться головой о косоуры, которые располагаются ниже ступеней - высота от пола до косоуров в таком месте будет +/- 1,65-1,72 метра. Установка душевой кабины под лестницей тоже под большим вопросом. Я бы рекомендовал тут уменьшить санузел, оставив тут только унитаз и раковину, а освободившееся под лестницей место использовать под дополнительную кладовую. Еще было бы не лишним в санузле окно, хотя бы небольшое под потолком - это удобно, когда не зависишь от света (проверено на личном опыте).

Прямо по холлу неплохой кабинет с площадью 13,85 м2. При необходимости тут можно и гостей разместить (или переделать кабинет в гостевую) - площадь хорошая и достаточная.

Кухня и гостиная тут совмещены - общая площадь 37,7 м2. Вполне хорошая площадь. Зоны кухни и гостиной тут удобны. Между ними расположилась зона столовая. Авторы представили зону столовой большим столом на восемь персон, но тут все же лучше поставить стол поменьше - максимум на 6 человек (размерами +/- 0,8х1,2-1,4 метра - увеличить количество посадочных мест всегда можно, а вот уменьшить размер стола, что не мешался, нет. В кухне предусмотрена небольшая кладовая, площадью 1,82 м2 - хорошее решение. Из кухни предусмотрен выход на террасу. Кухня, как мокрая зона, отнесена от других мокрых зон на приличное расстояние, а это увеличение стоимости прокладки инженерных сетей.

Второй этаж

Второй этаж дома - тихая (ночная) зона, с небольшим дополнением.

План первого этажа. Источник изображения: Дзен-канал " Планируем дом | Архитектор"
План первого этажа. Источник изображения: Дзен-канал " Планируем дом | Архитектор"

На второй этаж веден не совсем удобная, но светлая, благодаря окну (и это весомый плюс), лестница. Лестница неудобна своими забежными ступенями, хотя при увеличении высоты ступеней их можно избежать.

Поднявшись на второй этаж мы попадаем в холл площадью 6,85 м2. Здесь светло из-за все того же лестничного окна. Холл ведет в одно из пяти помещений этажа.

На втором этаже расположено три спальни. Площади спален 16,57, 22,68 и 13,85 м2. Площади спален хороши и достаточны. Спальня площадью 22,68 м2 скорее всего рассчитана на родителей. В левом нижнем углу тут можно было бы отделить гардероб - как раз пригодилось бы окно в том выступе под двускатной крышей, либо, в случае организации на первом этаже гостевой вместо кабинете, небольшую рабочую зону, отделив от зоны спальни перегородкой. Спальни поменьше тут рассчитаны на детей - кому достанется спальня поменьше пускай решает жребий. Или возраст. Но каждая из них достаточна по площади.

На втором этаже предусмотрено помещение прачечной, площадью 3,19 м2. Тут предусмотрены стиральная и сушильная машины, а также гладильная доска. Тут немного тесновато, но вполне комфортно, к тому же есть окно. Санузел второго этажа ожидаемо больше, чем на первом, его площадь 8,19 м2. Расположен санузел над котельной и частью санузла первого этажа - хорошее расположение и не нужно дополнительных стояков. Площадь хороша, но на мой взгляд с излишком. Тут бы как раз и поставить стиральную и сушильную машины - места достаточно, а в прачечной можно было бы организовать небольшую кладовую-гардероб. Гладильная доска в гардероб тоже вошла бы - получился бы следующий сценарий использования: постирал в санузле и высушил, в гардеробе-кладовой все погладил и тут же разложил по полкам, откуда, в случае и по мере необходимости, каждый член семьи и забирал бы свои вещи/белье.

Итог

Вышел вполне симпатичный внешне и удобный, а главное комфортный, внутри дом. Если не считать возможных трудностей с санузлом и отсутствие тамбура.

Площади помещений хороши, их расположение удобное и грамотное. Предусмотрены дополнительные, улучшающие жизнь, помещения, которые не часто встретишь и в домах побольше.

Постскриптум

Дам авторам этого проекта немного передохнуть и переключусь на других, которые продолжают выкладывать новые и вспоминать старые проекты на своих каналах.

Ну и дадим слово авторам проекта, которым, я думаю, найдется что добавить. Свое слово они смогут высказать в виде комментария, который я непременно закреплю.

#архитектура #проект #проектирование #дома #дизайн #обзор #частный дом #частные дома #жилой дом #жилые дома