Добавить в корзинуПозвонить
Найти в Дзене
ProBIM

RENGA. КМ. ч1. Исходные данные, оси и уровни

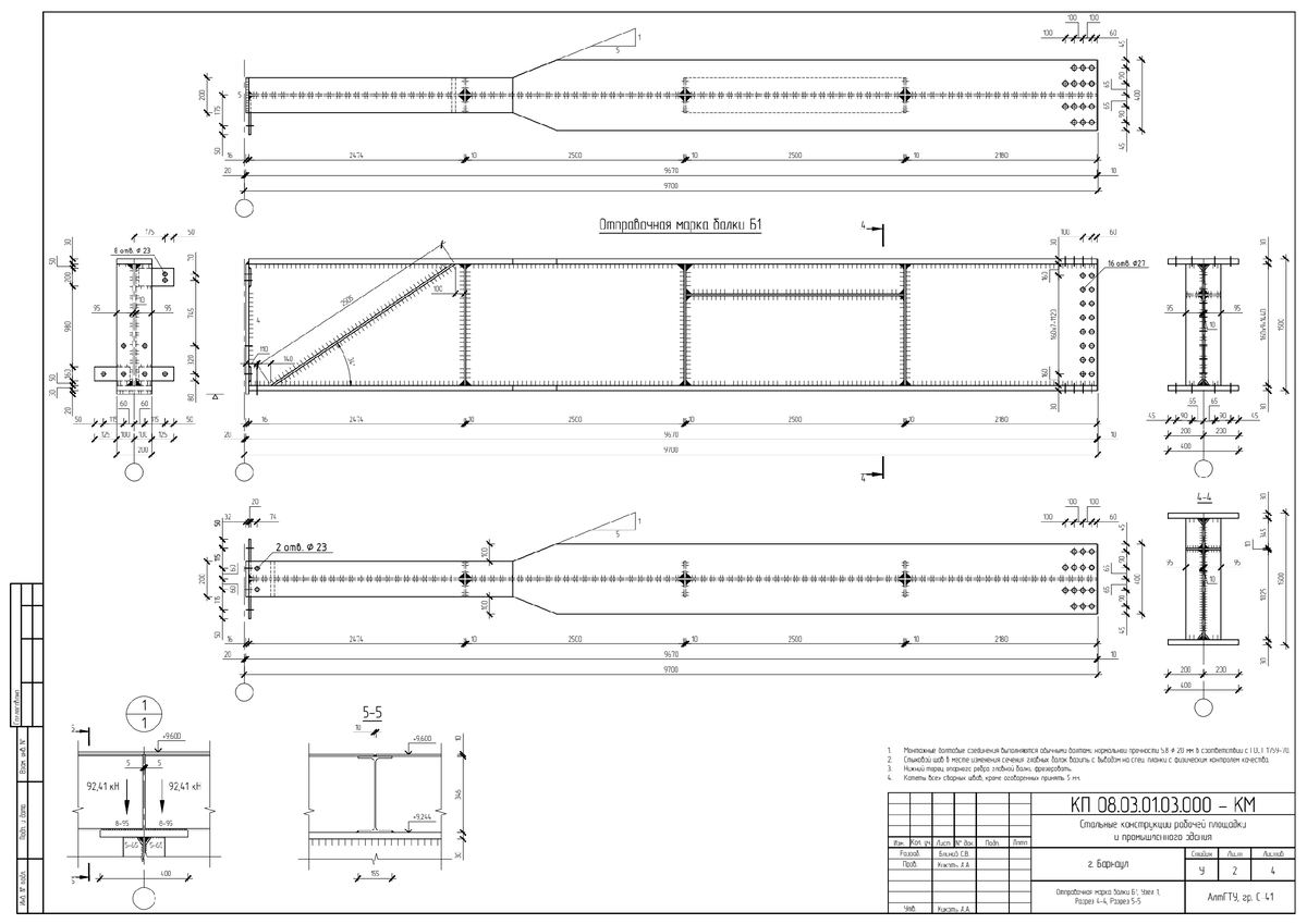
Небольшая серия материалов в который мы попробуем создать проект КМ в Renga и разберемся: какой он "отечественный BIM". В качестве примера выберем стандартную рабочую площадку, которые сотнями и тысячами проектирую на своих первых (а ныне единственных, спасибо ФГОС 3++) курсовых проектах по металлическим конструкциям студенты ВУЗов по специальностям ПГС и СУЗ. Скажу сразу, я не сторонник Renga по двум причинам: Так что я не буду стесняться в том что бы выделять и подчеркивать все неудобные и недоработанные моменты. Исходные данные Ниже представлены чертежи, на основе которых будет разработана информационную модель. Оси и уровни С чего должен начинаться любой чертеж? Правильно! С осей. Тут отечественные разработчики не придумали ничего особенного. Оси представляют собой линию по указанным точкам. Однако и подсматривать решения у иностранных коллег наши разработчики не стали, а потому корректировать длины осей и их наименования придется вручную. Это, конечно, мелочи, но дьявол кроется в
Оглавление

Небольшая серия материалов в который мы попробуем создать проект КМ в Renga и разберемся: какой он "отечественный BIM".

В качестве примера выберем стандартную рабочую площадку, которые сотнями и тысячами проектирую на своих первых (а ныне единственных, спасибо ФГОС 3++) курсовых проектах по металлическим конструкциям студенты ВУЗов по специальностям ПГС и СУЗ.

Скажу сразу, я не сторонник Renga по двум причинам:

  1. Оно объективно не готово к реальному проектированию. Можете считать это моим субъективным мнением. Свое мнение вы сможете сформировать самостоятельно прочитав изложенные ниже материалы или на собственном опыте.
  2. Маркетинг компании построен на аксиоме "Если у нас нет какой-то функции, то эта функция вам не нужна". Тут хоть лоб разбей. Сколько бы пользователи не говорили о недостаче функционала, от совершенно базовых вещей как нормальная совместная работа или видовой куб, до специфики отдельных разделов как метизы или сварные швы по линии - ответ всегда один. "Сами вы дураки, мы тут подумали и решили, что вам это не нужно".

Так что я не буду стесняться в том что бы выделять и подчеркивать все неудобные и недоработанные моменты.

Исходные данные

  • Размеры площадки 18x54 м;
  • Высота отметки настила +9,600 м;
  • Отметка базы колонны -0,600 м;
  • Тип балочной клетки - нормальный;
  • Настил выполнен из листов толщиной 10 мм по ГОСТ 19903-2015;
  • Балки настила из прокатных двутавров 35Б1 по ГОСТ Р 57837-2015;
  • Главные балки из сварных двутавров из листов по ГОСТ 19903-2015 с изменением сечения по длине;
  • Колонны составные коробчатого сечения из прокатных швеллеров 36П по ГОСТ 8240-97;
  • Связи и распорки из спаренных в тавр равнополочных уголков сечением 140x9 и 80x5 по ГОСТ 8509-93.

Ниже представлены чертежи, на основе которых будет разработана информационную модель.

Оси и уровни

С чего должен начинаться любой чертеж? Правильно! С осей. Тут отечественные разработчики не придумали ничего особенного. Оси представляют собой линию по указанным точкам. Однако и подсматривать решения у иностранных коллег наши разработчики не стали, а потому корректировать длины осей и их наименования придется вручную. Это, конечно, мелочи, но дьявол кроется в деталях.

-2

Со старта в модели присутствует один уровень. Для того что бы разместить новый уровень необходимо указать его смещение относительно имеющегося в модели. Вариант в целом не плохой, но, увы, единственный. Задать положение уровня указав его абсолютную отметку нельзя. В нашем случае это не критично. На первый взгляд нам понадобиться лишь два новых уровня: база колонн и верх настила, а вот если стоит задача расставить уровни для конструкции более сложной формы или с неудобными высотными отметками лучше иметь под рукой калькулятор, ну или научиться быстро вычислять в уме. Тот случай, когда скорость работы в программном обеспечении зависит от ваших когнитивных способностей.

-3

Для начала - хватит. В следующей статье построим стержневые элементы системы воспринимающей вертикальные нагрузки. Подписывайтесь, что бы ничего не пропустить.