Добавить в корзинуПозвонить
Найти в Дзене

Бюджетный проект дома на зависть соседям

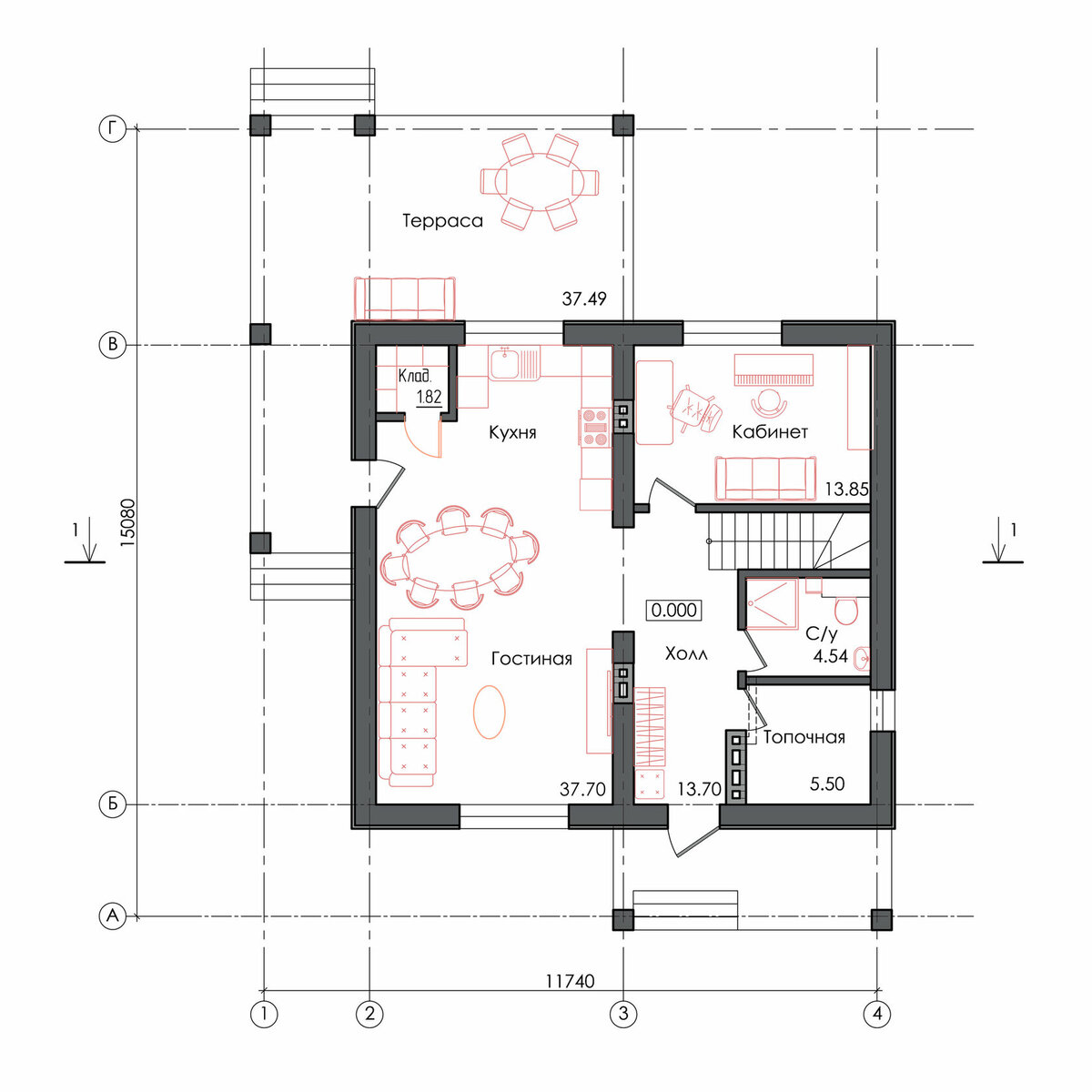
Простой, но очень удобный для жизни дом 148 м2. Довольно просторные кухня-гостиная-столовая - 37.7 м2. В зоне кухни поместилась даже небольшая кладовая, необходимая в загородном доме для хранения запасов. На первом этаже есть гостевая комната/кабинет, санузел с душевой и топочная, где разместится всё инженерное оборудование. Лестница на второй этаж с удобными ступенями. Наверху расположены 3 просторных спальни: 22.68, 16.57 и 13.85 м2. Есть постирочная комната, где поместится даже гладильная доска и сушилка для белья. Просторная ванная с окном. Отапливаемая площадь - 148,44 кв.м.
Общая площадь - 166,84 кв.м. Более подробно вы можете ознакомиться с проектом на сайте. Также возможно внесение изменений в данный типовой дом Не забывайте про лайк, это важно для продвижения❤️ #проектдома #небольшойдом #проектнебольшогодома #небольшиедома #архитектор #пландома #обзорпроекта #доммечты #загороднаяжизнь
Фасад дома
Фасад дома

Простой, но очень удобный для жизни дом 148 м2. Довольно просторные кухня-гостиная-столовая - 37.7 м2. В зоне кухни поместилась даже небольшая кладовая, необходимая в загородном доме для хранения запасов.

На первом этаже есть гостевая комната/кабинет, санузел с душевой и топочная, где разместится всё инженерное оборудование. Лестница на второй этаж с удобными ступенями. Наверху расположены 3 просторных спальни: 22.68, 16.57 и 13.85 м2. Есть постирочная комната, где поместится даже гладильная доска и сушилка для белья. Просторная ванная с окном.

План 1 этажа
План 1 этажа
План 2 этажа
План 2 этажа

Отапливаемая площадь - 148,44 кв.м.
Общая площадь - 166,84 кв.м.

Более подробно вы можете ознакомиться с проектом на сайте.

Также возможно внесение изменений в данный типовой дом

Не забывайте про лайк, это важно для продвижения❤️

#проектдома #небольшойдом #проектнебольшогодома #небольшиедома #архитектор #пландома #обзорпроекта #доммечты #загороднаяжизнь