Добавить в корзинуПозвонить
Найти в Дзене

Небольшой элегантный дом с французским балконом, камином и вторым светом |159 м2

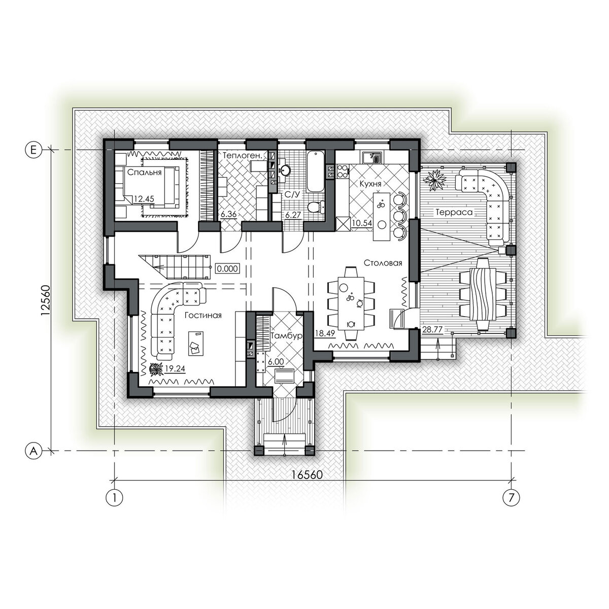
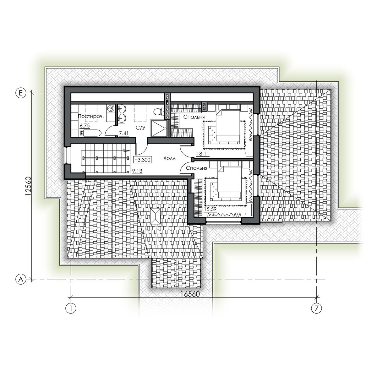
Этот проект имеет все атрибуты уютного и удобного дома: • светлая гостиная с камином и вторым светом; • кухня-столовая с выходом на террасу. Кухонный остров в кухне, большой стол на 8 персон в зоне столовой; • просторный тамбур с окном. Предусмотрено место, чтобы присесть; • большая ванная с окном; • отдельная котельная для инженерного оборудования с функцией хранения; • спальня/кабинет на первом этаже; • удобная лестница с межэтажной площадкой; • отдельная постирочная комната; • 2 просторные спальни, одна из которых с французским балконом. Гардеробная; • санузел; Отапливаемая площадь - 159.24 кв. м
Общая площадь - 181.32 кв. м (в том числе терраса 28.77 кв.м) Посмотреть подробнее, задать вопросы, заказать проект можно на сайте Не забывайте поставить лайк, это помогает в продвижении канала❤️ #частный дом #дом мечты #проектдомас3спальнями #второйсвет #дом с камином #домсбалконом #пландома #загородныйдом #коттеджныйпосёлок #архитектор
Главный фасад дома
Главный фасад дома

Этот проект имеет все атрибуты уютного и удобного дома:

• светлая гостиная с камином и вторым светом;

• кухня-столовая с выходом на террасу. Кухонный остров в кухне, большой стол на 8 персон в зоне столовой;

• просторный тамбур с окном. Предусмотрено место, чтобы присесть;

• большая ванная с окном;

• отдельная котельная для инженерного оборудования с функцией хранения;

• спальня/кабинет на первом этаже;

• удобная лестница с межэтажной площадкой;

• отдельная постирочная комната;

• 2 просторные спальни, одна из которых с французским балконом. Гардеробная;

• санузел;

Отапливаемая площадь - 159.24 кв. м
Общая площадь - 181.32 кв. м (в том числе терраса 28.77 кв.м)

Посмотреть подробнее, задать вопросы, заказать проект можно на сайте

Не забывайте поставить лайк, это помогает в продвижении канала❤️

#частный дом #дом мечты #проектдомас3спальнями #второйсвет #дом с камином #домсбалконом #пландома #загородныйдом #коттеджныйпосёлок #архитектор