Добавить в корзинуПозвонить
Найти в Дзене

Кухня-гостиная для айтишника из Москвы

Как обустраивает интерьер молодой специалист из IT-сферы в своей новой квартире в Москве и сколько стоит его диван. Визуализация и фото товаров. Об объекте Квартира в жилом доме, кухня-гостиная занимает площадь 24 кв.м. и выходит окнами на северо-запад. Высота потолка 2855 мм. Нюанс: разные по ширине окна в зонах. Проблемное место: огромный вент-канал. О заказчике Игорь, 30 лет. Имея собственный бизнес в IT-сфере, Игорю часто приходится работать из дома. В свободное от работы время увлекается чтением, просмотром качественного кино и прослушиванием атмосферной музыки. Гости бывают довольно часто, обычно 3-5 человек, максимум 8, но в таком количестве довольно редко. Практически не готовит, но на будущее необходима полноценная кухня. Есть домашнее животное лабрадор Мегги. Любимые цвета: серый, синий, черный. В отделке отдает предпочтение натуральным материалам: металл, камень, дерево. Планировочное решение и визуализация. Помещение поделено на две части простенком, плита электрическая,
Оглавление

Как обустраивает интерьер молодой специалист из IT-сферы в своей новой квартире в Москве и сколько стоит его диван. Визуализация и фото товаров.

Об объекте

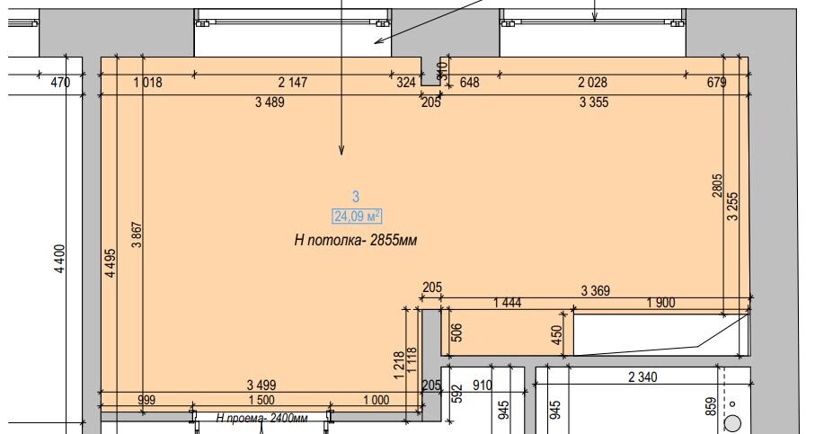
Квартира в жилом доме, кухня-гостиная занимает площадь 24 кв.м. и выходит окнами на северо-запад. Высота потолка 2855 мм.

Нюанс: разные по ширине окна в зонах.

Проблемное место: огромный вент-канал.

План до
План до

О заказчике

Игорь, 30 лет.

Имея собственный бизнес в IT-сфере, Игорю часто приходится работать из дома. В свободное от работы время увлекается чтением, просмотром качественного кино и прослушиванием атмосферной музыки. Гости бывают довольно часто, обычно 3-5 человек, максимум 8, но в таком количестве довольно редко. Практически не готовит, но на будущее необходима полноценная кухня. Есть домашнее животное лабрадор Мегги.

Любимые цвета: серый, синий, черный.

В отделке отдает предпочтение натуральным материалам: металл, камень, дерево.

Заказчик отказался предоставлять свое фото для статьи, поэтому картинка взята с сайта 123rf.com
Заказчик отказался предоставлять свое фото для статьи, поэтому картинка взята с сайта 123rf.com

Планировочное решение и визуализация.

План после
План после

Помещение поделено на две части простенком, плита электрическая, поэтому перегородки между зонами не требуется. Перепланировки и переносов зон не производилось, единственное, что необходимо будет добавить при стройке, это нарастить стену - выделено зеленым - для того, чтобы полностью вписать часть кухонного гарнитура с духовым шкафом.

Материал пола по всему помещению - паркетная доска.

Вся краска в помещениях производства Tikkurila, цвета X491 Герцог(акцент в гостиной) и H497 Каолин(общий фон в кухне и гостиной зоне).

Освещение трековое основное + зональное малыми светильниками.

Кухня

Условие по наполнению техникой выполнено: есть варочная панель, духовой шкаф с свч, посудомойка и, разумеется, холодильник. Рабочий треугольник на кухне сохранен, но т.к. наш хозяин не особо тратит время на готовку - кухня по большей степени вышла декоративная.

Места хранения предусмотрены в нижних шкафах, стойке с свч и в барной зоне.

Фартук выполнен из мраморной плиты. Вытяжка спрятана в массивном коробе из ГКЛ, выкрашенном в основной цвет стен. В отличие от уютных штор в гостиной, на окне в кухне римская штора. Освещение зонированное: над барной стойкой расположились два подвеса из металла, а рабочая зона подсвечена спотами.

Визуализация выполнена в Photoshop
Визуализация выполнена в Photoshop

Гостиная

Зона гостиной не имеет четкого разделения на рабочую и зону отдыха. Центром комнаты является глубокий диван с уютными подушками, рядом приютились столики из металла и минималистичный торшер с каменным основанием.

Книжные полки из слэба занимают 70% стены в длину, на них же расположился ретро-музыкальный центр. Экран проектора, который опускается прямо поверх полок, позволит смотреть кино в уютной, ламповой атмосфере, сам проектор расположен над диваном.

Рабочая зона не включает место для хранения, за исключением узких ящиков в столе, оснащена удобным креслом Egg, в котором удобно провести множество рабочих часов и эффектно выглядеть на встречах в Zoom.

Визуализация выполнена в Photoshop
Визуализация выполнена в Photoshop

Товары в интерьере

*не является рекламой или рекомендацией к покупке.

Спасибо, что Вы прочитали статью до конца, буду рада вашим комментариям.

16 вопросов к своей семье перед переездом

Чем отличается хорошая планировка квартиры

Антитренды в интерьере