Найти в Дзене

До/после: как из однокомнатной квартиры сделали трехкомнатную

К нам обратились заказчики с очень не простой задачей. Признаемся, мы думали браться или нет. Необходимо было из однокомнатной квартиры 46 кв.м. сделать трехкомнатную. Но вызов есть вызов! Решили делать! С первого взгляда было ясно, что цветовая гамма для этого проекта должна быть светлой. Светлые тона визуально увеличивают пространство. В интерьере должны присутствовать зеркала и отражающие поверхности. Кухня сразу виделась вдоль окна. Технические решения были продуманы еще до начала работы над визуализациями. Посмотрим чертежи⬇ А теперь фото до и после⬇ Ванная до, мрачно и неуютно. А теперь вуаля, ванная после, стало очень светло и комфортно. Кухня-гостиная до Кухня-гостиная после Вот такая детская комната была.. А вот какая стала детская! В прихожей было также мрачно и неуютно, фото до А вот прихожая после +1 комната появилась, это спальня С уважением, ООО ГК "ОМиС" Наши контакты здесь⬇ https://taplink.cc/omis_gk #дизайнеринтерьера #дизайнквартиры #дизайнпроект #дизайнинтерьера #ди
Оглавление

К нам обратились заказчики с очень не простой задачей. Признаемся, мы думали браться или нет.

Необходимо было из однокомнатной квартиры 46 кв.м. сделать трехкомнатную. Но вызов есть вызов! Решили делать!

С первого взгляда было ясно, что цветовая гамма для этого проекта должна быть светлой. Светлые тона визуально увеличивают пространство.

В интерьере должны присутствовать зеркала и отражающие поверхности. Кухня сразу виделась вдоль окна. Технические решения были продуманы еще до начала работы над визуализациями.

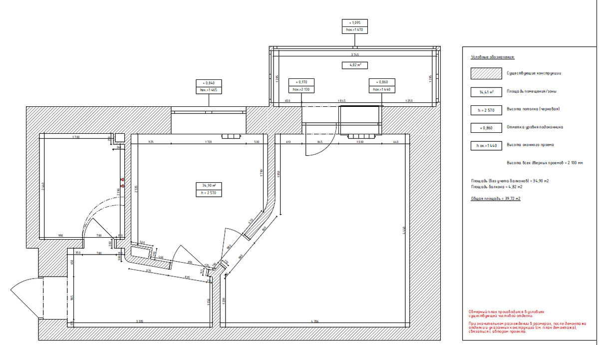
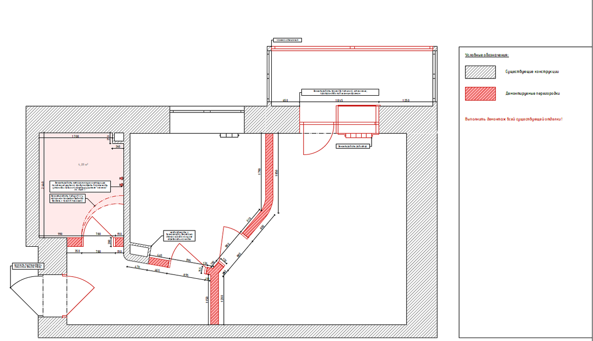
Посмотрим чертежи⬇

Обмерный план
Обмерный план
План демонтажа
План демонтажа
План монтажа
План монтажа
План с расстановкой мебели
План с расстановкой мебели

А теперь фото до и после⬇

Ванная до, мрачно и неуютно.

А теперь вуаля, ванная после, стало очень светло и комфортно.

Кухня-гостиная до

Кухня-гостиная после

Вот такая детская комната была..

А вот какая стала детская!

В прихожей было также мрачно и неуютно, фото до

Прихожая до
Прихожая до

А вот прихожая после

+1 комната появилась, это спальня

С уважением, ООО ГК "ОМиС"

Наши контакты здесь⬇

https://taplink.cc/omis_gk

#дизайнеринтерьера #дизайнквартиры #дизайнпроект #дизайнинтерьера #дизайнподключ