Добавить в корзинуПозвонить
Найти в Дзене
SALON-interior

Таунхаус в стиле ар-деко на берегу озера

Любимый стиль дизайнера Алёны Чашкиной — ар-деко. Именно он помог создать утончённое, эффектное и функциональное пространство этого загородного дома. Заказчики и задачи Таунхаус расположен на берегу Верхнего озера — самого престижного района Калининграда, в комплексе клубных домов «Легенды Озера». Заказчики приобрели дом без отделки и пригласили Алёну Чашкину создать стильное и уютное пространство для своей семьи. Планировка Грамотная планировка — это залог комфорта, уверена Алёна. Корректировки, которые внесла дизайнер в организацию жилого пространства, помогли сделать таунхаус более функциональным и удобным для жизни родителей и двух детей. Первый этаж, расположенный на двух уровнях, превратился в одну большую общественную зону: на верхнем уровне появились парадная входная зона с примыкающими помещениями: кухней, столовой, лестничным холлом и гостевым санузлом; весь нижний заняла гостиная. Это уютное помещение с панорамным видом на сад и выходом на террасу. За счёт больших окон комна
Оглавление

Любимый стиль дизайнера Алёны Чашкиной — ар-деко. Именно он помог создать утончённое, эффектное и функциональное пространство этого загородного дома.

Заказчики и задачи

Таунхаус расположен на берегу Верхнего озера — самого престижного района Калининграда, в комплексе клубных домов «Легенды Озера». Заказчики приобрели дом без отделки и пригласили Алёну Чашкину создать стильное и уютное пространство для своей семьи.

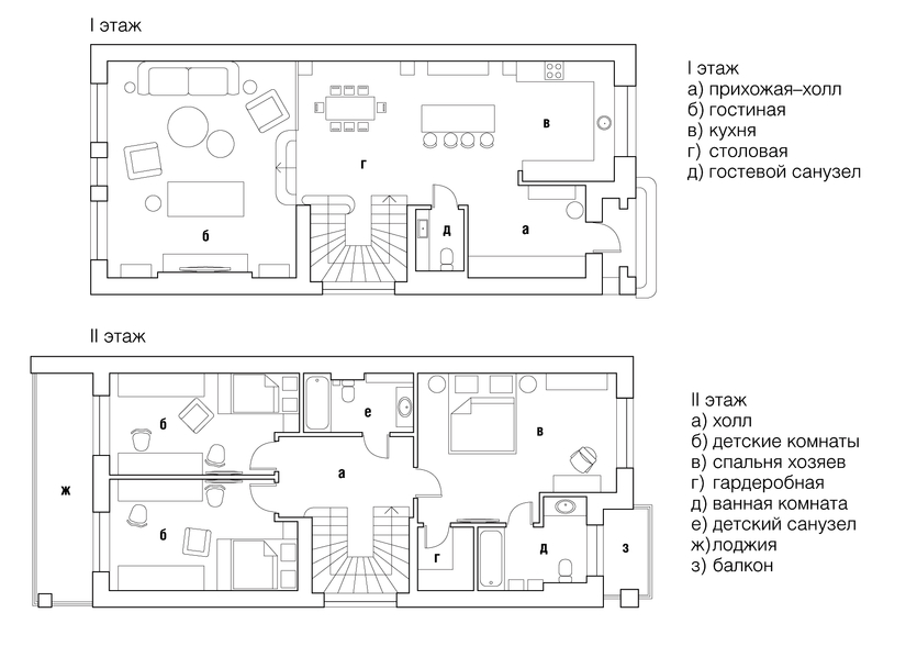
Планировка

Грамотная планировка — это залог комфорта, уверена Алёна. Корректировки, которые внесла дизайнер в организацию жилого пространства, помогли сделать таунхаус более функциональным и удобным для жизни родителей и двух детей. Первый этаж, расположенный на двух уровнях, превратился в одну большую общественную зону: на верхнем уровне появились парадная входная зона с примыкающими помещениями: кухней, столовой, лестничным холлом и гостевым санузлом; весь нижний заняла гостиная. Это уютное помещение с панорамным видом на сад и выходом на террасу. За счёт больших окон комната пронизана солнечным светом практически весь день.

На втором этаже сделали две детские комнаты со своим санузлом, спальню хозяев с ванной и гардеробными. На третьем этаже оборудовали гостевую комнату, гардеробную и ещё один гостевой санузел.

Планировка квартиры
Планировка квартиры

Концепция

Дизайнер предложила оформить интерьер в одном из самых красивых и изысканных, по её мнению, стилей. «Что может лучше всего подчеркнуть состоятельность, статус и особое отношение к жизни? — размышляет Алёна. — Работа с разными стилевыми направлениями доставляет мне огромное удовольствие, но с ар-деко у меня особые отношения, можно сказать, на уровне чувств. Благородство, эстетика, утончённость и декоративность — это те составляющие, которые я особенно ценю в нём. Думаю, именно эти чувства разделяют и мои заказчики. В отличие от предыдущих моих работ в стиле ар-деко этот дом насыщен ярким декором, он, с одной стороны, элегантен, а с другой — как фейерверк: яркий, солнечный».

Одним из главных украшений в интерьере дома стали авторские витражи ручной работы в стиле ар-деко, выполненные калининградскими мастерами Александром Сплошным и Александром Полежаевым в сочетании трёх техник: тиффани, моллирования и фьюзинга.

Гостиная

Работа над проектом совпала с посещением миланской выставки iSaloni. Это помогло в выборе ряда брендов для интерьера. Для оформления гостиной Алёна остановилась на мебели итальянской фабрики Longhi.

Специально для интерьера художница Наталья Фоминова написала панно в стилистике ар-деко. Ковёр выполнен по эскизам автора проекта датской фабрикой Massimo. Диван — Nobu. Настольные лампы — Officina Luce. На полу — паркетная доска Bauwerk (Швейцария). Цвет стен первого этажа и лестничного пространства — достаточно сложный и в то же время комфортный, — отмечает автор проекта. — Я назвала его «цвет тумана в пустыне». Кстати, он сейчас на пике популярности.

Кухня-столовая

Для оформления стен в общественной зоне дизайнер остановилась на своём любимом натуральном материале — Travertino Romano от Oikos с золотой расшивкой. В своём составе штукатурка содержит мрамор и кварц, за счёт чего покрытие не только красивое, но и очень прочное в плане использования.

Кухню оснастили мебелью и островом от Aster Cucine — ещё одного бренда из списка «миллионеров», а спальню — элегантными предметами от Vittoria Frigerio. Барные стулья — Kelly, Longhi. Над островом — подвесные светильники от Versace Home.

В столовой ключевым элементом оформления стали харизматичные вещи марки Visionnaire — стол Chatam со столешницей из мрамора и стулья Daphne от Longhi в ярком красном бархате. Стулья — Daphne, Longhi. Люстры и бра — из коллекции Babel, Luxxu. Пол выложен керамогранитом Classici di Rex Statuarioот Rex Ceramiche.

Спальня хозяев

В отделке стен использовано настенное покрытие KT-Exclusive (из коллекции Glam) цвета бисера, бликующего при разном освещении, в комбинации с декоративными элементами от Orac Decor. Мебель — Vittoria Frigerio. Электрофурнитура (розетки, выключатели) — Bticino. Подвесные светильники — Sicis.

Гардеробная

Стены гардеробной покрыты краской из палитры цветов голландского бренда Ralston. Шкафы, фабрика интерьеров «ЭлитДом». Напольные зеркала выполнены на заказ компанией Furnitek Group. Дверные ручки — английская элитная фурнитура Armac Martin.

Проекты архитекторов и дизайнеров, интерьеры знаменитостей, обзоры новинок мировых брендов — на нашем канале! Подписывайтесь: https://zen.yandex.ru/salon.ru

Что учесть в строительстве дома: 5 архитекторов дали советы

Как найти идеальное место, какой материал для строительства выбрать, что учесть в планировке — Salon.ru рассказали российские профессионалы.

5 лучших гостевых домов за городом: можно ли сделать так же?

Смотрим, как профи оформляют гостевые дома и отмечаем актуальные тренды.

Какие впечатления вызвал у вас интерьер этого таунхауса? Что понравилось, а что — нет?