Найти в Дзене

Как однокомнатную квартиру преобразовать в комфортную студию для холостяка с собакой.

Задача проекта. Ко мне обратился перспективный продюсер в начале своего пути с задачей – распланировать пространство в небольшой однокомнатной квартире 33 кв.м. Необходимо было продумать планировку так, чтобы разместить кровать на втором уровне, проектор с экраном, подвесное кресло, в ванной комнате чтобы было удобно мыть собаке лапы после прогулки. Так же требовалось сделать место для собаки в гостиной и выделить место в кухне для мисок. Мне сразу откликнулась эта задача, понравилось, что заказчик живет активной жизнью и хочет, чтобы в квартире было уютно несмотря на маленькую площадь. Реализация проекта. При создании планировки я в первую очередь выделила зону сна, создала уединенное пространство за счет размещения кровати в дальней от общей территории части квартиры. Заказчику было предложено четыре варианта планировки: Заказчик выбрал в результате вот такой вариант планировки: Я объединила зоны кухни и гостиной̆ для увеличения пространства. Это было осуществлено благодаря сносу ст

Задача проекта.

Ко мне обратился перспективный продюсер в начале своего пути с задачей – распланировать пространство в небольшой однокомнатной квартире 33 кв.м.

Необходимо было продумать планировку так, чтобы разместить кровать на втором уровне, проектор с экраном, подвесное кресло, в ванной комнате чтобы было удобно мыть собаке лапы после прогулки.

Так же требовалось сделать место для собаки в гостиной и выделить место в кухне для мисок.

Мне сразу откликнулась эта задача, понравилось, что заказчик живет активной жизнью и хочет, чтобы в квартире было уютно несмотря на маленькую площадь.

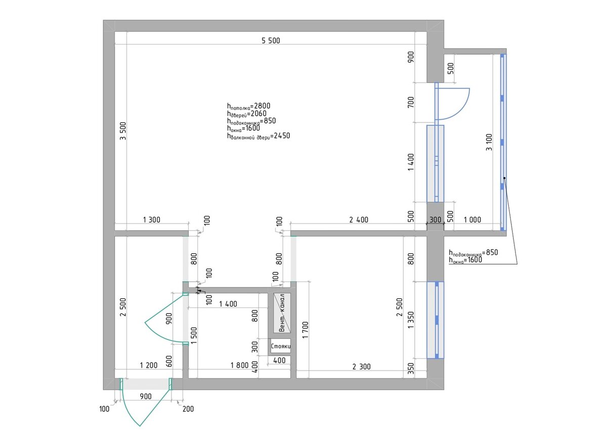
Исходный план
Исходный план

Реализация проекта.

При создании планировки я в первую очередь выделила зону сна, создала уединенное пространство за счет размещения кровати в дальней от общей территории части квартиры.

Заказчику было предложено четыре варианта планировки:

Заказчик выбрал в результате вот такой вариант планировки:

Выбранный вариант планировки
Выбранный вариант планировки

Я объединила зоны кухни и гостиной̆ для увеличения пространства. Это было осуществлено благодаря сносу стены между этими помещениями.

Главное, я разместила кровать на втором уровне, на первом уровне поставила большой рабочий стол и сделала скрытую подсветку — это было пожелание заказчика.

Заказчик хотел, чтобы было подвесное кресло, я его разместила на лоджии, получилась уютная зона отдыха.

В прихожей разместила банкетку, зону хранения для ключей и ошейника с поводком, так же большое зеркало со скрытой подсветкой по его периметру.

В санузле по желанию заказчика был установлен тропический душ, гигиенический душ, подвесной унитаз, стиральная машина и раковина, все это вместилось в 2,26 кв.м., так же есть система хранения над инсталляцией.

За 15 дней работы был создан дизайн-проект с реалистичными визуализациями, я составила планы монтажа и демонтажа перегородок, подготовила таблицу комплектации квартиры.

Вид на гостиную зону
Вид на гостиную зону

Если вы тоже планируете ремонт в своей квартире и хотите грамотно распланировать хранение вещей, пишите мне в личные сообщения и мы обсудим вашу задачу.