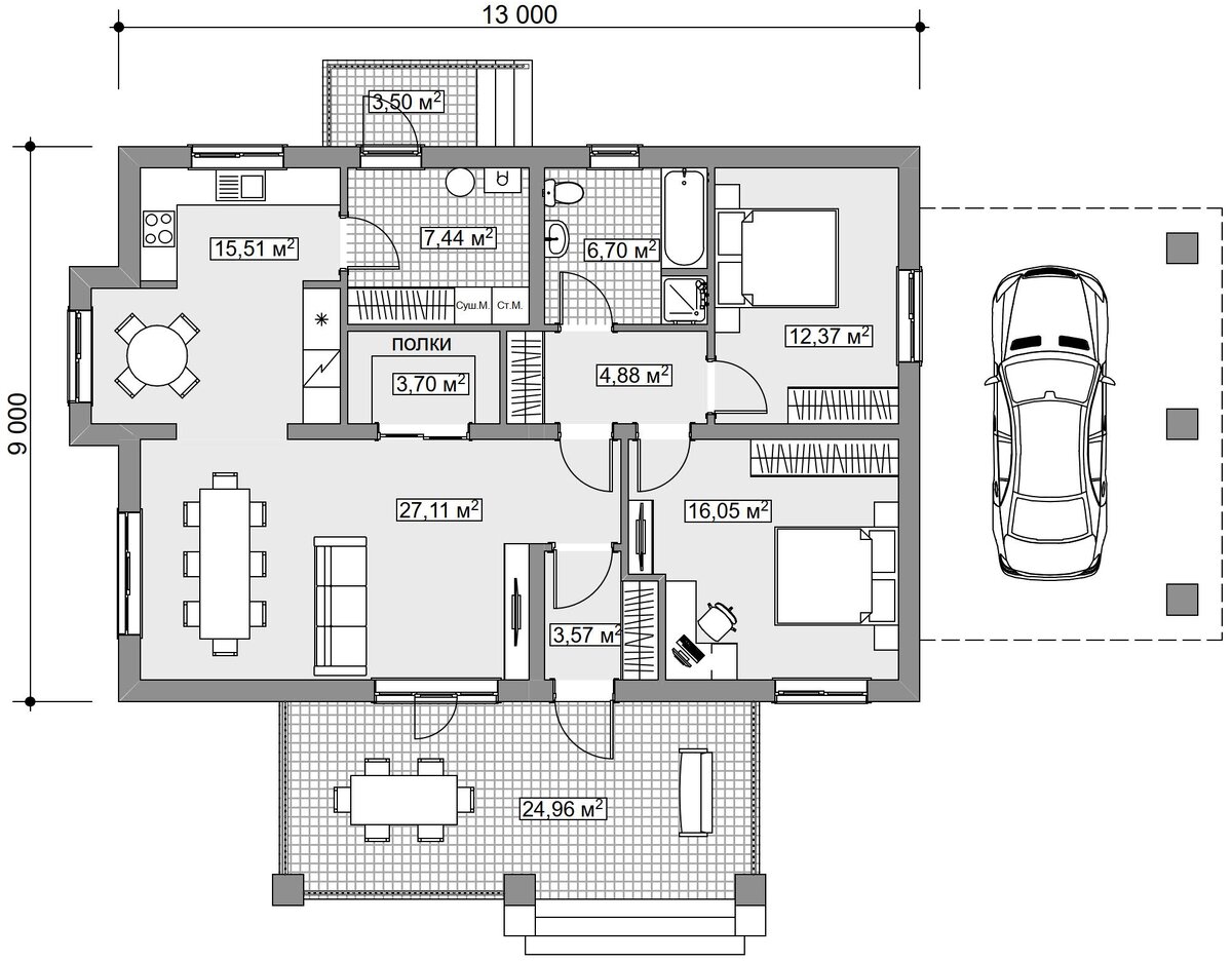
Всем привет! Делюсь своим новым проектом довольно интересного дома для взрослой пары. Дом рассчитан для круглогодичного проживания. Строительство дома предполагается в Краснодарском крае. Немного слов о планировочном решении: Компоновка и взаимное расположение помещений обусловлено тем, что дом будет располагаться в глубине двора. Задний двор небольшого размера, он будет использоваться только для некоторых хозяйственных нужд. Главный фасад украшает терраса. Кухня-гостиная максимально функциональна: гостиная логически разделена на обеденную и тв-зоны, кухонный гарнитур разнесен на три стены, а стол для завтраков уютно расположен в эркере. Так же из кухни есть вход в техническое помещение, в котором разместится инженерное оборудование, стиральная машина с сушилкой и системы хранения. Из технического помещения есть выход на задний двор. Конструктив дома предельно прост и не дорог в реализации. Используем традиционные решения по максимуму. Вот таким интересным и самобытным получился дом.
