Найти в Дзене

Из чего состоит грамотный дизайн-проект?

Дизайн-проект — это важная часть любого ремонта. Он помогает рассчитать необходимое количество строительных материалов и продумать уникальные технические решения и расстановку мебели: всё от электрики и выключателей до гарнитура и гардеробной. В статье мы попытаемся разобраться, какой дизайн-проект можно назвать качественным и как передать дизайнеру все пожелания? 🤔 Что такое дизайн-проект? Дизайн-проект квартиры — это пакет документов, по которому вы можете контролировать ремонт на каждом его этапе. Чтобы реализовать именно тот дизайн, который вы планировали.
Сейчас в ЖК «Камские огни 2» действует акция -- дизайн-проект в подарок. Сдача дома уже в этом году. Узнайте подробнее в конце статьи ⬇️ 🧱 Из чего состоит дизайн-проект? Базовый дизайн-проект должен включать в себя набор чертежей. Это понятная инструкция для строителей и заказчика. Строителям это поможет понять как именно дизайнер предлагает обустроить квартиру, а заказчикам какого именно результата они ждут от ремонта. 📐 Ос
Оглавление

Дизайн-проект — это важная часть любого ремонта. Он помогает рассчитать необходимое количество строительных материалов и продумать уникальные технические решения и расстановку мебели: всё от электрики и выключателей до гарнитура и гардеробной.

В статье мы попытаемся разобраться, какой дизайн-проект можно назвать качественным и как передать дизайнеру все пожелания?

🤔 Что такое дизайн-проект?

Дизайн-проект квартиры — это пакет документов, по которому вы можете контролировать ремонт на каждом его этапе. Чтобы реализовать именно тот дизайн, который вы планировали.

Сейчас в
ЖК «Камские огни 2» действует акция -- дизайн-проект в подарок. Сдача дома уже в этом году. Узнайте подробнее в конце статьи ⬇️

🧱 Из чего состоит дизайн-проект?

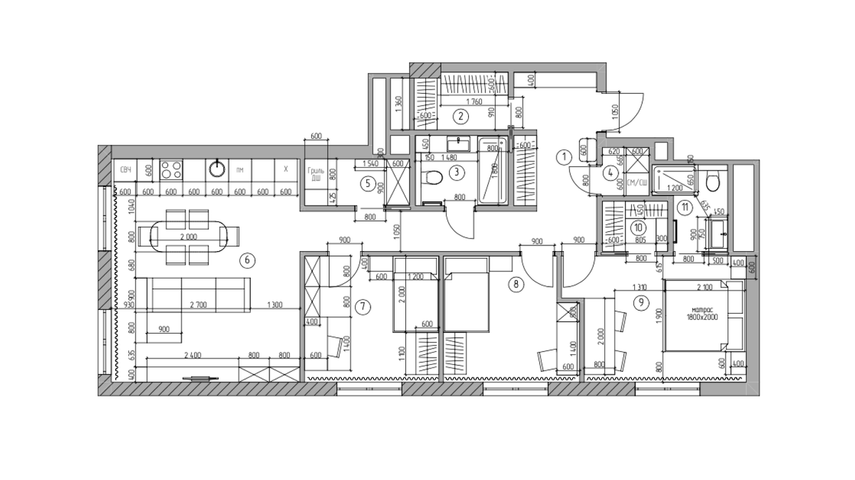
Базовый дизайн-проект должен включать в себя набор чертежей.

                                    Пример чертежа в ЖК «Камские огни 2»
Пример чертежа в ЖК «Камские огни 2»

Это понятная инструкция для строителей и заказчика. Строителям это поможет понять как именно дизайнер предлагает обустроить квартиру, а заказчикам какого именно результата они ждут от ремонта.

📐 Основы качественного дизайн-проекта

Дизайн-проект должен учитывать комфорт жителей. Он отражает пожелания заказчика и отвечает необходимым запросам удобства и распределению границ.

Если грамотно разделить жилое и рабочее пространство, они будут дополнять друг друга. Жителям необходимо не только сосредотачиваться на важном, но и иметь возможность отдохнуть.

В
качественном дизайн-проекте всё должно быть продумано до мелочей: от кладовой в коридоре до расположения кровати. Даже место для переобувания или гладильной доски играют огромную роль.

Важной деталью также выступает места для хранения. Помимо шкафов с одеждой, у клиента может быть большое количество кухонной утвари или коллекция статуэток. Это всё необходимо учесть при составлении интерьера и выделить место под каждый объект.


🎨 Как правильно сформировать запрос для дизайнера?

Изначально заказчик заполняет подробную анкету, в которой указывает все пожелания по дизайну квартиры. Чем подробнее составлена анкета дизайнера, тем будет более точно спроектирован интерьер.

Но как сделать так, чтобы дизайн-проект точно совпал с мыслями об идеальном интерьере? На помощь придут референсы.

-3

Референс — вспомогательное изображение, которые автор изучает перед работой, чтобы получить дополнительную информацию и точнее передать детали. Сейчас существует большое количество тематических групп с дизайн-проектами или сайтов с базой данных фотографий уже готовых работ.

Референс может указать не только на понравившиеся детали. Хорошая идея — прислать дизайнеру и негативные варианты интерьера. Детали, которые точно нельзя использовать в будущем ремонте.


👩‍🎨 Как выбрать дизайнера для будущего проекта?

Сейчас на рынке труда имеется большое количество дизайнеров. Но все ли они настолько компетентны в вопросе? При выборе дизайнера нужно обратить внимание на:

  • Портфолио специалиста. Проверьте, все ли работы являются подлинными. Представьте себя на месте другого клиента, стало бы вам комфортно жить в данных интерьерах?
  • Постарайтесь найти возможность увидеть в живую реализованные ими проекты и убедиться, что это действительно их работа, и что сделана она качественно
  • Вы должны понимать, что будет входить в стоимость дизайн-проекта, которую предлагает та или иная компания или специалист
  • Компания или один специалист? Вы можете обратиться в компании, специализирующимися на дизайне интерьеров. Тогда над вашим проектом будет трудиться не один человек, а целая команда.

👉 Для тех, кто выбирает комфорт в квартире:

Строительная группа «Развитие» заботится о своих жителях. С самого начала застройки при формировании планировок продумывается каждая деталь — всё для удобства будущей жизни.

В
ЖК «Камские огни 2» действует акция — при покупке квартиры дизайн-проект в подарок. Таким образом мы стремимся довести комфорт жильцов до своего максимума 🎁

🤍 Почему люди выбирают «Камские огни 2»?

Сдача дома уже в этом году. ЖК «Камские огни 2» — это:

  • Удобное расположение. Исторический центр Перми в 200 м от набережной реки Кама
  • Подземный паркинг. Домовой лифт спускается прямиком до автопарковки
  • Собственная газовая котельная. Снижает траты за коммунальные платежи и обеспечивает независимость начала отопительного сезона
  • Кирпичная застройка. Мы приветствуем традиционные материалы, поэтому межквартирные и наружные стены выполнены из кирпича
  • Акция «Дизайн-проект в подарок». Задумываетесь о приобретении квартиры в ипотеку? Не забудьте про ставку от 1,7%

Узнать подробнее можно на нашем сайте. В офисе продаж на ул. Чернышевского, 28 (3 этаж) или по номерам телефонов: 204-04-70 / 204-04-72.

Проектная декларация на сайте https://наш.дом.рф. Застройщик OOO "СПЕЦИАЛИЗИРОВАННЫЙ ЗАСТРОЙЩИК ЭКОСТРОЙ"