Добавить в корзинуПозвонить
Найти в Дзене

Компактный продуманный дом| 85м2

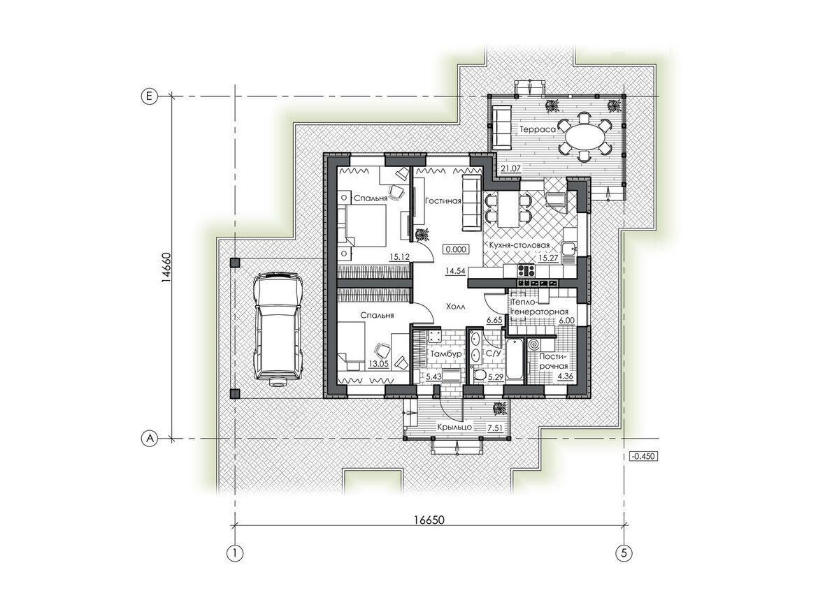
Лучшая альтернатива "трёшке" для небольшой семьи из 2-4 человек. Если вы собираетесь строить свой первый дом, начните с небольшого проекта. Небольшая площадь позволяет завершить строительство и отделку в короткие сроки и уже начать жить жизнью мечты. Рациональная планировка, минимум проходных зон, максимум хранения. Включает в себя 2 спальни со встроенными шкафами, кухню-столовую с выходом на террасу, гостиную, санузел с окном, топочную с функциями кладовой, просторную прихожую с окном и даже зону постирочной! Проектом предусмотрен навес для автомобиля. У этого дома есть брат в другом цветовом исполнении. Я о нем писала здесь Идеальный дом для молодой семьи с 1-2 детьми или для тех, чьи дети уже самостоятельные взрослые люди. Вся мебель тщательно расставлена в реальном масштабе.
Отапливаемая площадь - 85.71 м2
Общая площадь - 92.32 м2 Посмотреть подробнее, задать вопрос и заказать проект можно на сайте #проектдомаизгазобетона #маленькийдом #небольшойдом #красивыедома #одноэтажныйдом

Лучшая альтернатива "трёшке" для небольшой семьи из 2-4 человек. Если вы собираетесь строить свой первый дом, начните с небольшого проекта. Небольшая площадь позволяет завершить строительство и отделку в короткие сроки и уже начать жить жизнью мечты.

Главный фасад дома
Главный фасад дома

Рациональная планировка, минимум проходных зон, максимум хранения. Включает в себя 2 спальни со встроенными шкафами, кухню-столовую с выходом на террасу, гостиную, санузел с окном, топочную с функциями кладовой, просторную прихожую с окном и даже зону постирочной! Проектом предусмотрен навес для автомобиля.

У этого дома есть брат в другом цветовом исполнении. Я о нем писала здесь

-2

Идеальный дом для молодой семьи с 1-2 детьми или для тех, чьи дети уже самостоятельные взрослые люди.

Вся мебель тщательно расставлена в реальном масштабе.
Отапливаемая площадь - 85.71 м2
Общая площадь - 92.32 м2

Посмотреть подробнее, задать вопрос и заказать проект можно на сайте

#проектдомаизгазобетона #маленькийдом #небольшойдом #красивыедома #одноэтажныйдом #одноэтажныйпроект #готовыйпроект #компактныйдом #архитектор #планировкадома