Найти в Дзене

Голубой цвет, терраццо и молдинги: дизайн-проект для квартиры 57м2 в ЖК Цвета Радуги

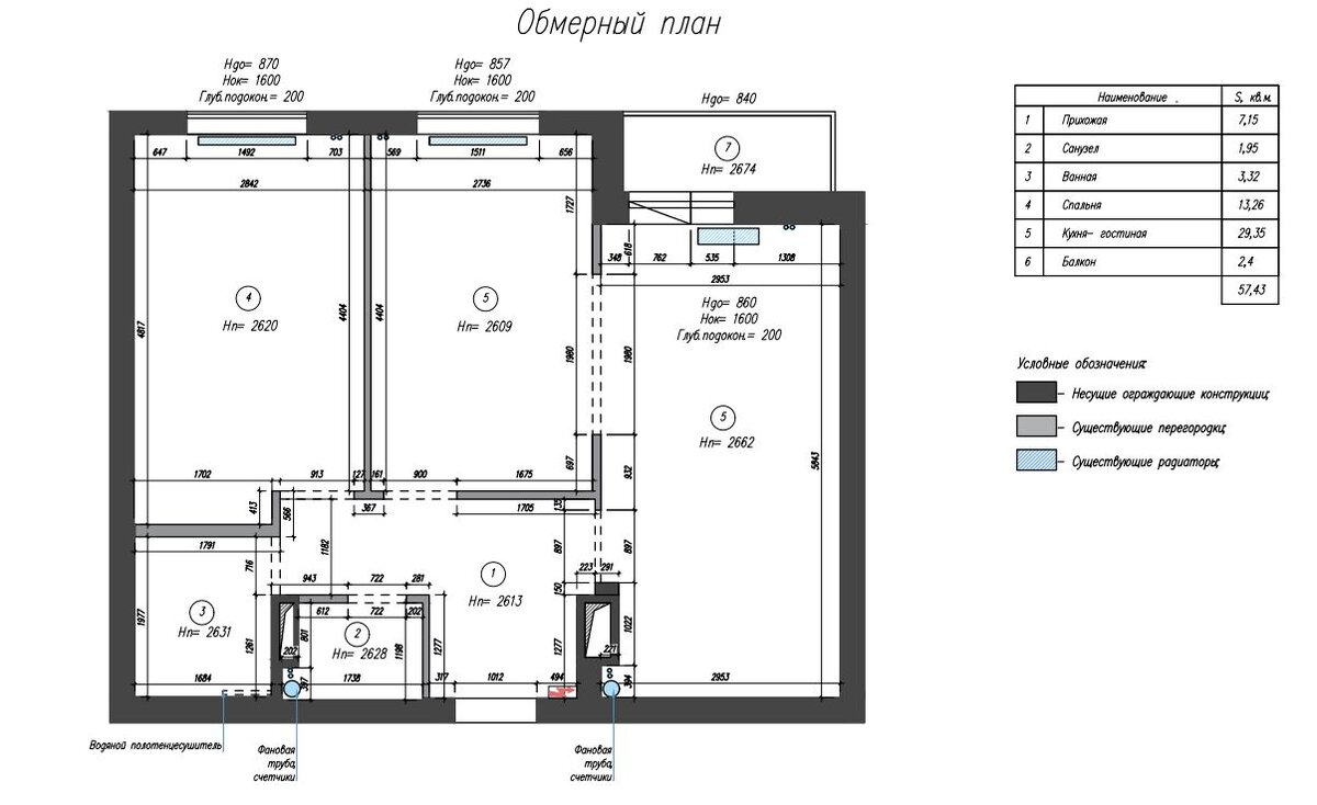
Для наших клиентов мы разрабатывали полный дизайн-проект с 3D-визуализациями в современном стиле для квартиры площадью 57м2 в ЖК «Цвета Радуги». Уже на первой встрече с дизайнером было четко оговорено, какой результат хозяева квартиры хотят видеть от нашего совместного сотрудничества. Главные пожелания: это квартира в современном стиле с использованием молдингов и голубого цвета в интерьере. По планировке квартира — евротрёшка. В квартире просторная кухня-гостиная площадью 29,3м2, спальня с предусмотренной для встраиваемого шкафа нишей, раздельные санузел и ванная комната, прихожая и лоджия. Планировочное решение от застройщика почти полностью устраивало наших клиентов, но все-таки мы внесли несколько изменений, чтобы сделать квартиру более функциональной. Изначально между между кухней и гостиной были предусмотрены небольшие перегородки без межкомнатных дверей, которые визуально разделяли помещения на функциональные зоны. Так же застройщик сделал 2 входа в кухню: один из коридора, друг
Оглавление

Для наших клиентов мы разрабатывали полный дизайн-проект с 3D-визуализациями в современном стиле для квартиры площадью 57м2 в ЖК «Цвета Радуги».

Уже на первой встрече с дизайнером было четко оговорено, какой результат хозяева квартиры хотят видеть от нашего совместного сотрудничества. Главные пожелания: это квартира в современном стиле с использованием молдингов и голубого цвета в интерьере.

По планировке квартира — евротрёшка.

В квартире просторная кухня-гостиная площадью 29,3м2, спальня с предусмотренной для встраиваемого шкафа нишей, раздельные санузел и ванная комната, прихожая и лоджия.

Планировочное решение от застройщика почти полностью устраивало наших клиентов, но все-таки мы внесли несколько изменений, чтобы сделать квартиру более функциональной.

-2

Изначально между между кухней и гостиной были предусмотрены небольшие перегородки без межкомнатных дверей, которые визуально разделяли помещения на функциональные зоны. Так же застройщик сделал 2 входа в кухню: один из коридора, другой через гостиную.

Первым делом мы демонтировали перегородки между кухней и гостиной, чтобы создать просторное и единое помещение. Также убрали вход в гостиную из коридора, чтобы на этом месте установить вместительную систему хранения.

Поскольку помещение кухни — прямоугольной формы и большой площади, наши клиенты решили разместить здесь гардеробную комнату, возведя для неё перегородку.

Несмотря на то, что застройщик предусмотрел нишу для встраиваемой системы хранения в спальне, ширина ниши оказалось недостаточной, поэтому мы донарастили перегородку.

Таким образом вам удалось разработать планировочное решение, отвечающее всем требованиям и желаниям наших клиентов.

Основная цветовая гамма квартиры — это голубой, белый и серый цвета в сочетании с оттенками розового и бежевого.

Прихожая

Площадь прихожей составляет 7м2. Наш дизайнер Юлия решила использовать с умом каждый свободный метр.

-3

Для отделки помещения прихожей основным приемом выбрали контраст — контраст светлых и теплых тонов в отделке стен, пола и в мебели.

Стены будут подготовлены под покраску. Для покраски выбрали 2 оттенка: это светло-серый и темно-серый оттенки краски. Причем светло-серый оттенок является одним из ведущих во всем интерьере.

Также предусмотрели зонирование прихожей на так называемую «грязную» (место, где разуваются после прихода с улицы) и «чистую» зоны. Зонирование выполнили по полу, использовав 2 варианта напольных покрытий. Для «грязной» зоны выбрали керамогранит фирмы «Italon» Контемпора Карбон размером 60х60, чтобы соблюсти правильную геометрию. На остальной площади использовали ламинат «Фортуна» фирмы Tarkett. Цветовая палитра напольных покрытий также строится на приема контраста: темный керамогранит против светлого ламината.

При входе установили туалетный столик в современном стиле с элегантным пуфом в голубом цвете, таком же, который будет часто встречаться в интерьере.

-4

Ещё одним необычным дизайнерским решением является цветовая гамма система хранения. Чтобы поддержать общую концепцию прихожей было принято решение установить систему хранения, выполненную в 2 цветах: темно-серый и белый. Причем мебель была разработана нашим дизайнером таким образом, чтобы граница цветового решения приходилась ровно на границу напольных покрытий. В итоге у нас получилась стильная и оригинально оформленная входная зона квартиры.

Наши клиенты сразу же приняли решение, что не хотят видеть зеркал на системе хранения, чтобы сохранить изначальную задумку, поэтому зеркало в полный рост предусмотрено на входной двери.

Санузел и ванная комната

У наших клиентов раздельные санузел и ванная комната. Когда впервые зашла речь об отделке этих помещений, наши клиенты сразу сообщили, что хотят видеть терраццо в отделке.

-5

Работу над санузлом мы начали именно с выбора подходящей плитки терраццо, чтобы затем разработать правильное отделочное решение, которое не будет перегружать помещение.

Для отделки стен выбрали керамогранит Apavisa South White Nat — терраццо с белым основанием и яркими вкраплениями.

Для отделки стен выбрали 2 вариант: плитка и покраска, чтобы избежать из излишней пёстрости.

Как и в любом современном дизайне наши клиенты отдали предпочтение инсталляции, а в нише над ней мы поместили коллекторный узел и предусмотрели место для хранения бытовой химии.

Керамогранитом мы облицевали пол и стены наполовину. Верхняя часть стен будет выкрашена в 2 цвета. Основные стены — это светло-серый цвет, а вот стена над инсталляцией — в голубой. Помимо самой стены в этом цвете так же будет выполнена жалюзийная дверь, скрывающая нишу.

-6

Несмотря на небольшую площадь помещения, в санузле нам также удалось разместить рукомойник с небольшой тумбой, зеркало и гигиенический душ.

Вся сантехника использована в цвете хром.

Отдельным акцентом выступают полочки для хранения и держатель для туалетной бумаги: они выполнены в черном матовом цвете.

-7

Ванная комната правильной формы площадью 3,2м2 в целом поддерживает концепцию санузла, но всё-таки немного отличается.

Для отделки стен наши клиенты выбрали как покраску в голубой цвет, так и отделку керамогранитом фирмы «Italon» Миллениум Сильвер. Этом керамогранитом облицованы стены в зоне душевого поддона.

На полу — керамогранит Apavisa South White Nat с текстурой терраццо. Для отделки пола в душевой зоне наши клиенты выбрали керамогранит фирмы «Italon» Нэчрэл Лайф Вуд Аш с текстурой дерева.

Благодаря такому решению в ванной комнате складывается четкое разделение между душевой зоной и всем остальным помещением.

-8

Несмотря на правильную форму помещения и достаточную площадь, наши клиенты отдали предпочтение душевому поддону в строительном исполнении, а не полноценной ванне.

Чтобы не вешать лишние полочки для хранения разного рода баночек и флаконов, мы решили сделать в душевой зоне нишу с полочками, облицованную керамогранитом.

Ограждение для душевой зоны будет выполнено на заказ.

Также в ванной комнате необходимо было разместить стиральную машину, поэтому мы использовали тумбу под стиральную машину с ящиками, накладной раковиной и литой столешницей.

Также как и в санузле, в ванной комнате использована хромированная сантехника.

Спальня

Спальня хозяев (13,2м2) выполнена в светлых оттенках с акцентами и минимумом мебели.

-9

Для наших клиентов спальня — это место отдыха и расслабления, поэтому они не хотели загромождать её излишней мебелью и использовать в отделке яркие цвета.

Было принято решение выполнить спальню в светлых тонах, но добавить акцента за счет использования в отделке декоративной штукатурки под бетон.

В качестве акцента была выбрана стена за изголовьем кровати: она меньше всего попадается на глаза по время пребывания в комнате, а декоративная штукатурка является отличным вариантов добавить «темноты» в светлый интерьер.

Кровать с мягким изголовьем также была подобрана исходя из цвета декоративной штукатурки, чтобы в комнате соблюдался цветовой баланс.

С каждой стороны кровати мы расположили по прикроватной тумбочке и настенному бра необычной формы.

Очень важно предусмотреть наличие достаточного количества розеток у кровати, чтобы клиентам было удобно заряжать все девайсы и не бегать по комнате с удлинителями.

Помимо спального гарнитура в комнате также есть система хранения в белом цвете, которую мы встроили в заранее подготовленную нишу, и телевизор на стене.

Дополнительный цвет — пыльная роза — введен в интерьер при помощи портьер, для которых предусмотрена закарнизная ниша. Решение добавить немного яркости в белоснежный интерьер при помощи текстиля является одним из самых верных и простых. В любой момент хозяева смогут заменить портьеры на другие в любом понравившемся им цвете.

В итоге у нас получилась спальня в современном стиле с нотами минимализма.

Кухня-гостиная

Кухня-гостиная — самое просторной и большое по площади помещение квартиры.

Благодаря удачно планировке зоны кухни и гостиной визуально разделяются из-за нестандартной формы помещения.

Кухня-гостиная — это самое яркое помещение: сочетание белого и голубого цвета с акцентами на стенах в виде молдингов.

-11

В гостиной в зоне отдыха мы расположили диван в сером цвете с модульным пуфом, который можно использовать как часть дивана, так и отдельно при необходимости. Помимо этого в зоне отдыха предусмотрен небольшой журнальный стол Кёльн: необычный, но из бюджетного сегмента.

Предусмотрели так же дополнительно кушетку Динс Sherst Grey, которая не только дополнила гостиную, но и добавила места для размещения, если например в гости к нашим клиентам нагрянет толпа друзей.

Стоит так же отметить, что расположение мебели позволяет дополнительно усилить разделение зон по функциональности.

-12

Стена напротив дивана является визуальным центров всего помещения, поскольку именно на ней у нас расположена ТВ зона. Помимо телевизора внимание так же приковывает тумбы с стиле СССР с ярким принтом на фасадах. Принт был выбран неслучайно: сочетание белого и голубого цветов — это основа всего интерьера данной квартиры.

Стены гостиной выкрашены в голубой цвет, а для акцента на них использованы молдинги под покраску. Молдинги не только стали изюминкой помещения, но и сделали его выразительнее и отчетливее.

Кухонный гарнитур поддерживает общую цветовую гамму интерьера. Наши клиенты приняли решение сделать гарнитур по типу ниши: слева и справа расположены пеналы под потолок, а посередине располагаются шкафы разных размеров. Вся техника в кухне — встроенная.

Для фартука использована уже знакомая плитка терраццо Apavisa South White Nat, которая объединяет помещение кухни-гостиной с санузлом и ванной комнатой.

Отдельное место предусмотрели для обеденной группы. Небольшого круглого стола с 2-мя стульями будет достаточно для комфортного проживания 2-х человек.

За обеденным столок скрывается дверь в гардеробную комнату. Благодаря использованию дверей скрытого монтажа в интерьере (а они установлены по всей квартире в белом цвете) вход в гардеробную не бросается в глаза.

По всей квартире единым контуром уложен ламинат «Фортуна» фирмы Tarkett. Напольное покрытие, уложенное единым контуром без порогов, всегда будет смотреться большее стильно и шикарно, чем использование разных напольных покрытий в помещениях.

Лоджия

-14

Лоджия — это то помещение, которое можно использовать для разных целей.

На лоджии мы обустроили полноценное рабочее место: письменный стол, комфортное кресло, предусмотрели место для принтера и бумаг.

Для отделки стен выбрали светло-серый оттенок стен в сочетании с ярко-синей декоративной штукатуркой. На полу керамогранит фирмы «Italon» Контемпора Карбон размером 60х60.

Дополнительный оттенок (как и в спальне) ввели благодаря шторам и мягкой мебели.

📍В интерьере использовано большое количество сценариев освещения: одинарные и двойные встроенные светильники, бра разных форм, размеров и цветов, дизайнерские настенные светильники, а также накладные светильники разных конфигураций.

📍Особое внимание уделено декорирования помещений: большое количество разнообразных постеров, которые дополняют интерьер, использование цветов, суккулентов и сухоцветов.

В итоге мы получили яркий, но спокойный интерьер в современном стиле, который будет радовать наших клиентов на протяжении многих лет.

Как вам дизайн-проект? Чтобы бы вы добавили или наоборот убрали?

____________________________________________________________________________________

Если вы хотите такой же продуманный дизайн-проект или планируете ремонт, доверьте это дело нам. Оставить свою заявку можно здесь.

#дизайн интерьеров #cовременный стиль #дизайн-проект #Ремонт #молдинги #терраццо #ремонт