Найти в Дзене

Как из однушки сделать двушку?

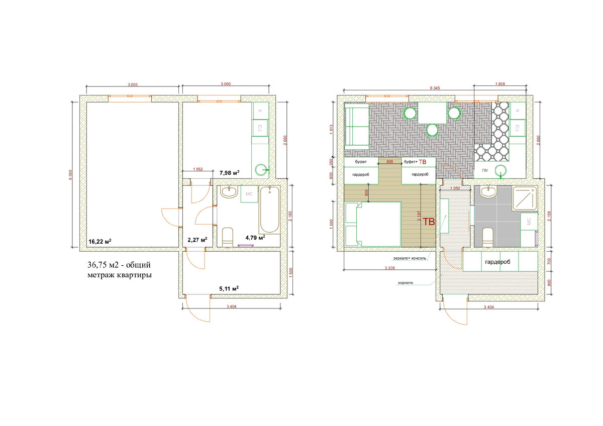
Недавно ко мне обратилась молодая семья. Они купили свою первую квартиру в новостройке и хотели создать в ней уютное пространство. Для них было крайне важно разделить зону для отдыха и кухни по отдельным комнатам. Квартира площадью 36,75 м2 с удивительно неровными стенами, что добавляло определенные сложности и большим нерациональным количеством дверей. Передо мной стояла задача разместить в однокомнатной квартире отдельную спальную зону, визуально сделав из одной комнаты две, грамотно оформить зону кухни, при этом максимально задействовать пространство, не забыв разместить гардероб, небольшой диван, место отдыха и удобный вместительный сан.узел. Первое с чего мы начали это конечно с создания проекта! На встрече мы определили несущие стены и возможность демонтажа перегородок. Мы соединили кухню и спальную, сделав «кухню-студию», но при этом разграничили спальную зону визуальными перегородками. Вместо стен между спальной зоной - мы разместили комфортные шкафы до потолка, таким образом о

Недавно ко мне обратилась молодая семья. Они купили свою первую квартиру в новостройке и хотели создать в ней уютное пространство.

Для них было крайне важно разделить зону для отдыха и кухни по отдельным комнатам. Квартира площадью 36,75 м2 с удивительно неровными стенами, что добавляло определенные сложности и большим нерациональным количеством дверей. Передо мной стояла задача разместить в однокомнатной квартире отдельную спальную зону, визуально сделав из одной комнаты две, грамотно оформить зону кухни, при этом максимально задействовать пространство, не забыв разместить гардероб, небольшой диван, место отдыха и удобный вместительный сан.узел.

Первое с чего мы начали это конечно с создания проекта!

На встрече мы определили несущие стены и возможность демонтажа перегородок. Мы соединили кухню и спальную, сделав «кухню-студию», но при этом разграничили спальную зону визуальными перегородками. Вместо стен между спальной зоной - мы разместили комфортные шкафы до потолка, таким образом они смогут выполнять и функцию стены/перегородки и станут одновременно и гардеробом и буфетом со стороны кухонной зоны. Спросите, а как же дверь? И дверь в спальную зону между двух платяных шкафов не забыли. Такие «стены-шкафы» очень удобно экономят место квартиры, при этом используя максимум полезного пространства.

В квартире много дверей, при чем коридор, где все они расположены был абсолютно бесполезным. Мы убрали дверь из комнаты в коридор, полностью освободив стену. Теперь ее можно задействовать под трюмо или консоль с зеркалом. А может быть хозяева захотят разместить там книжный стеллаж или просто коллаж с семейными фото? Дверь в сан.узел сделали раздвижную, так же для экономии места и комфортного перемещения.

-2

Кстати, в прихожей и коридоре, который мы освободили от лишней двери выбрали качественный керамогранит на пол. Он имеет текстуру дерева и внешне его сложно отличить от паркетной доски. Это придаёт и тёплое уютное восприятие и в то же время прочность поверхности. Можно ходить на каблуках, прихорашиваться у зеркала перед выходом не переживая за вмятины на полу.

Кстати, эффектный керамогранит с текстурой мрамора мы выбрали и в зону кухонного фартука - большой широкоформатный лист без швов с плавным рисунком смотрится очень дорого и лаконично. Он настолько красивый, что к нему постоянно хочется прикасаться.

В зону студии добавили небольшой диван для двоих, на котором можно удобно расположиться с книгой, пока хозяйка готовит ужин или насладиться просмотром вечернего кино.

Пришлось потрудиться и над кухонной зоной. Застройщик редко думает о том, где и как хозяева будут готовить. Не большую светлую кухню с крохотной столешницей мы расширили, сделав ее Г-образной. Удалось не только освободить рабочее место, но и поставить комфортную посудомоечную машину на 600 мм. Удалось удобно расположить стол на 3 персоны, а при необходимости он может раскладываться для принятия гостей. Напротив стола в зоне буфета расположился телевизор на специальном поворотном кронштейне. Его можно повернуть и смотреть под удобным углом.

В прихожей предусмотрели большой комфортный шкаф-купе, который вмещает в себя не только верхнюю одежду, но и полки под обувь, секции для хранения ведра, швабры, пылесоса, утюга и даже гладильной доски. Это к частому вопросу о том, где же разместить хозяйственный блок, если нет на это отдельной комнаты? Глубина шкафа на 700 мм тоже выбрана не случайно. О том, что расположено в этом шкафу, почему такие размеры и на какой высоте какие полки -расскажу в следующий раз.

Мы постарались по максимуму задействовать каждый квадратный метр. У таких небольших помещений есть одно очень весомое преимущество - это уют. Чем меньше помещение, тем визуально уютнее его можно обыграть деталями, декором и хитрым размещением всего необходимого.

Но не всё оказалось так просто, как кажется на первый взгляд. И первое с чем я столкнулась - это с заказом кухни. Но об этом подробнее уже в следующем посте...