Добавить в корзинуПозвонить
Найти в Дзене
Марина Маремья

Планировка квартиры - это очень важно

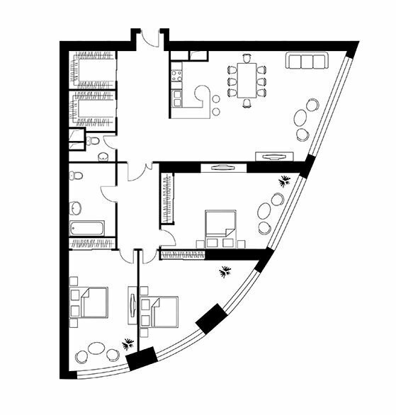
Имённо при выборе себе жилья, я поняла, что планировка квартиры является одним из важнейших факторов. Обычно продавцы квартир делают много фотографий комнат, но очень редко - схему расположения комнат. Особенно это касается продавцов вторички. Даже сделанный от руки схематичный план, сэкономит время и продавцов, и покупателей. Не проходит, если планировка не показывается преднамеренно. Покупатели только раздражаются, ведь для многих, время - деньги. Во всяком случае, когда я искала квартиру, много времени потратила в пустую. Переступив порог квартиры, я понимала, что не буду покупать эту квартиру из-за неподходящей для меня планировки. Приходилось из вежливости просматривать квартиру и выслушивать хозяев. Где-то не нравилось, расположение туалета напротив входной двери, где коридор, идущий от входной двери, упирается в дверь туалета; где-то узкие и длинные комнаты; где-то, комнаты в форме ромба или даже полукруглые. Это не то, чтобы плохо, скорее - необычно, оригинально. Если призвать

Имённо при выборе себе жилья, я поняла, что планировка квартиры является одним из важнейших факторов. Обычно продавцы квартир делают много фотографий комнат, но очень редко - схему расположения комнат. Особенно это касается продавцов вторички. Даже сделанный от руки схематичный план, сэкономит время и продавцов, и покупателей.

Фото из открытых источников.
Фото из открытых источников.

Не проходит, если планировка не показывается преднамеренно. Покупатели только раздражаются, ведь для многих, время - деньги. Во всяком случае, когда я искала квартиру, много времени потратила в пустую. Переступив порог квартиры, я понимала, что не буду покупать эту квартиру из-за неподходящей для меня планировки. Приходилось из вежливости просматривать квартиру и выслушивать хозяев. Где-то не нравилось, расположение туалета напротив входной двери, где коридор, идущий от входной двери, упирается в дверь туалета; где-то узкие и длинные комнаты; где-то, комнаты в форме ромба или даже полукруглые.

Фото из открытых источников.
Фото из открытых источников.

Это не то, чтобы плохо, скорее - необычно, оригинально. Если призвать на помощь дизайнера, можно сделать эксклюзивную комнату или кухню. А можно просто сгладить острые углы комнаты, устроив интересную гардеробную.

Фото из открытых источников.
Фото из открытых источников.

Но, как говорится, на вкус и цвет товарищей нет. Во всяком случае, моя приятельница не может продать квартиру в кирпичном доме, где и кухня, и спальня имеют форму неравнобедренной трапеции.

Фото из открытых источников.
Фото из открытых источников.

Это ещё не учитывая законы фэн-шуя)))

Фото из открытых источников.
Фото из открытых источников.

Вообще, когда человек собирается покупать квартиру, он в первую очередь обращает внимание на: стоимость;
район в котором находится дом или понравившаяся квартира; материал, из которого построен дом (кирпичный, панельный, монолит); уровень инсоляции (естественная освещённость) - на какой стороне находится квартира, на солнечной или не очень;

Фото из открытых источников.
Фото из открытых источников.

этажность всего дома и этаж, на котором находится будущая квартира - кому-то нравится жить под самой крышей и быть над городом,

Фото из открытых источников.
Фото из открытых источников.

а кому-то по душе быть ближе к земле.

Фото из открытых источников.
Фото из открытых источников.

Многим важна площадь кухни и естественно, чем больше, тем лучше. Новые планировки квартир отличаются тем, что в них кухни могут быть больше чем комнаты. Особенно это актуально, при небольшой общей площади квартиры.

Фото из открытых источников.
Фото из открытых источников.

Это позволяет кухню превратить в открытую кухню-гостиную. Наш российский менталитет чаще против такой планировки. Большинство из нас любит много готовить, а это лучше делать при закрытых дверях кухни. Во-первых, чтобы чад не распространялся по всей квартире, во вторых, чтобы никто не крутился под ногами, с отчаянной просьбой попробовать всё с начального этапа))) Это могут быть все члены семьи, начиная с наших братьев меньших.

Фото из открытых источников.
Фото из открытых источников.

Уж если кухня отдельная - лучше, чтобы она была квадратная или поперечная, то есть, чтобы ширина была больше. Тогда мебель можно поставить по две стороны, а середина будет свободной в любом случае.

Фото из открытых источников.
Фото из открытых источников.

Теперь можно купить квартиру без внутренней планировки. Это раздолье для тех, кто любит всё делать по-своему)))

Фото из открытых источников.
Фото из открытых источников.

P.S А ещё, часто трудно определить местонахождение какого-нибудь ЖК "Рыбки - болтуны". Да и цены на квартиры в этом ЖК, можно найти в последнюю очередь)

Рекомендую:

У кого дом лучше всех?