Найти в Дзене

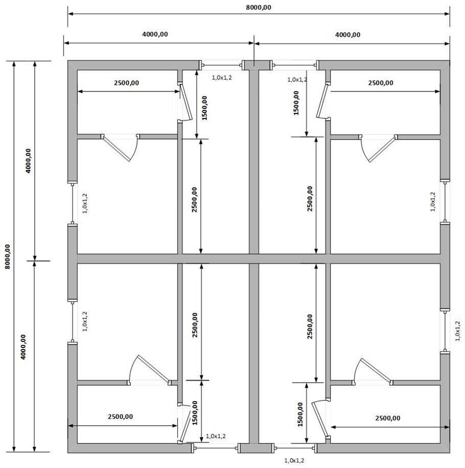
Большой каркасный дом 8х8 для постоянного проживания большой семьи

Потрясающе большой, красивый! Идеально подойдет для постоянного проживания большой семьи. Дом построен по индивидуальному проекту заказчика. • Место строительства: Московская область, г.Видное.
• Дата сдачи: апрель 2022 г.
• Комплектация: каркас 200мм, с отделкой
• Стоимость: 3 500 000 ₽ Комплектация дома «с отделкой»: - двойная обвязка основания из бруса 150х150мм и 50х200мм
- лаги из бруса 50х200мм, 100х200мм (камерной сушки), шаг 0,59м
- черновые полы 22х100мм, на брусок 40х50мм
- несущие стены (обвязки, стойки, раскосы, ригель) 50х200мм (камерной сушки), шаг 0,59м
- перегородки (обвязки, стойки, раскосы, ригель) 50х150мм и 50х100мм (камерной сушки), шаг 0,59м
- высота потолков: 2,5м / 2,5м
- межэтажные перекрытия 50х200мм (камерной сушки), шаг 0,59м
- потолочные перекрытия 50х150мм (камерной сушки), шаг 0,59м
- стропильная система 50х150мм, шаг 0,59м
- крыша двухскатная, высота конька 2,0м, свесы крыши 45-50см
- кровля: Ондулин, ветрозащита, контр-обрешетка
- стены снаружи зашивают

Потрясающе большой, красивый! Идеально подойдет для постоянного проживания большой семьи. Дом построен по индивидуальному проекту заказчика.

• Место строительства: Московская область, г.Видное.
• Дата сдачи: апрель 2022 г.
• Комплектация: каркас 200мм, с отделкой
• Стоимость: 3 500 000 ₽

Комплектация дома «с отделкой»:

- двойная обвязка основания из бруса 150х150мм и 50х200мм
- лаги из бруса 50х200мм, 100х200мм (камерной сушки), шаг 0,59м
- черновые полы 22х100мм, на брусок 40х50мм
- несущие стены (обвязки, стойки, раскосы, ригель) 50х200мм (камерной сушки), шаг 0,59м
- перегородки (обвязки, стойки, раскосы, ригель) 50х150мм и 50х100мм (камерной сушки), шаг 0,59м
- высота потолков: 2,5м / 2,5м
- межэтажные перекрытия 50х200мм (камерной сушки), шаг 0,59м
- потолочные перекрытия 50х150мм (камерной сушки), шаг 0,59м
- стропильная система 50х150мм, шаг 0,59м
- крыша двухскатная, высота конька 2,0м, свесы крыши 45-50см
- кровля: Ондулин, ветрозащита, контр-обрешетка
- стены снаружи зашиваются OSB 9мм и виниловыми панелями "Обсидиан"
- утепление полов, потолков в 200мм, несущих стен в 200мм Роквул Скандик, перегородок 150 и 100мм
- мембранные пленки Ондутис А, В, с проклейкой скотчем
- чистовая отделка стен и потолков внутри - сухая евровагонка
- чистовые полы - сухой шпунт 36мм
- окна ПВХ 2-х кам., отливы, подоконники, наличники
- двери: входная металлическая, утепленная; межкомнатные - деревянные
- монтируется водосточная система и снегозадержатели
- обработка антисептиком основания, лаг, черновых полов

📍 Наши контакты:

• Сайт: bagrovstroy.ru
• Группа VK:
vk.com/bagrovstroy