Добавить в корзинуПозвонить
Найти в Дзене
ПЛАНОБЗОР

Так ли комфортен "Комфорт"-вариант дома 10х10? Часть 3

Всем привет. Продолжаю разбирать "Венецию" - вариативный проект дома 10х10 метров, найденного на просторах Дзена. Уже вышло 2 части, посвященные этому проекту, в которых я рассмотрел Внешний вид и "Эконом"-вариант проекта. Не все так гладко оказалось, как выглядело на первый взгляд. Может "Комфорт"-вариант станет удачным решением? Что нам скажут в этот раз? Ничего такого, что я уже не пересказывал: Хороший размер для дома, 10х10 метров. Цифра круглая, и места достаточно для чего угодно. Особенно, если удвоить его, построив два этажа! © Инваполис - проекты домов Как уже выяснили в прошлой статье об "Эконом"-варианте места действительно достаточно, но организовано оно неправильно. Где-то авторы перестарались, а где-то "недосмотрели". Что изменилось в "Комфорт"-варианте? Стал ли дом удобнее и заслуживает ли звание "Комфорт"? Вот что пишут про первый этаж: Вариант комфорт - гостиная просторнее, и одна спальня © Инваполис - проекты домов Увеличение размера гостиной, относительно "Эконом
Оглавление

Всем привет.

Продолжаю разбирать "Венецию" - вариативный проект дома 10х10 метров, найденного на просторах Дзена. Уже вышло 2 части, посвященные этому проекту, в которых я рассмотрел Внешний вид и "Эконом"-вариант проекта. Не все так гладко оказалось, как выглядело на первый взгляд. Может "Комфорт"-вариант станет удачным решением?

Скриншот со статьи о проекте на Дзен. Вариант "Комфорт"
Скриншот со статьи о проекте на Дзен. Вариант "Комфорт"

Что нам скажут в этот раз?

Ничего такого, что я уже не пересказывал:

Хороший размер для дома, 10х10 метров. Цифра круглая, и места достаточно для чего угодно. Особенно, если удвоить его, построив два этажа!
© Инваполис - проекты домов

Как уже выяснили в прошлой статье об "Эконом"-варианте места действительно достаточно, но организовано оно неправильно. Где-то авторы перестарались, а где-то "недосмотрели".

Что изменилось в "Комфорт"-варианте? Стал ли дом удобнее и заслуживает ли звание "Комфорт"? Вот что пишут про первый этаж:

Вариант комфорт - гостиная просторнее, и одна спальня
© Инваполис - проекты домов

Увеличение размера гостиной, относительно "Эконом"-варианта, должно действительно увеличить комфорт, но вот произошло оно за счет спальни, площадь которой можно было использовать иначе.

На втором этаже тоже произошли изменения:

Комфорт - вариант - Две больших и две маленьких спальни.
© Инваполис - проекты домов

Что ж, от пятой спальни избавились, но вся ее площадь видимо ушла на увеличение оставшихся четырех. Ладно, поглядим, помогло ли.

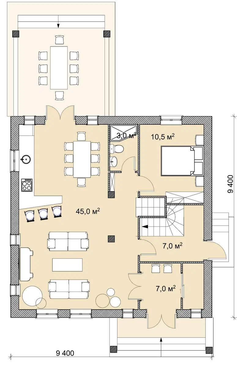
Первый этаж

При входе попадаем в тамбур-прихожую, площадь которого изменилась, несмотря на те же указанные 7,0 м2. Размеры помещений не указаны, но если проецировать длину кровати (2,0 м) на размеры помещений, то тамбур стал площадью 4,25 м2. Это неплохо, особенно учитывая то, что гардеробный шкаф сохранился (он, кстати, не включен в площадь дома). Если убрать ненужные там табуреты, то на их месте можно расположить "крючки" для верхней одежды и зеркало.

Из тамбура теперь попадаем в холл совмещенный с зоной гостиной, а не со столовой, как в "Экономе". Авторы проекта переработали комнату-студию, поменяв местами зоны гостиной и кухни-столовой. Стало действительно удобнее и комфортнее. Вот только на проекте снова создана иллюзия огромности помещения - поверьте, 45 м2 в реальности не выглядят так, как на картинке. 45 м2 вполне достаточны, и даже слегка излишни, но питать надежды что там можно будет ездить на велосипеде не стоит. Кухня здесь также стала комфортнее - грамотнее расположены кухонные столы. Да, кухня-столовая-гостиная стала комфортнее, но при этом такой вариант и более экономичен, чем "Эконом", за счет уменьшения количества перегородок и их отделки.

Санузел остался на прошлом месте и сохранил площадь, поменялось лишь расположение сантехники. Писать о нем повторно смысла нет, можете прочесть предыдущую часть.

Остались прежними и спальня первого этажа, лестница, хозбытовое помещение, со всеми их минусами. Плюсов, увы, обнаружено не было.

Точки водопотребления остались все так же разнесены по разным углам.

Подитог

Дом действительно стал комфортнее. Отчасти. В левой его части. В правой же остался прежним, со всеми его минусами и без единого плюса. И, вот парадокс, именно первый этаж можно было назвать "Эконом" - ну если за "Эконом" принимать денежный эквивалент, а не условное название.

Второй этаж.

Лестница и коридор второго этажа остались все теми же темнушками. Крючки с фонариками с первого этажа видимо остались на прошлом месте.

К радости владельцев размер санузла прибавил 1,0 м2 - это немного, но приятнее, чем у владельцев "Эконома".

Спальни в правой части дома остались неизменными - описывать вновь смысла не вижу, можете почитать в прошлом выпуске обзора. Спальни сохранили все свои минусы и все свои отсутствующие плюсы.

А вот спальни в левой части прибавили в "весе". Теперь они стали просторнее. Но все теми же бестолковыми. К плюсам можно отнести только увеличенного размера шкаф, но только если вы шопоголик и нужно хранить где-то свои бесчисленные вещи. Авторам явно не хватает фантазии в компоновке спален и наполнении их мебелью. Эти изменения вторят пословице "больше - не значит лучше".

Подитог

Как и на первом этаже на втором переработали лишь левую часть. Но, к сожалению, в отличие от переработки первого этажа второму таковая не пошла на пользу.

Что по итогу?

Авторы решили обойтись малой кровью - переработать половину планировки этажей. И если первому переработка пошла на пользу, то вот второй получился неоднозначным. Гостиная-кухня-столовая явно получилась лучше, как и тамбур, несмотря на уменьшение габаритов. Левые спальни второго этажа вызывают сомнения, а правая часть всего дома осталась без изменений.

Ну и да, именно "Комфорт"-вариант стал экономически более выгодным вариантом, и для чего надо было придумывать "Эконом" - загадка если не века, то этого дня.

В следующей статье разберем "Люкс"-вариант проекта. До связи.

#архитектура #проект #проектирование #дома #дизайн #обзор #частный дом #частные дома #жилой дом #жилые дома