Добавить в корзинуПозвонить
Найти в Дзене
Интерьер Дизайн 🛋️

Разместить диван и рабочий стол на 6-ти метровой кухне - не проблема

На маленькой кухне обычно разместить стандартный комплект кухонной мебели большая проблема, а тут получилось еще, и полноценный диван поставить, и рабочее место организовать. Диван в такой маленькой кухне можно расположить было только вдоль стены. Спальную зону ещё по просьбе хозяев зонировали текстилем. Карниз для штор выбрали с потолочным креплением, но можно сделать портьеры на люверсах с креплением на штанге. В качественной обеденного стала можно использовать подоконник с барными стульями. Самая большая трудность в проекте — это расположение газовой плиты. По требованиям Мосгаза расстояние от стены должно быть 100мм, от раковины до плиты не менее 300 мм. Осталось решить как лучше расположить мойку и плиту. Остановились на варианте с плитой в углу. Мойку отделили перегородкой из МДФ. Высота столешниц для рабочего стола и кухонного гарнитура разная. Перегородка не только предохраняет от брызг ноутбук, но служит переходным элементом между разными столами. Столешницы и перегородка из

На маленькой кухне обычно разместить стандартный комплект кухонной мебели большая проблема, а тут получилось еще, и полноценный диван поставить, и рабочее место организовать.

Диван в такой маленькой кухне можно расположить было только вдоль стены.

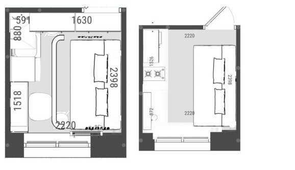
Гостиная, она же спальная зона
Гостиная, она же спальная зона

Спальную зону ещё по просьбе хозяев зонировали текстилем. Карниз для штор выбрали с потолочным креплением, но можно сделать портьеры на люверсах с креплением на штанге.

В качественной обеденного стала можно использовать подоконник с барными стульями.

Самая большая трудность в проекте — это расположение газовой плиты. По требованиям Мосгаза расстояние от стены должно быть 100мм, от раковины до плиты не менее 300 мм.

Осталось решить как лучше расположить мойку и плиту. Остановились на варианте с плитой в углу. Мойку отделили перегородкой из МДФ.

Слева вариант плита газовая в углу, справа — посередине.
Слева вариант плита газовая в углу, справа — посередине.

Высота столешниц для рабочего стола и кухонного гарнитура разная. Перегородка не только предохраняет от брызг ноутбук, но служит переходным элементом между разными столами.

Столешницы и перегородка из материалов, которые можно приобрести в строймаркетах.

Эскиз мебели с размерами
Эскиз мебели с размерами

Сначала хотели отделить диван для приватности перегородкой из ГКЛ, но заменили в окончательном варианте на шторы (как на первой картинке). Для небольшой кухни - это более уместный вариант.

Вид сверху: поставлена перегородка от двери.
Вид сверху: поставлена перегородка от двери.

Над рабочим столом нашлось место для полочек. Вентиляционные трубы закрыли декоративными решетками. Кухонные принадлежности будут храниться в навесных шкафах.

Рабочий стол и кухонный уголок Проект студии "Интерьер Дизайн" ссылка на сайт студии в профиле канала
Рабочий стол и кухонный уголок Проект студии "Интерьер Дизайн" ссылка на сайт студии в профиле канала

В итоге получилась очень компактная, но вполне удобная для своих размеров кухня.

Понравилась идея? Ставьте 👍 и подписывайтесь на канал!

Еще по теме: Дизайн узкого Г-образного коридора

2 рабочих места в небольшой спальне

#кухня 6 квм #маленькая кухня #холодильник на маленькой кухне #газовая плита #дизайн кухни #зонирование шторами