Найти в Дзене

Как лишь одна планировка помещения делает дизайн элитного интерьера еще качественнее?

Наконец-то мы написали эту статью и будем теперь ссылку на нее давать всем, у кого есть вопросы ☺ Что такое планировочное решение? Это план квартиры/дома в масштабе, где обозначено все, что есть в квартире/доме. Называется «План расстановки мебели и оборудования». На основе чего вы делаете планировочное решение? 1. Замеры помещений. Это - длина и толщина всех стен и перегородок; размеры дверных и оконных блоков с их привязками от углов; размеры и местоположение вентиляционных шахт; указание стояков канализации и водопровода; обозначение радиаторов отопления; местоположение электрического щита. Высота потолков, высотные отметки оконных и дверных проемов. Либо мы снимаем замеры сами, либо их снимет кто-то для нас (если объект удаленный). План от Застройщика или план БТИ – возможный, но не лучший вариант, так как погрешность очень велика. Точность результата мы гарантируем, только если замеры снимаем мы сами.  Не лишними будут фотографии помещений. 2. Заполнение брифа. У нас есть подробны
Оглавление

Наконец-то мы написали эту статью и будем теперь ссылку на нее давать всем, у кого есть вопросы ☺

Что такое планировочное решение?

Это план квартиры/дома в масштабе, где обозначено все, что есть в квартире/доме. Называется «План расстановки мебели и оборудования».

На основе чего вы делаете планировочное решение?

1. Замеры помещений. Это - длина и толщина всех стен и перегородок; размеры дверных и оконных блоков с их привязками от углов; размеры и местоположение вентиляционных шахт; указание стояков канализации и водопровода; обозначение радиаторов отопления; местоположение электрического щита. Высота потолков, высотные отметки оконных и дверных проемов.

Либо мы снимаем замеры сами, либо их снимет кто-то для нас (если объект удаленный). План от Застройщика или план БТИ – возможный, но не лучший вариант, так как погрешность очень велика. Точность результата мы гарантируем, только если замеры снимаем мы сами. 

Не лишними будут фотографии помещений.

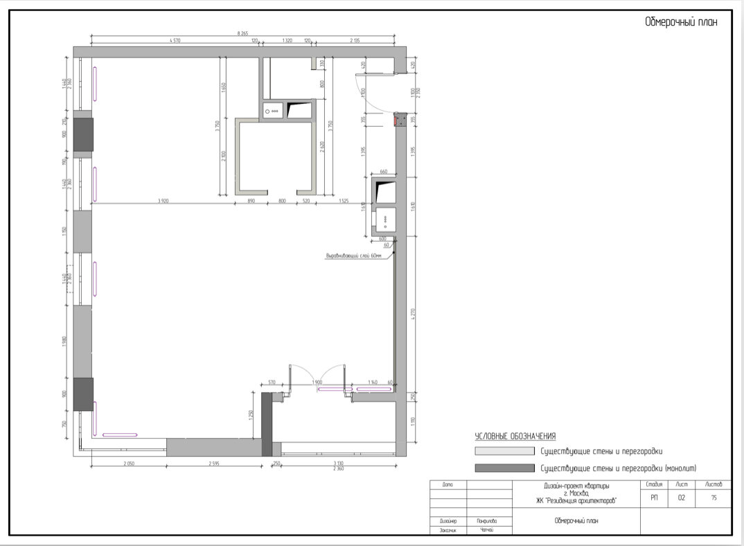
План после замера помещения
План после замера помещения

2. Заполнение брифа. У нас есть подробный бриф (анкета), которую Вы заполняете, рассказывая нам о своих желаниях. Планы мы будем делать для Вас, и чем больше Вы укажите информации – тем более удачный для себя результат Вы получите.

Заполнение брифа помогает в подробностях вспомнить и рассказать, чего Вам хочется. В брифе учтены такие моменты, как наличие уже существующей мебели, которую нужно вписать в новый интерьер, приведены различные стили интерьеров с изображениями, чтобы Вы могли выбрать наиболее подходящий вариант.

Как делается планировочное решение?

Чертежи выполняются на компьютере с помощью программы ArchiCAD – это «программный пакет для архитекторов, основанный на технологии информационного моделирования, созданный фирмой Graphisoft. Предназначен для проектирования архитектурно-строительных конструкций и решений, а также элементов ландшафта, мебели и т. п.»

Изначально мы делаем несколько возможных вариантов плана расстановки мебели и оборудования. Количество вариантов зависит от исходных данных. Все предлагаемые варианты технически реализуемы. 

Пример плана
Пример плана

Далее Вы выбираете один, наилучший вариант. В ходе совместного с Вами обсуждения мы вносим в него правки. По итоговому варианту мы делаем «план монтажа» и итоговый «план расстановки мебели и оборудования» Файлы формата pdf. Мы предлагаем только такие варианты, которые без проблем можно согласовать в структуре Межведомственная комиссия (МВК).

Зачем делать планировочное решение?

Согласование рабочего плана расстановки мебели и оборудования – первый и самый важный этап создания интерьера, основа всех дальнейших действий. От того, как пространственно и функционально спланированы помещения зависит удобство и качество Вашей жизни в новой квартире. 

Только на основе плана расстановки мебели и оборудования возможна грамотная и качественная разработка остальных планов (таких как план освещения, электрики, потолков и т.д.)

Проект студии VProject
Проект студии VProject

С планировочного решения всё начинается. Но полный дизайн-проект квартиры включает в себя и другие разделы.

Смотрите пример полного дизайн-проекта на нашем сайте. Оставьте заявку и дизайнер свяжется с вами.

V.Project Interior Design