Найти в Дзене
Филдс

Зеркальные стены и перегородки вместо дверей: как дизайнеры оформили функциональную евродвушку 48 м² для пары

Дизайнеры из студии Михаила Новинского оформили евродвушку 48 м² для молодой пары. Интерьер старались сделать чётким и графичным, а главное функциональным. Ключевой фишкой проекта стали раздвижные перегородки вместо дверей — когда они открыты, всё пространство выглядит единым. Планировка Гостиная Зонировать комнату помогает отделка — в гостиной это клинкерный кирпич на стене, светлый потолок и деревянные полы. Монохромную цветовую гамму разбавили точечными жёлтыми акцентами в виде декора и текстиля, а ковёр с длинным ворсом отвечает за разнообразие фактур. Кухня Кухонный гарнитур построили Г-образно. К нему добавили барную стойку, которая помогла дополнительно очертить границы кухни. Она же играет роль обеденного стола. Спальня Акцентную стену в изголовье кровати оформили стеновыми панелями. Рельефный гипс формирует необычный объём, который здорово взаимодействует с подсветкой. В роли акцентов вновь выступает жёлтый текстиль. Прихожая Изюминкой прихожей стали зеркальные стены —
Оглавление

Дизайнеры из студии Михаила Новинского оформили евродвушку 48 м² для молодой пары. Интерьер старались сделать чётким и графичным, а главное функциональным. Ключевой фишкой проекта стали раздвижные перегородки вместо дверей — когда они открыты, всё пространство выглядит единым.

  • Общая площадь: 48 м²
  • Место: Москва
  • Тип дома: монолитный
  • Количество комнат: евродвушка
  • Бюджет: 5 млн рублей
  • Кто здесь живет: молодая пара
  • Дизайнеры: Михаил Новинский, Ольга Погорелова и Марк Гришин (студия MNdesign)

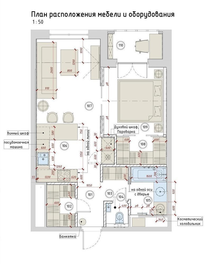
Планировка

Планировку создавали с нуля. Сформировали объединённую кухню-гостиную, изолированную спальню и раздельный санузел. Помимо этого запланировали много ниш для систем хранения, в том числе и для двух гардеробных.
Планировку создавали с нуля. Сформировали объединённую кухню-гостиную, изолированную спальню и раздельный санузел. Помимо этого запланировали много ниш для систем хранения, в том числе и для двух гардеробных.

Гостиная

Зонировать комнату помогает отделка — в гостиной это клинкерный кирпич на стене, светлый потолок и деревянные полы. Монохромную цветовую гамму разбавили точечными жёлтыми акцентами в виде декора и текстиля, а ковёр с длинным ворсом отвечает за разнообразие фактур.

Кухня

Кухонный гарнитур построили Г-образно. К нему добавили барную стойку, которая помогла дополнительно очертить границы кухни. Она же играет роль обеденного стола.

Спальня

Акцентную стену в изголовье кровати оформили стеновыми панелями. Рельефный гипс формирует необычный объём, который здорово взаимодействует с подсветкой. В роли акцентов вновь выступает жёлтый текстиль.

Прихожая

Изюминкой прихожей стали зеркальные стены — панелями полностью обшили объём уборной. Зеркальными также сделали фасады встроенного шкафа-купе напротив, в нём скрыли бойлер и хозяйственные принадлежности. Тёмный потолок контрастирует со светлыми стенами и полом.

Санузел

Санузел в квартире раздельный. В отделке ванной совместили холодную фактуру белого мрамора и тёплую — дерева, в уборной скомбинировали краску и керамогранит под камень. Стиральную машину убрали под столешницу тумбы с раковиной.

Интересные мнения в комментариях приветствуются. Если материал понравился — ставь лайк!

Филдс это не только блог на Дзене, но и магазин дизайнерской мебели. Дарим 3000 ₽ на первую покупку. Заходите на сайт и выбирайте мебель, которую используют дизайнеры в своих проектах.