Добавить в корзинуПозвонить
Найти в Дзене
Филдс

Дизайнер сделала мега удобную студию 25 м², в которой уместила всё, включая спальню: планировка до и после

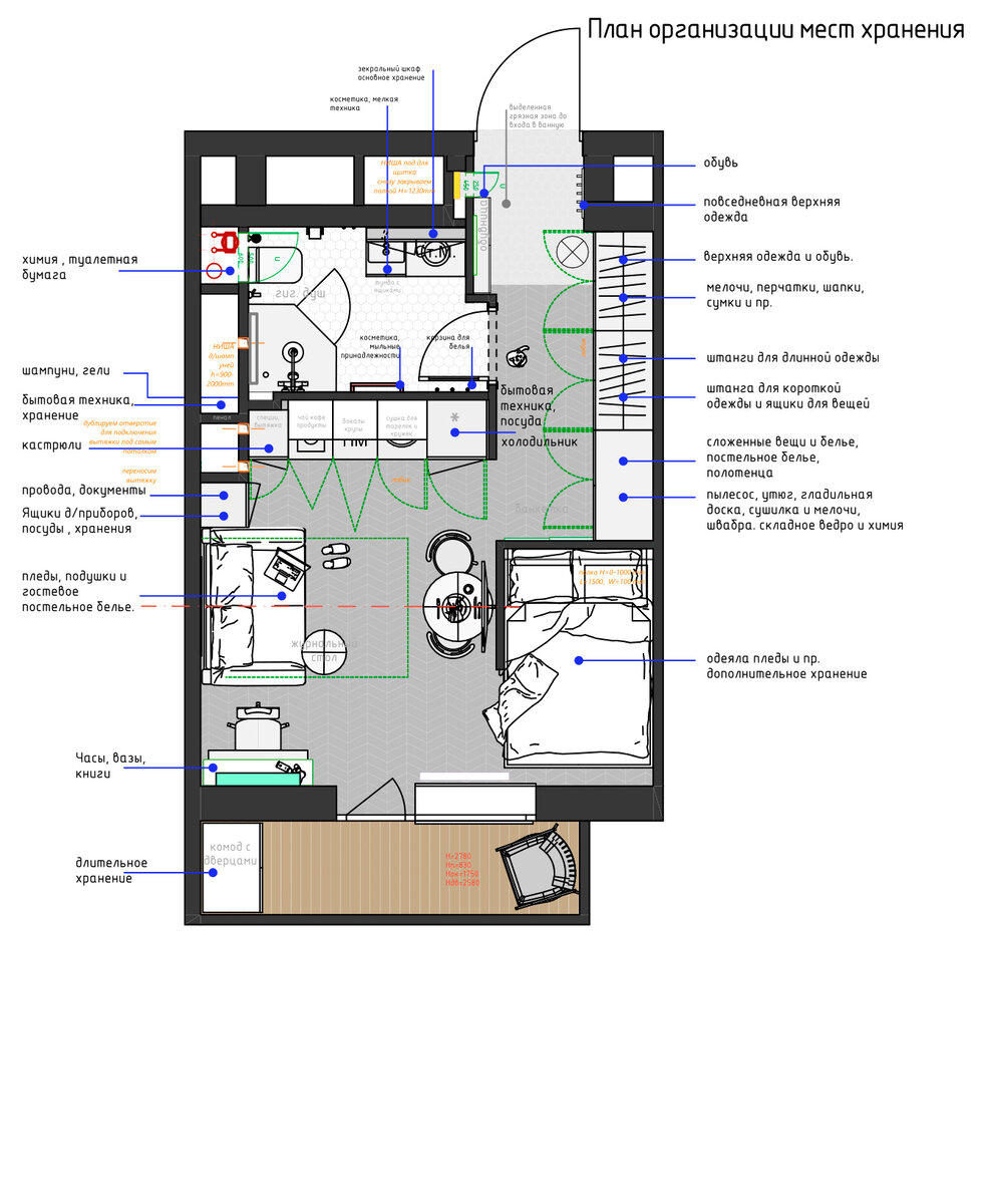
Дизайнер Ева Романова оформила студию 25 м² для сдачи в аренду. Предполагалось, что в квартире разместятся один или два человека. Стояла главная задача — организовать в небольшом пространстве и спальню, и гостиную. Интерьер старались сделать универсальным, но в то же время запоминающимся. Планировка до и после Фото можно листать. Гостиная Общая площадь кухни-гостиной — всего 12 м². Чтобы комната выглядела более просторной, для отделки использовали преимущественно светлые тона, тёмно-зелёным цветом выделили только ТВ-зону. Чтобы сыграть на контрасте, рамы стеклопакетов покрасили в антрацитовый оттенок и поддержали их плинтусами. На пол уложили ламинат «ёлочкой». Кухня Кухню упаковали в нишу, торцы которой на контрасте со светлыми фасадами выкрасили в тёмный оттенок. Гарнитур выстроили в форме портала — рабочая поверхность оказалась утопленной между нижними шкафами, высокими пеналами и антресолями. Чтобы сэкономить место, выбрали компактную технику — узкий духовой шкаф и посудомойку
Оглавление

Дизайнер Ева Романова оформила студию 25 м² для сдачи в аренду. Предполагалось, что в квартире разместятся один или два человека. Стояла главная задача — организовать в небольшом пространстве и спальню, и гостиную. Интерьер старались сделать универсальным, но в то же время запоминающимся.

  • Общая площадь: 25 м²
  • Место: Москва
  • Тип дома: ЖК «Октябрьское поле»
  • Количество комнат: студия
  • Высота потолка: 2,7 м
  • Бюджет: 1,3 млн рублей (без учёта гонорара дизайнера)
  • Кто здесь живет: сдаётся в аренду
  • Дизайнер: Ева Романова

Планировка до и после

Фото можно листать.

Гостиная

Общая площадь кухни-гостиной — всего 12 м². Чтобы комната выглядела более просторной, для отделки использовали преимущественно светлые тона, тёмно-зелёным цветом выделили только ТВ-зону. Чтобы сыграть на контрасте, рамы стеклопакетов покрасили в антрацитовый оттенок и поддержали их плинтусами. На пол уложили ламинат «ёлочкой».

Кухня

Кухню упаковали в нишу, торцы которой на контрасте со светлыми фасадами выкрасили в тёмный оттенок. Гарнитур выстроили в форме портала — рабочая поверхность оказалась утопленной между нижними шкафами, высокими пеналами и антресолями. Чтобы сэкономить место, выбрали компактную технику — узкий духовой шкаф и посудомойку 45 см, а также двухконфорочную варочную панель.

Спальня

Для спальни создали отдельную нишу, её выделили цветом. Кровать изготовили на заказ чётко под размеры углубления. Она оснащена боковым подъёмным механизмом, поэтому внутри удобно хранить постельные принадлежности. За изголовьем построили короб, который дополнили деревянной столешницей — такая полка заменяет прикроватный столик. Панно на стене дизайнер создала самостоятельно специально для проекта. Чтобы полностью изолировать спальную зону, повесили штору.

-4

Прихожая

Для стен в прихожей выбрали краску насыщенного морковного оттенка. На пол в «грязной» зоне уложили керамогранит, а стык с ламинатом заделали силиконовым герметиком.

Санузел

В отделке ванной скомбинировали плитку и краску в «немокрых» зонах. Тёмная затирка, плинтус и узор на полу помогают добавить контраст. Скрытые люки для доступа к водонагревателю и счётчикам выкрасили в цвет стенам, так что они почти не выделяются на общем фоне.

Интересные мнения в комментариях приветствуются. Если материал понравился — ставь лайк!

🖤 Филдс — это не только блог на Дзене, но и магазин дизайнерских предметов интерьера. Заходите на сайт, чтобы увидеть мебель, которую дизайнеры выбирают для своих проектов.