Найти в Дзене
Дом в Крыму

Гостиница из сип панелей на 9 номеров за 5 994 035 р

Срок строительства: 3 месяца
Площадь: 444 м2
Высота потолков: 2.80м
Стоимость домокомплекта для самостоятельной сборки: 3 091 200 р
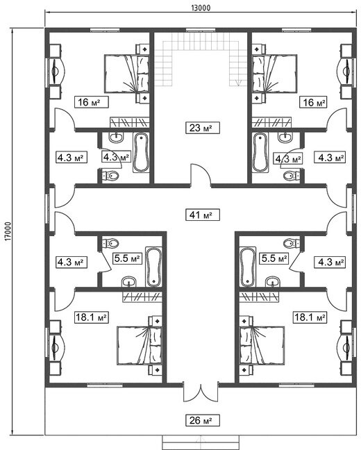
Отличный вариант комфортного гостевого дома. Все детали продуманы для максимально уютного проживания. Входные двери в номера первого этажа расположены таким образом, чтобы никто никому не мешал. Просторные коридоры. Большое пространство для межэтажной лестницы.
Второй этаж не менее комфортен, чем первый. Номера имеют выходы на балконы. При вашем желании, балконы можно заменить на окна «в пол». Номерной фонд не менее 15 м2, поэтому при желании, в каждом номере можно поставить кресло-кровать или детскую кроватку.
Комплектация указанная в цене:
1. Стены из эко сип панелей с внутренними перегородками из деревянного каркаса
2. Межэтажное перекрытие из деревянной двутавровой балки
3. Опорный брус
4. Ригельные балки
5. Стропильная конструкция крыши
6. Металлочерепица (Цвет по выбору заказчика)
7. Софиты и водосточная система (про-во Docke )
8. Комплект фирменн

Срок строительства: 3 месяца
Площадь: 444 м2
Высота потолков: 2.80м
Стоимость домокомплекта для самостоятельной сборки: 3 091 200 р

Отличный вариант комфортного гостевого дома. Все детали продуманы для максимально уютного проживания. Входные двери в номера первого этажа расположены таким образом, чтобы никто никому не мешал. Просторные коридоры. Большое пространство для межэтажной лестницы.

Второй этаж не менее комфортен, чем первый. Номера имеют выходы на балконы. При вашем желании, балконы можно заменить на окна «в пол». Номерной фонд не менее 15 м2, поэтому при желании, в каждом номере можно поставить кресло-кровать или детскую кроватку.

Комплектация указанная в цене:
1. Стены из эко сип панелей с внутренними перегородками из деревянного каркаса
2. Межэтажное перекрытие из деревянной двутавровой балки
3. Опорный брус
4. Ригельные балки
5. Стропильная конструкция крыши
6. Металлочерепица (Цвет по выбору заказчика)
7. Софиты и водосточная система (про-во Docke )
8. Комплект фирменного крепежа (Wurth)
9. Монтаж
10. Проектные работы

Помните, что любой проект мы можем доработать под ваши нужды или разработать проект с нуля.

Больше проектов гостиниц с актуальными ценами смотрите
по ссылке.

Быстро узнать ориентировочную стоимость вашего проекта, можно по телефону: +7 (978) 218 61 94