Найти в Дзене

ВЕНЕЦИЯ - коллекция проектов двухэтажных домов 10х10 с открытым планом.

Хороший размер для дома, 10х10 метров. Цифра круглая, и места достаточно для чего угодно. Особенно, если удвоить его, построив два этажа! А места, действительно, достаточно для чего угодно - и для семейного многокомнатного дома, и для люкс- апартаментов. И фасад такого дома можно делать какой угодно - от самого простого аскетичного без декора, до классического, или стилизованного почти в любом направлении. Не получится, пожалуй, только модный сегодня стиль Райта, - для него дом должен быть очень большим. Всё остальное - пожалуйста. В качестве иллюстрации - 3 проекта двухэтажных домов 10х10 (примерно, ширина чуть меньше) коллекции ВЕНЕЦИЯ. Это Венеция - ЭКОНОМ, Венеция - КОМФОРТ, и Венеция - ЛЮКС. Мы не будем рассматривать каждый проект, а рассмотрим отдельно три варианта плана первого этажа, три варианта второго, и три разных облика. 1. План первого этажа 2. План второго этажа Объединяет все три варианта, независимо от плотности насыщения - качественный интерьер дневной зоны с колонн
Оглавление
Хороший размер для дома, 10х10 метров. Цифра круглая, и места достаточно для чего угодно. Особенно, если удвоить его, построив два этажа!

А места, действительно, достаточно для чего угодно - и для семейного многокомнатного дома, и для люкс- апартаментов.

И фасад такого дома можно делать какой угодно - от самого простого аскетичного без декора, до классического, или стилизованного почти в любом направлении. Не получится, пожалуй, только модный сегодня стиль Райта, - для него дом должен быть очень большим. Всё остальное - пожалуйста.

В качестве иллюстрации - 3 проекта двухэтажных домов 10х10 (примерно, ширина чуть меньше) коллекции ВЕНЕЦИЯ. Это Венеция - ЭКОНОМ, Венеция - КОМФОРТ, и Венеция - ЛЮКС.

Мы не будем рассматривать каждый проект, а рассмотрим отдельно три варианта плана первого этажа, три варианта второго, и три разных облика.

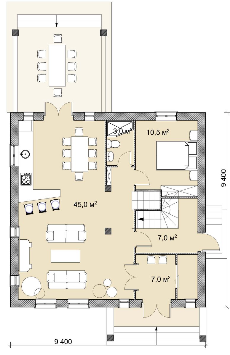
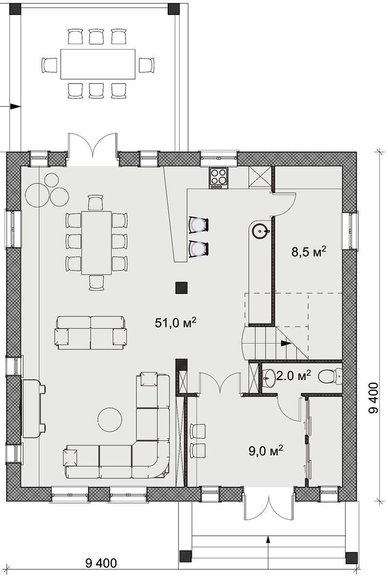
1. План первого этажа

2. План второго этажа

Объединяет все три варианта, независимо от плотности насыщения - качественный интерьер дневной зоны с колоннами и красивая лестница, которая видна отовсюду. Поэтому даже самый "эконом" - вариант будет просторным и выглядеть эффектно.

3. Внешний вид

Можно сказать, что мы опять, как и в случае с представленным ранее проектом ТЕНЕРИФЕ, имеем дело с универсальной конструктивной "коробкой", которую наши архитекторы могут наполнить и оформить по Вашему желанию. Можно брать план от одного дома, а фасад - от другого, или сделать что-то новое. Пишите, если что :)

► Подробности проекта и порядок приобретения проекта дома ВЕНЕЦИЯ_ЭКОНОМ - страница на сайте Инваполис

Подробности проекта и порядок приобретения проекта дома ВЕНЕЦИЯ_КОМФОРТ - страница на сайте Инваполис

Подробности проекта и порядок приобретения проекта дома ВЕНЕЦИЯ_ЛЮКС - страница на сайте Инваполис

► Если Вам интересны наши проекты, подписывайтесь на канал ИНВАПОЛИС-ДЗЕН, смотрите обзоры и подборки домов, задавайте вопросы авторам в комментариях

► Следить за новостями и смотреть обзоры проектов ИНВАПОЛИС можно также в ТЕЛЕГРАММ-КАНАЛЕ – подписывайтесь, контент немного отличается от ДЗЕН 😊