Добавить в корзинуПозвонить
Найти в Дзене
Филдс

Как дизайнер обновила свою «уставшую» двушку 50 м² в старом фонде, сохранив ретро-нотки: фото до и после

Дизайнер Евгения Рахвальская оформила двухкомнатную квартиру 50 м² для себя и своей семьи. Поскольку жильё находится в старом фонде, в интерьер решили привнести ностальгические ретро-нотки. На ремонт ушло всего три месяца. Планировка Фото до ремонта Гостиная Гостиная одновременно выполняет функцию родительской спальни — раскладной диван заменяет кровать. Главным выдающимся элементом отделки стал бетонный потолок. Проводку сделали открытой и пустили по стенам, её дизайн с витым проводом отсылает к ретро-стилистике. В роли декора выступают картины современных художников. Кухня Чтобы разнообразить нейтральную отделку кухни, потолок сделали нежно-зелёным, с ним перекликается фасад одного из навесных шкафов. Основную часть гарнитура построили линейно. Ещё один шкаф отнесли к выступу в стене, а холодильник упаковали в кирпичную нишу рядом с окном. Детская В детской главный акцент сделали на потолке — его и верхнюю часть стены выкрасили в синий, любимый цвет дочери дизайнера. В комнате о
Оглавление

Дизайнер Евгения Рахвальская оформила двухкомнатную квартиру 50 м² для себя и своей семьи. Поскольку жильё находится в старом фонде, в интерьер решили привнести ностальгические ретро-нотки. На ремонт ушло всего три месяца.

  • Общая площадь: 50 м²
  • Место: Москва
  • Тип дома: здание 1968 года постройки
  • Количество комнат: 2
  • Высота потолка: 2,8 м
  • Бюджет: 2,5 млн рублей
  • Кто здесь живет: автор проекта с семьёй
  • Фото: Ярослав Лукьянченко
  • Стилисты: Яна Яхина и Полина Рожкова

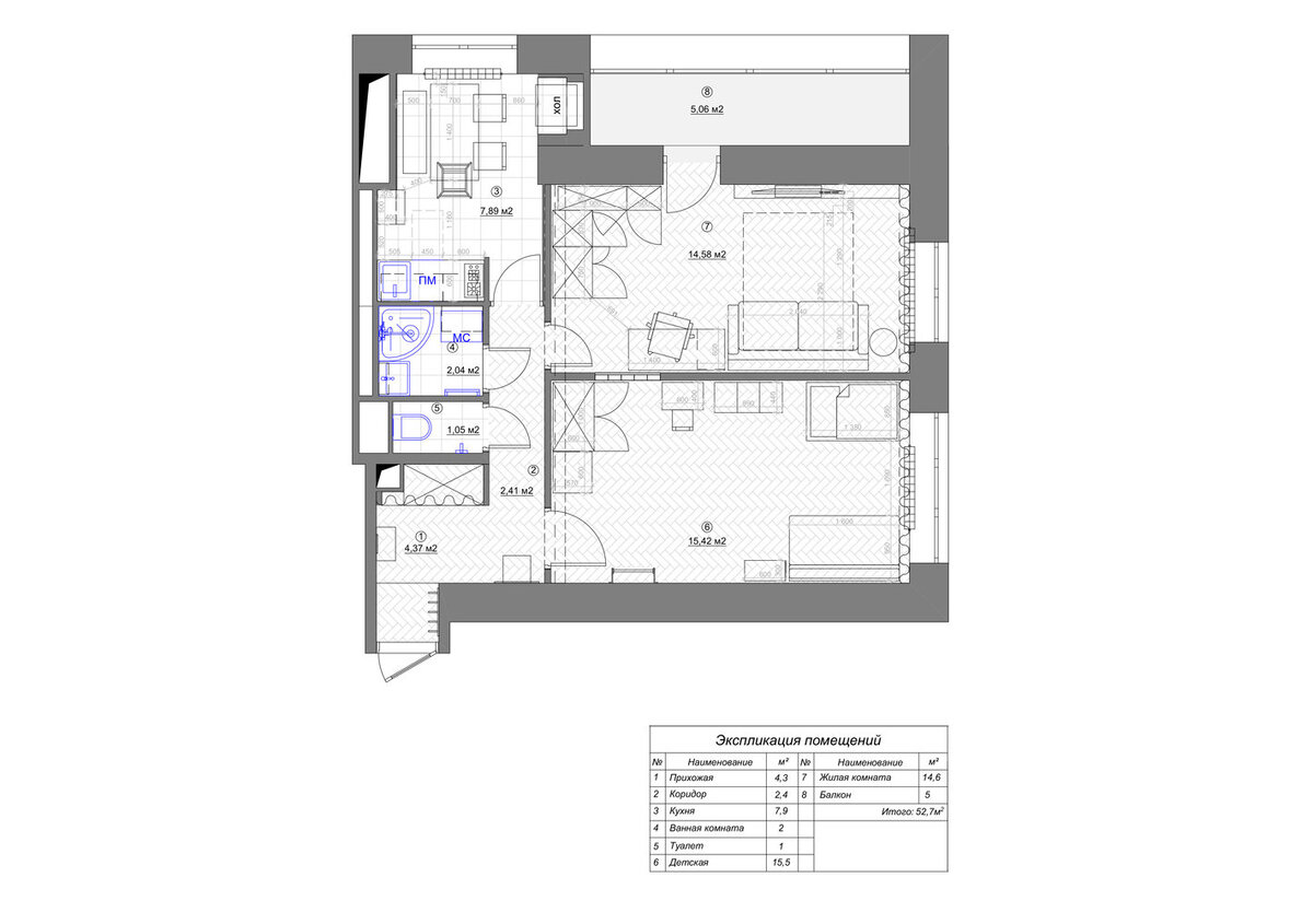
Планировка

Исходную планировку почти не меняли — запланировали ниши в кухне и прихожей, а также заложили проём между детской и гостиной стеклоблоками. Объединить кухню с комнатой не получилось из-за газа. В квартире отреставрировали аутентичный паркет и деревянные окна.
Исходную планировку почти не меняли — запланировали ниши в кухне и прихожей, а также заложили проём между детской и гостиной стеклоблоками. Объединить кухню с комнатой не получилось из-за газа. В квартире отреставрировали аутентичный паркет и деревянные окна.

Фото до ремонта

Гостиная

Гостиная одновременно выполняет функцию родительской спальни — раскладной диван заменяет кровать. Главным выдающимся элементом отделки стал бетонный потолок. Проводку сделали открытой и пустили по стенам, её дизайн с витым проводом отсылает к ретро-стилистике. В роли декора выступают картины современных художников.

Кухня

Чтобы разнообразить нейтральную отделку кухни, потолок сделали нежно-зелёным, с ним перекликается фасад одного из навесных шкафов. Основную часть гарнитура построили линейно. Ещё один шкаф отнесли к выступу в стене, а холодильник упаковали в кирпичную нишу рядом с окном.

Детская

В детской главный акцент сделали на потолке — его и верхнюю часть стены выкрасили в синий, любимый цвет дочери дизайнера. В комнате обустроили спальное место, зону для игр и творчества, а также поставили шкафы для хранения вещей. Всю мебель легко переставить, если возникнет такая необходимость.

Прихожая

Прихожую оформили в голубых тонах. Нишу напротив входа использовали для организации хранения, вместо дверей её закрыли льняными шторами — это помогло сэкономить. В коридор выходят пять межкомнатных дверей: чтобы они не бросались в глаза, использовали конструкции скрытого монтажа, которые покрасили в цвет стенам.

Санузел

Санузел в квартире раздельный. Ванную комнату оформили в бело-голубых тонах, скомбинировав плитку и краску в «немокрых» зонах. В уборной же не побоялись использовать тёмные цвета — стены и потолок покрасили в графитовый оттенок. Разнообразить интерьер помогли детали — постер в ретро-стилистике и саженцы сансевиерии в вазе.

Интересные мнения в комментариях приветствуются. Если материал понравился — ставь лайк!

Филдс это не только блог на Дзене, но и магазин дизайнерской мебели. Дарим 3000 ₽ на первую покупку. Заходите на сайт и выбирайте мебель, которую используют дизайнеры в своих проектах.